MAISONS CRÉATION vous propose un projet de construction personnalisable situé à Saint-Pierre-de-Plesguen, sur la commune de Mesnil-Roc’h, au sein d’un petit lotissement en centre bourg.
Le projet bénéficie d’une proximité immédiate des écoles, commerces, du complexe sportif communal et de la gare routière.
Il est situé à moins de 20 minutes de Saint-Malo, 30 minutes de Rennes, et 15 minutes de Combourg et Dinan.
Le projet est implanté sur un terrain de 610 m².
Maison 115 m² – 4 chambres
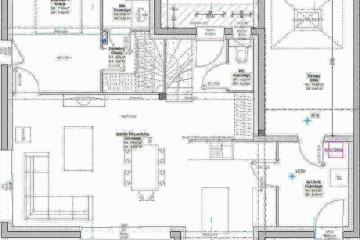
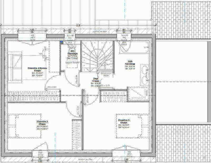
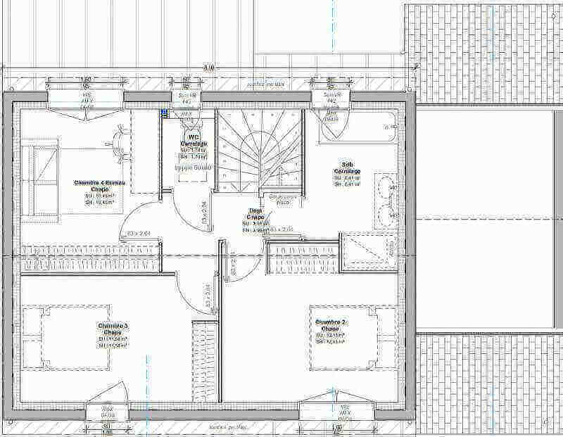
Cet exemple de maison de 115 m² habitables se compose :
Au rez-de-chaussée :
- Un bel espace de vie
- Une suite parentale
À l’étage :
- 3 grandes chambres
- Une salle de bains commune
Ce projet est entièrement personnalisable, tant dans la conception intérieure et architecturale que dans le niveau de prestations, afin de répondre pleinement à vos attentes.
Pour de plus amples renseignements, contactez notre équipe commerciale MAISONS CRÉATION : 02 99 05 36 46
Informations complémentaires
| Chambre(s) : 4 | Salle(s) de bain : 2 | Surface habitable : 115 m² |
| Surface terrain : 610 m² | Surface annexe : 45 m² | Garage(s) : 1 |
| Prix : 311 500 € |
Géolocalisation du bien
*Terrain proposé et vendu par notre partenaire foncier selon disponibilité et autorisation de publicité, prix du terrain hors frais de notaire et d’hypothèque.
Prix maison : hors papiers peints, peintures, revêtements de sol dans les chambres, cuisines, meubles vasques, et faïences (modifiable sans préavis, prix variables suivant les prestations souhaitées) hors frais d’hypothèque.




