MAISONS CRÉATION vous propose un projet de construction RE2020 idéalement situé en plein bourg de Saint-Père Marc-en-Poulet, dans un cadre paisible et verdoyant, à proximité des grands axes.
Le projet est implanté sur un terrain de 300 m², offrant un environnement agréable et une excellente qualité de vie.
Cet exemple de maison RE2020 développe 97 m² habitables et se compose :
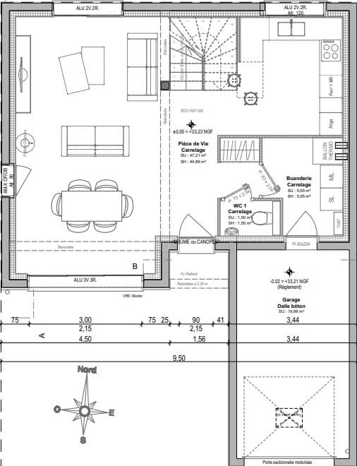
Au rez-de-chaussée :
- Un très bel espace de vie lumineux, bénéficiant d’une triple exposition
- Un accès à deux terrasses :
- Une terrasse plein SUD
- Une terrasse NORD-OUEST
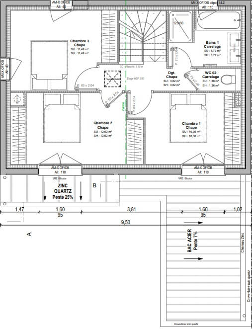
À l’étage :
- 3 chambres confortables
- Une salle de bains
- Des WC séparés
Annexes
- Un garage de 17 m²
Chez Maisons Création, tous nos projets sont entièrement personnalisables, tant au niveau de la conception intérieure et architecturale que du choix des prestations et finitions.
Pour plus de renseignements et étudier votre projet, contactez notre équipe commerciale MAISONS CRÉATION : 02 99 05 36 46
Informations complémentaires
| Chambre(s) : 3 | Salle(s) de bain : 1 | Surface habitable : 97 m² |
| Surface terrain : 300 m² | Surface annexe : 45 m² | Garage(s) : 1 |
| Prix : 275 500 € |
Géolocalisation du bien
*Terrain proposé et vendu par notre partenaire foncier selon disponibilité et autorisation de publicité, prix du terrain hors frais de notaire et d’hypothèque.
Prix maison : hors papiers peints, peintures, revêtements de sol dans les chambres, cuisines, meubles vasques, et faïences (modifiable sans préavis, prix variables suivant les prestations souhaitées) hors frais d’hypothèque.



