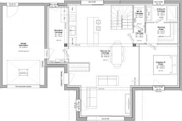
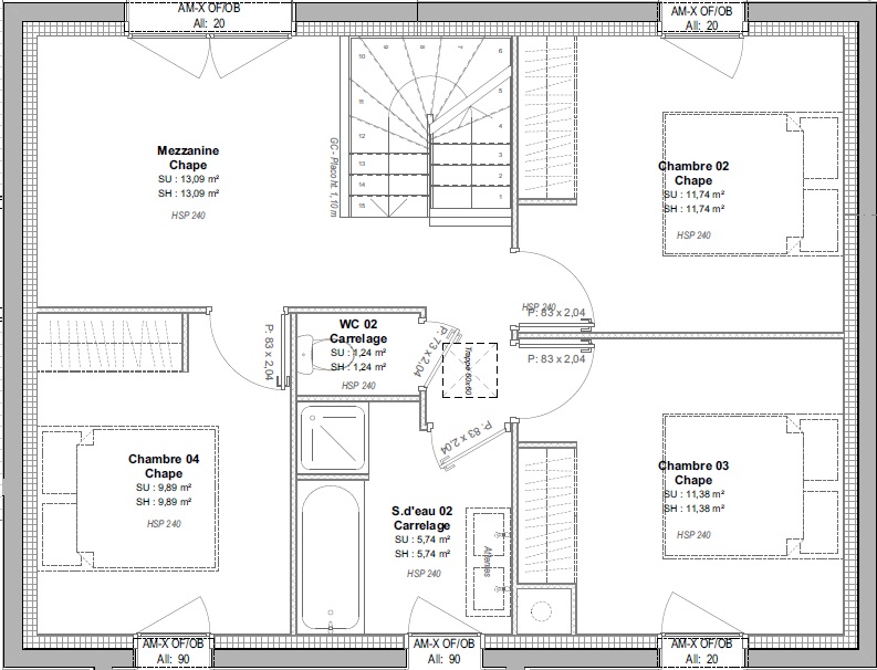
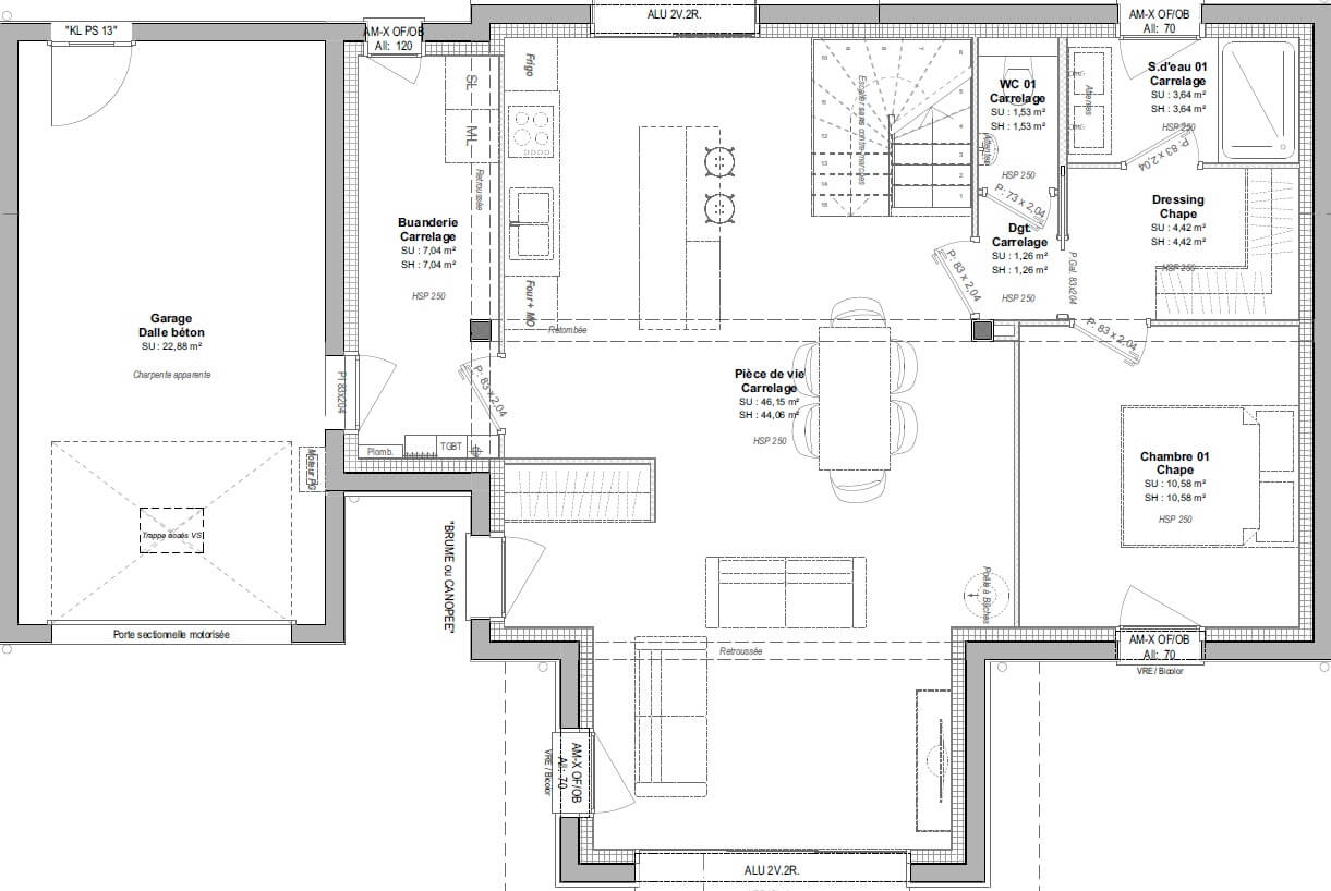
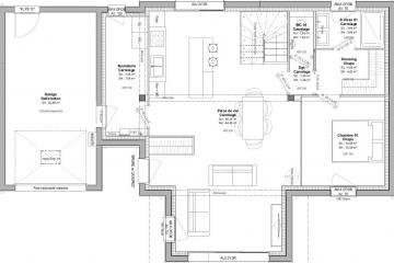
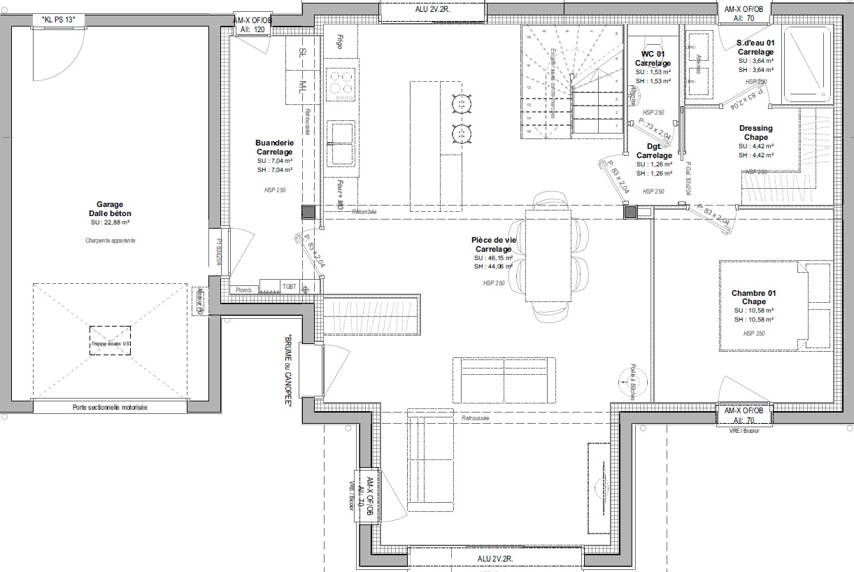
Proche de la mer, de Dinard et de Saint-Malo, nous vous proposons sur un grand terrain de 511 m², dans un tout nouveau lotissement, TERRAIN+MAISON RE2020 d'une surface de 125 m² disposant de 4 chambres dont une suite parentale RDC avec salle d'eau, une salle de bains et 4 chambres à l'étage, 2 WC indépendants, grand espace de vie avec vide sur séjour.
Chez Maisons Creation, tous nos projets sont intégralement personnalisés, tant au niveau de la conception intérieure et architecturale du projet, qu'à la définition du niveau de prestations que vous souhaitez.
Projet à personnaliser dans son intégralité, garanties et assurances incluses, prix terrain viabilisé inclus.
Informations complémentaires
| Chambre(s) : 4 | Salle(s) de bain : 2 | Surface habitable : 125 m² |
| Surface terrain : 551 m² | Surface annexe : 46 m² | Garage(s) : 1 |
| Prix : 705 000 € |
Géolocalisation du bien
*Terrain proposé et vendu par notre partenaire foncier selon disponibilité et autorisation de publicité, prix du terrain hors frais de notaire et d’hypothèque.
Prix maison : hors papiers peints, peintures, revêtements de sol dans les chambres, cuisines, meubles vasques, et faïences (modifiable sans préavis, prix variables suivant les prestations souhaitées) hors frais d’hypothèque.






