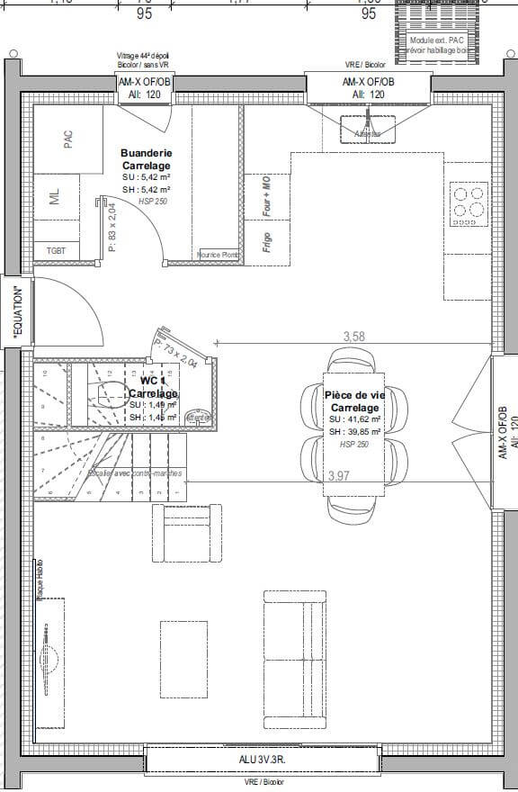
Situé à Saint-Erblon, dans un petit lotissement, proche des commodités, nous vous proposons un terrain de 278m² au prix de 85 000€. Sur ce terrain, nous vous proposons une maison de 91 m² sur deux étages composé d'un espace de vie de 40 m², trois chambres, une salle de bains et 2 WC indépendants. Ce projet évolutif peut permettre d'ajouter un garage attenant à la maison.
Sous réserve de disponibilité de notre partenaire foncier.
Informations complémentaires
| Chambre(s) : 3 | Salle(s) de bain : 1 | Surface habitable : 91 m² |
| Surface terrain : 278 m² | Surface annexe : 40 m² | Garage(s) : 0 |
| Prix : 259 000 € |
Géolocalisation du bien
*Terrain proposé et vendu par notre partenaire foncier selon disponibilité et autorisation de publicité, prix du terrain hors frais de notaire et d’hypothèque.
Prix maison : hors papiers peints, peintures, revêtements de sol dans les chambres, cuisines, meubles vasques, et faïences (modifiable sans préavis, prix variables suivant les prestations souhaitées) hors frais d’hypothèque.






