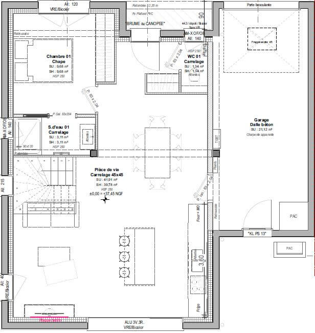
Situé à Saint-Erblon, dans un petit lotissement, proche des commodités, nous vous proposons un terrain de 278m² au prix de 85 000€. Sur ce terrain, nous vous proposons une maison de 102m² sur deux étages composé d'un espace de vie de 40 m², quatre chambres, une salle de bains, une salle d'eau, 2 WC indépendants et un garage de 21 m².
Sous réserve de disponibilité de notre partenaire foncier.
Informations complémentaires
| Chambre(s) : 4 | Salle(s) de bain : 2 | Surface habitable : 102 m² |
| Surface terrain : 278 m² | Surface annexe : 40 m² | Garage(s) : 1 |
| Prix : 285 000 € |
Géolocalisation du bien
*Terrain proposé et vendu par notre partenaire foncier selon disponibilité et autorisation de publicité, prix du terrain hors frais de notaire et d’hypothèque.
Prix maison : hors papiers peints, peintures, revêtements de sol dans les chambres, cuisines, meubles vasques, et faïences (modifiable sans préavis, prix variables suivant les prestations souhaitées) hors frais d’hypothèque.





