Situation idéal entre Rennes et St Malo, sur la commune de SAINT DOMINEUC, la situation vous offre une proximité immédiate à la 4 voies et à tous les services nécessaires pour une vie agréable, tels qu'une boucherie/traiteur, une supérette, des écoles maternelles et primaires, pharmacie, médecin, orthodontiste, kiné, dentistes...et des associations sportives.
Nous vous proposons ici une maison à personnaliser, construite sur un terrain de 350 m² orienté sud.
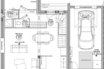
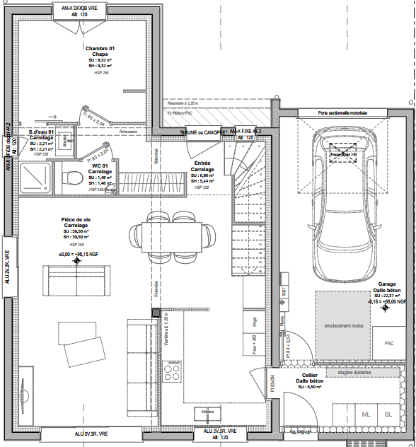
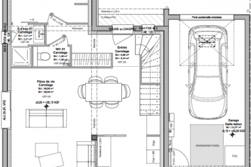
Cette maison comprend au rez-de-chaussée une entrée, une cuisine ouverte, une buanderie, des WC séparés, une salle d'eau, ainsi qu'une chambre parentale équipée d'une salle d'eau et d'un placard.
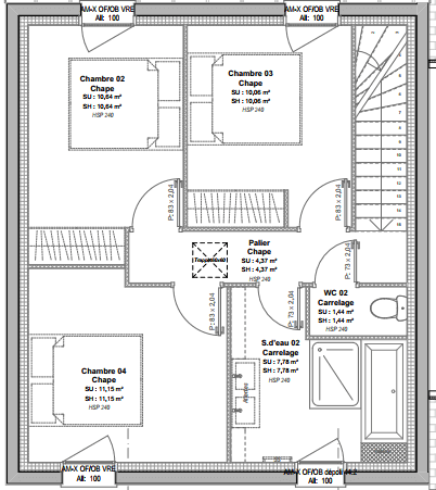
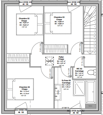
À l'étage, vous pourrez profiter de WC séparés, d'une salle de bains et de 3 chambres équipées d'un placard.
La maison est également dotée d'un garage attenant.
Chez Maisons Creation, nous personnalisons entièrement tous nos projets pour répondre à vos attentes en termes de conception et de prestations.
*Terrain proposé et vendu par notre partenaire foncier selon disponibilité et autorisation de publicité, prix du terrain hors frais de notaire et d’hypothèque.
Prix maison : hors papiers peints, peintures, revêtements de sol dans les chambres, cuisines, meubles vasques, et faïences (modifiable sans préavis, prix variables suivant les prestations souhaitées) hors frais d’hypothèque.
Informations complémentaires
| Chambre(s) : 4 | Salle(s) de bain : 2 | Surface habitable : 103 m² |
| Surface terrain : 350 m² | Surface annexe : 47 m² | Garage(s) : 1 |
| Prix : 267 250 € |
Géolocalisation du bien
*Terrain proposé et vendu par notre partenaire foncier selon disponibilité et autorisation de publicité, prix du terrain hors frais de notaire et d’hypothèque.
Prix maison : hors papiers peints, peintures, revêtements de sol dans les chambres, cuisines, meubles vasques, et faïences (modifiable sans préavis, prix variables suivant les prestations souhaitées) hors frais d’hypothèque.





