Sur la charmante commune de Longaulnay où la tranquillité et la beauté naturelle se rencontrent pour offrir une qualité de vie,
Venez construire votre maison RE2020 personnalisée avec MAISONS CREATION
Situé dans un quartier paisible vous bénéficiez de la proximité de tous les services essentiels avec Bécherel à moins de 2 kilomètres, tout en profitant d'un environnement calme et verdoyant. Les commerces locaux, les écoles et les installations sportives se trouvent à quelques minutes seulement, facilitant ainsi votre quotidien. Vous serez également à proximité des communes de Tinténiac, de ses services mais également de la 4 voies Rennes-St Malo.
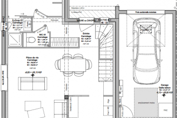
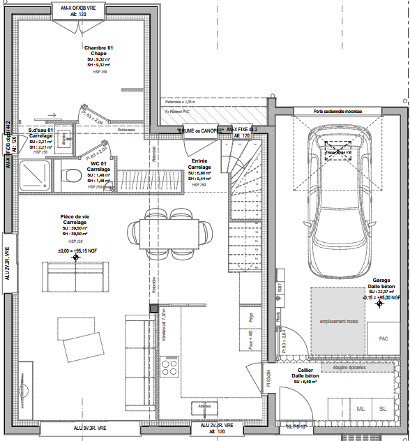
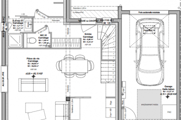
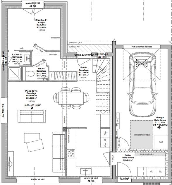
Sur un terrain de 588 m2, cet maison à personnaliser d'une superficie de 103,44 m², est répartie sur deux niveaux.
Le rez-de-chaussée se compose d'une entrée directe sur un une pièce de vie ouverte sur l'extérieur grâce aux baies vitrées qui laissent entrer la lumière. La cuisine donne accès à un garage de près de 22 m².
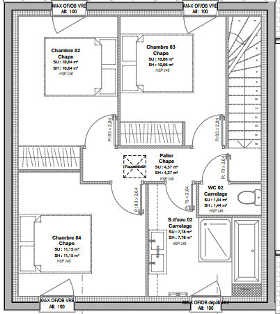
À l'étage, le palier dessert deux chambres avec placard, une chambre de 10 m2, une salle de bain et un WC.
N'hésitez pas à nous contacter pour plus de renseignements.
Chez MAISONS CREATION, nous personnalisons entièrement tous nos projets pour répondre à vos attentes en termes de conception et de prestations.
*Terrain proposé et vendu par notre partenaire foncier selon disponibilité et autorisation de publicité, prix du terrain hors frais de notaire et d’hypothèque.
Prix maison : hors papiers peints, peintures, revêtements de sol dans les chambres, cuisines, meubles vasques, et faïences (modifiable sans préavis, prix variables suivant les prestations souhaitées) hors frais d’hypothèque.
Informations complémentaires
| Chambre(s) : 4 | Salle(s) de bain : 2 | Surface habitable : 103 m² |
| Surface terrain : 588 m² | Surface annexe : 46 m² | Garage(s) : 1 |
| Prix : 246 500 € |
Géolocalisation du bien
*Terrain proposé et vendu par notre partenaire foncier selon disponibilité et autorisation de publicité, prix du terrain hors frais de notaire et d’hypothèque.
Prix maison : hors papiers peints, peintures, revêtements de sol dans les chambres, cuisines, meubles vasques, et faïences (modifiable sans préavis, prix variables suivant les prestations souhaitées) hors frais d’hypothèque.





