RARE A LA VENTE
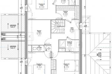
Sur terrain de 343 m² sur la commune de Saint-Briac sur Mer, dans un cadre très paisible et verdoyant, à proximité de toutes les commodités de la commune et de ses magnifiques plages, nous vous proposons une MAISON RE2020 à étage d'une surface de 142 m² disposant au rez-de-chaussée d'un bel espace de vie très lumineux car bénéficiant d'une triple exposition.
De cet espace de vie vous profiterez d'une terrasse orientée plein SUD.
Au rez-de-chaussée se trouve une superbe suite parentale avec son dressing et sa salle d'eau indépendante et privative.
Pour votre rangement vous pourrez profiter d'un grand garage de 24 m².
A l'étage on retrouve 3 belles chambres, une salle de bains et un WC séparé.
2 places de parking extérieures.
Chez Maisons Creation, tous nos projets sont intégralement personnalisés, tant au niveau de la conception intérieure et architecturale du projet, qu'à la définition du niveau de prestations que vous souhaitez.
Projet incluant prix du terrain, garanties et assurances incluses, hors frais annexes liés au terrain et aux finitions de la maison.
Informations complémentaires
| Chambre(s) : 4 | Salle(s) de bain : 2 | Surface habitable : 142 m² |
| Surface terrain : 343 m² | Surface annexe : 60 m² | Garage(s) : 1 |
| Prix : 589 000 € |
Géolocalisation du bien
*Terrain proposé et vendu par notre partenaire foncier selon disponibilité et autorisation de publicité, prix du terrain hors frais de notaire et d’hypothèque.
Prix maison : hors papiers peints, peintures, revêtements de sol dans les chambres, cuisines, meubles vasques, et faïences (modifiable sans préavis, prix variables suivant les prestations souhaitées) hors frais d’hypothèque.




