MAISONS CRÉATION vous propose un projet de construction situé à Romillé, dans un secteur agréable à proximité de quartiers résidentiels, du centre, des commodités et des services.
Le projet est implanté sur un terrain de 302 m², orienté SUD-EST, offrant une belle luminosité et un jardin agréable.
Maison familiale – 100 m² – 4 chambres – Garage
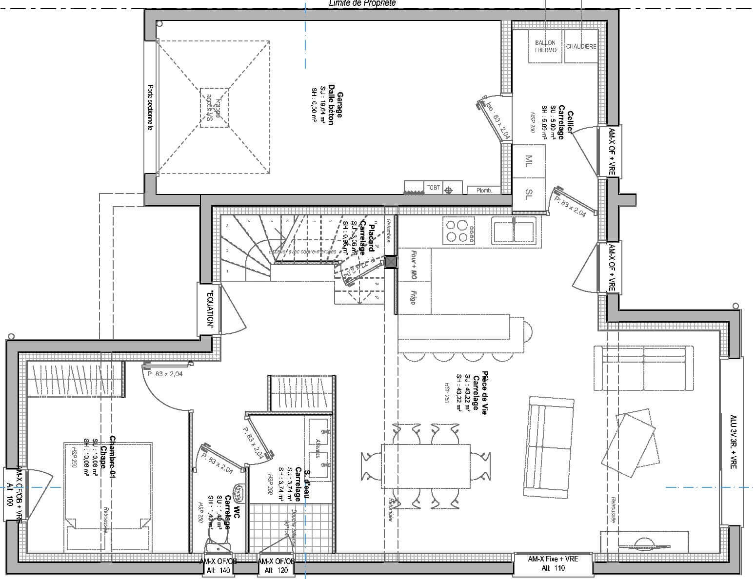
Cet exemple de maison, composée de 5 pièces et développant 100 m² habitables, se compose :
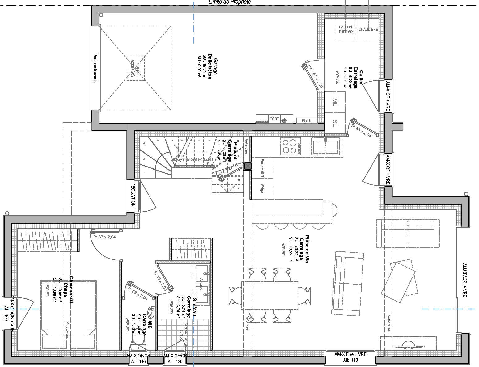
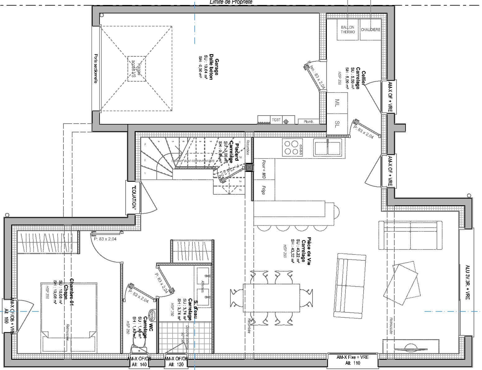
Au rez-de-chaussée :
- Une entrée
- Une cuisine ouverte
- Une buanderie
- Des WC séparés
- Un salon / séjour de 43 m²
- Une chambre parentale avec salle d’eau et placard
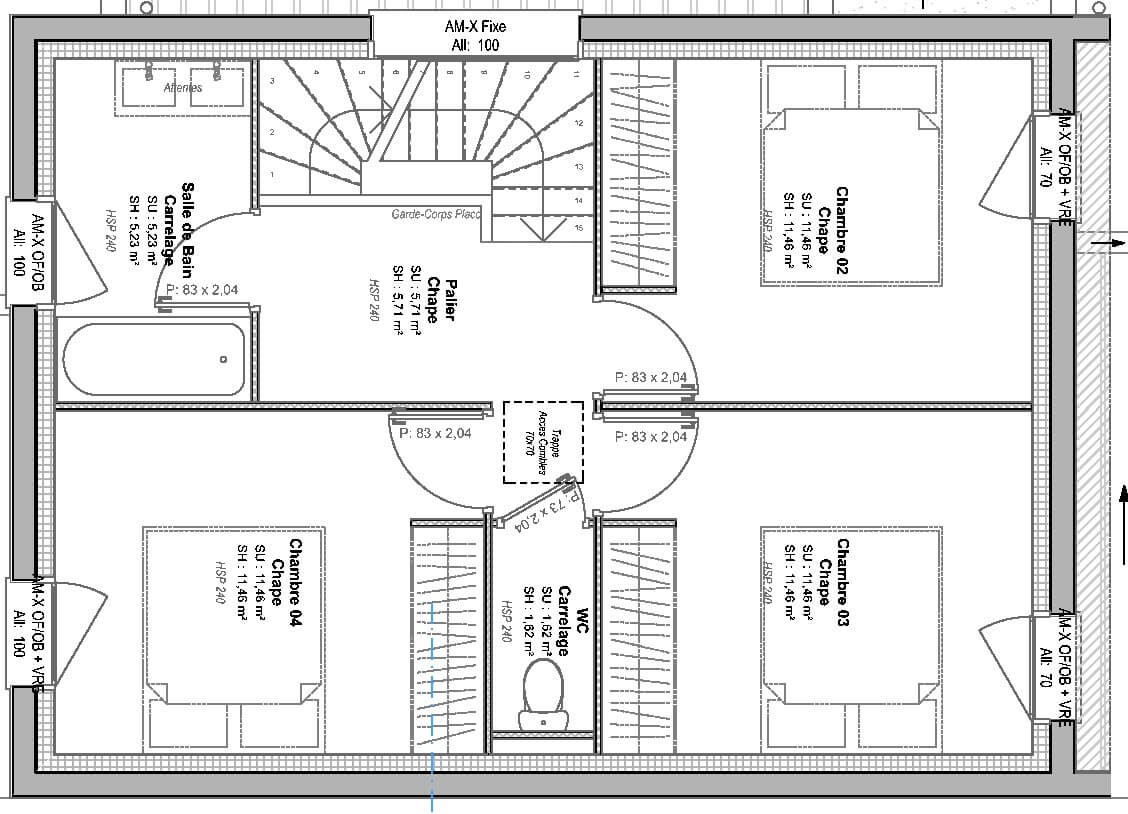
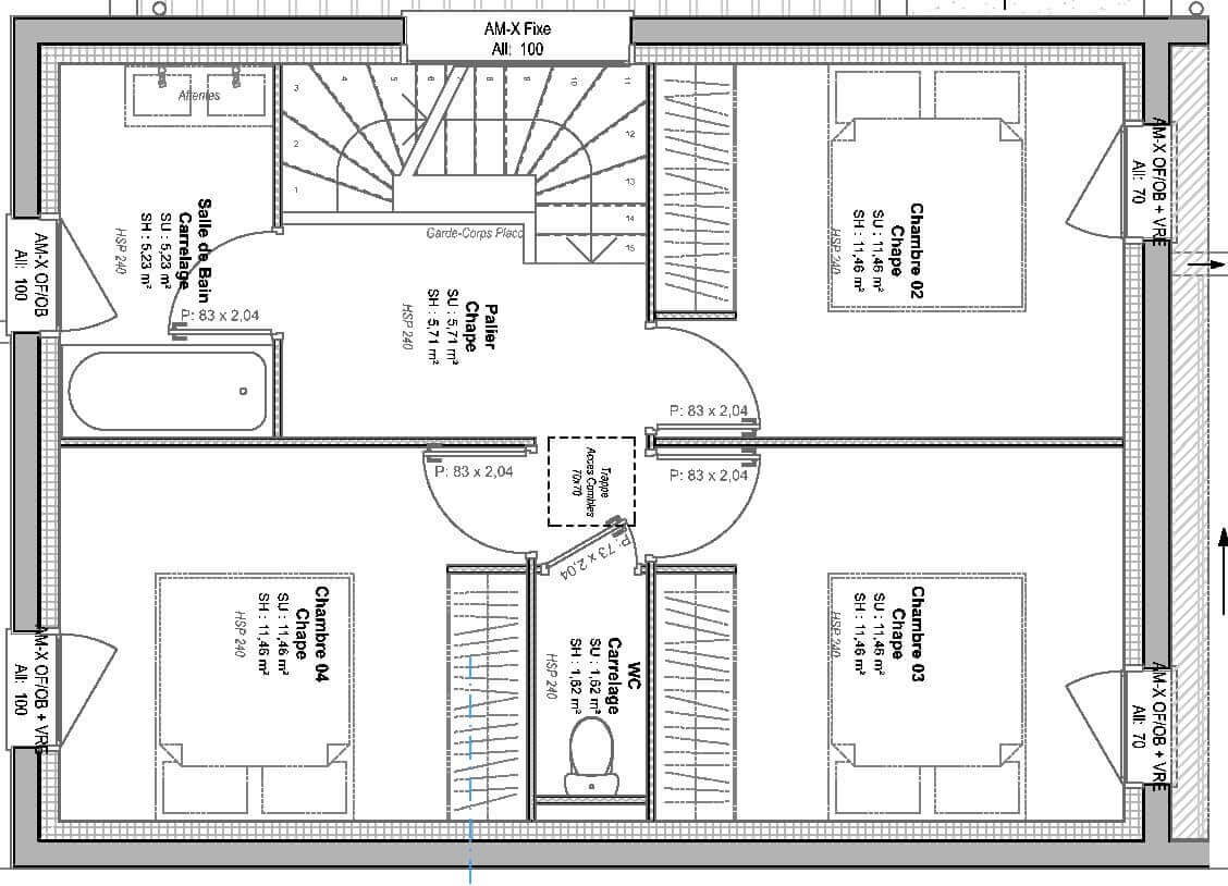
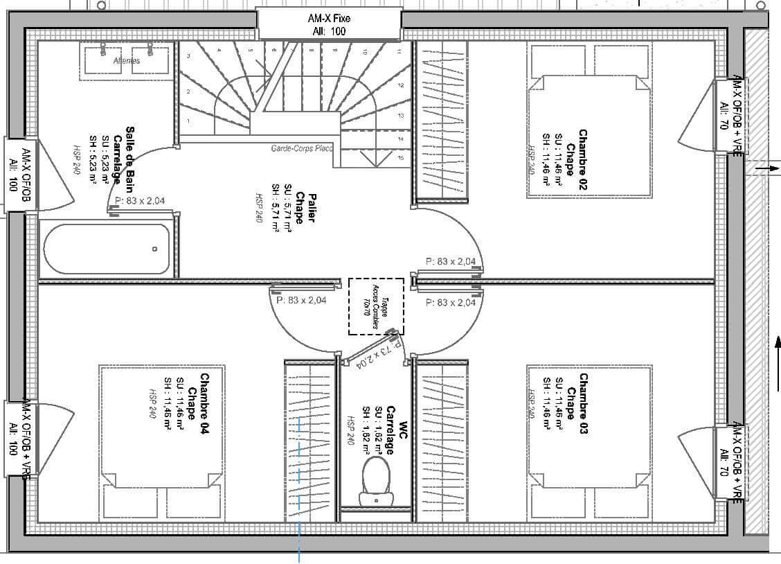
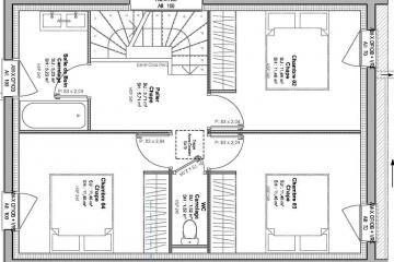
À l’étage :
- 3 chambres
- Une salle de bains
- Un WC séparé
Annexes
- Un garage attenant
Pour plus de renseignements, contactez notre équipe commerciale MAISONS CRÉATION : 02 99 05 36 46
Informations complémentaires
| Chambre(s) : 4 | Salle(s) de bain : 2 | Surface habitable : 100 m² |
| Surface terrain : 302 m² | Surface annexe : 43 m² | Garage(s) : 1 |
| Prix : 279 000 € |
Géolocalisation du bien
*Terrain proposé et vendu par notre partenaire foncier selon disponibilité et autorisation de publicité, prix du terrain hors frais de notaire et d’hypothèque.
Prix maison : hors papiers peints, peintures, revêtements de sol dans les chambres, cuisines, meubles vasques, et faïences (modifiable sans préavis, prix variables suivant les prestations souhaitées) hors frais d’hypothèque.




