MAISONS CRÉATION vous propose un projet de construction, idéal pour un primo-accédant, situé à Pleugueneuc, à proximité de toutes les commodités d’une commune en plein développement.
Le projet est implanté sur un terrain de 298 m², offrant une belle luminosité et un jardin agréable.
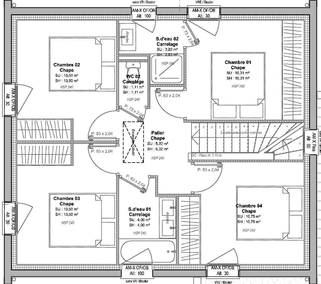
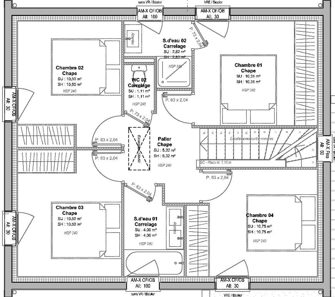
Maison optimisée – 100 m² – 4 chambres – Garage
Cet exemple de maison, composée de 5 pièces et développant 100 m² habitables, a été optimisé au maximum et se compose :
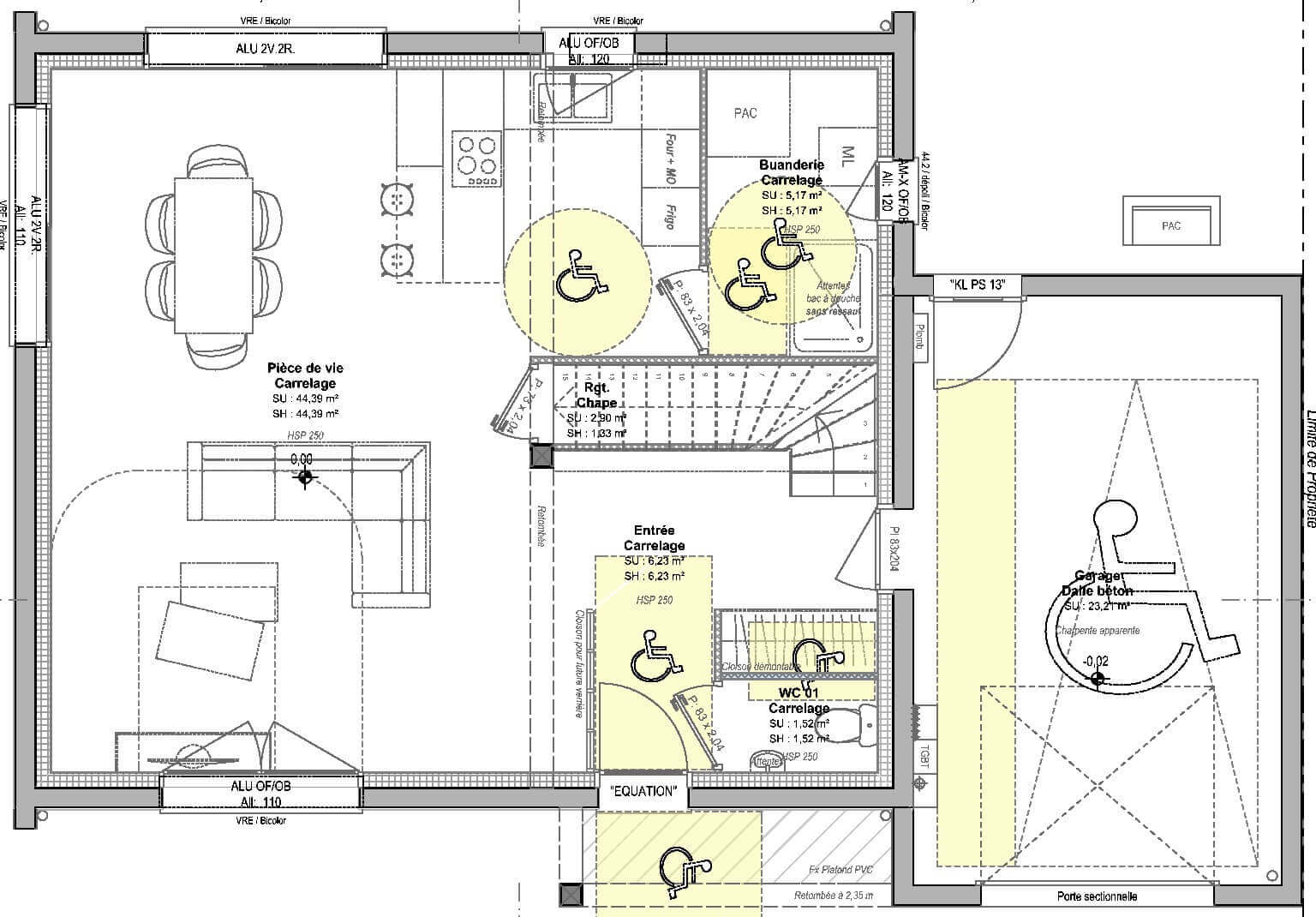
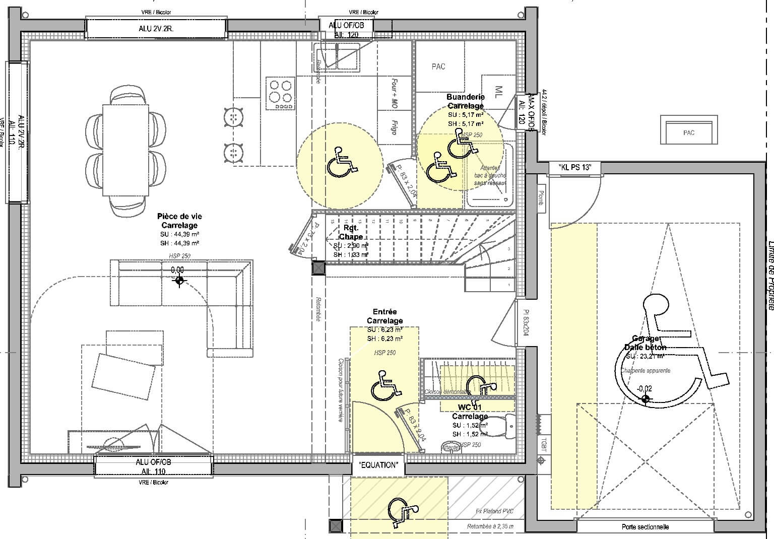
Au rez-de-chaussée :
- Une entrée
- Une cuisine ouverte
- Un salon / séjour de 40 m²
- Des WC séparés
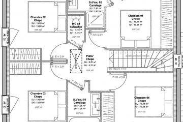
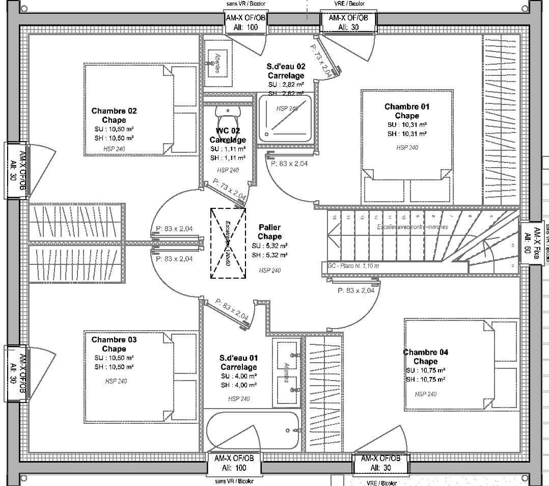
À l’étage :
- Une suite parentale avec salle d’eau privative
- 3 chambres avec placards
- Des WC séparés
Annexes
- Un garage attenant
Pour plus de renseignements, contactez notre équipe commerciale MAISONS CRÉATION : 02 99 05 36 46
Informations complémentaires
| Chambre(s) : 4 | Salle(s) de bain : 2 | Surface habitable : 100 m² |
| Surface terrain : 298 m² | Surface annexe : 40 m² | Garage(s) : 1 |
| Prix : 228 550 € |
Géolocalisation du bien
*Terrain proposé et vendu par notre partenaire foncier selon disponibilité et autorisation de publicité, prix du terrain hors frais de notaire et d’hypothèque.
Prix maison : hors papiers peints, peintures, revêtements de sol dans les chambres, cuisines, meubles vasques, et faïences (modifiable sans préavis, prix variables suivant les prestations souhaitées) hors frais d’hypothèque.





