MAISONS CREATION vous propose un projet de construction personnalisable sur un terrain de 316 m², orienté SUD, situé sur les hauteurs du port de Perros-Guirec.
Maison 93 m² – 3 chambres – Garage – Buanderie
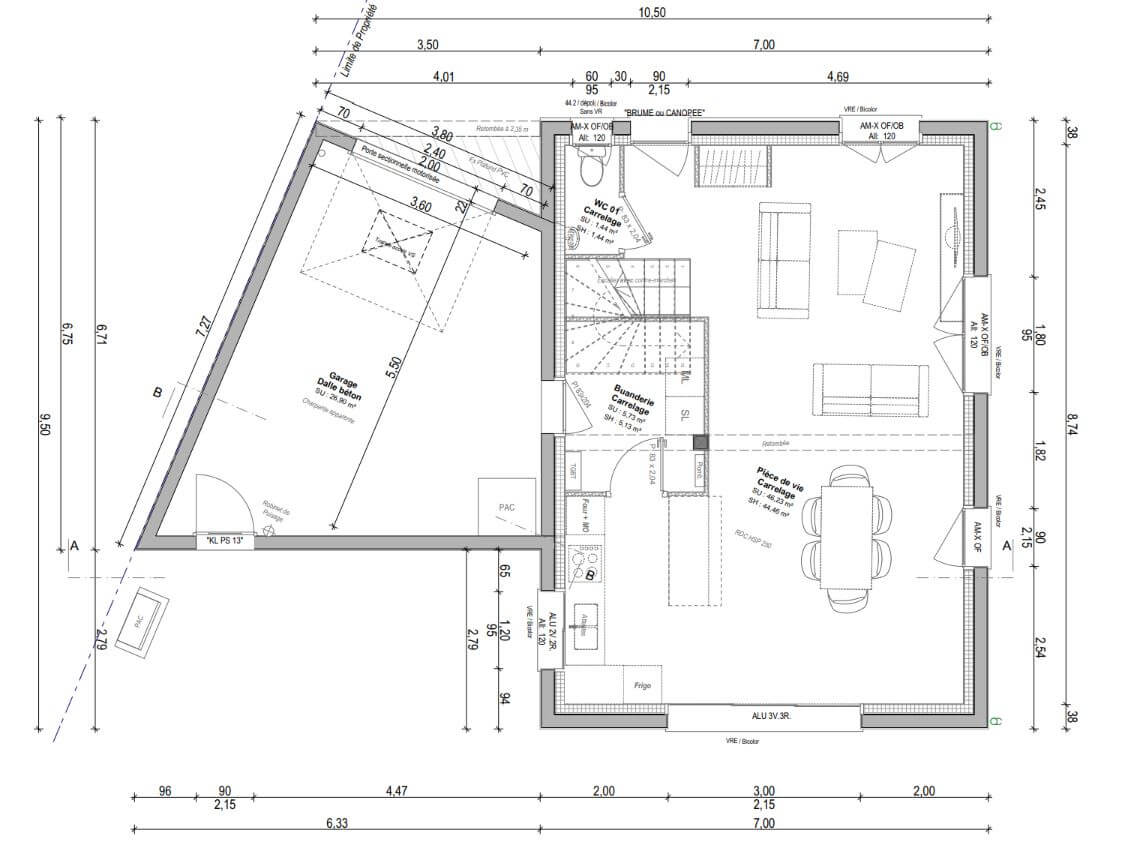
Cet exemple de maison de 93 m² se compose :
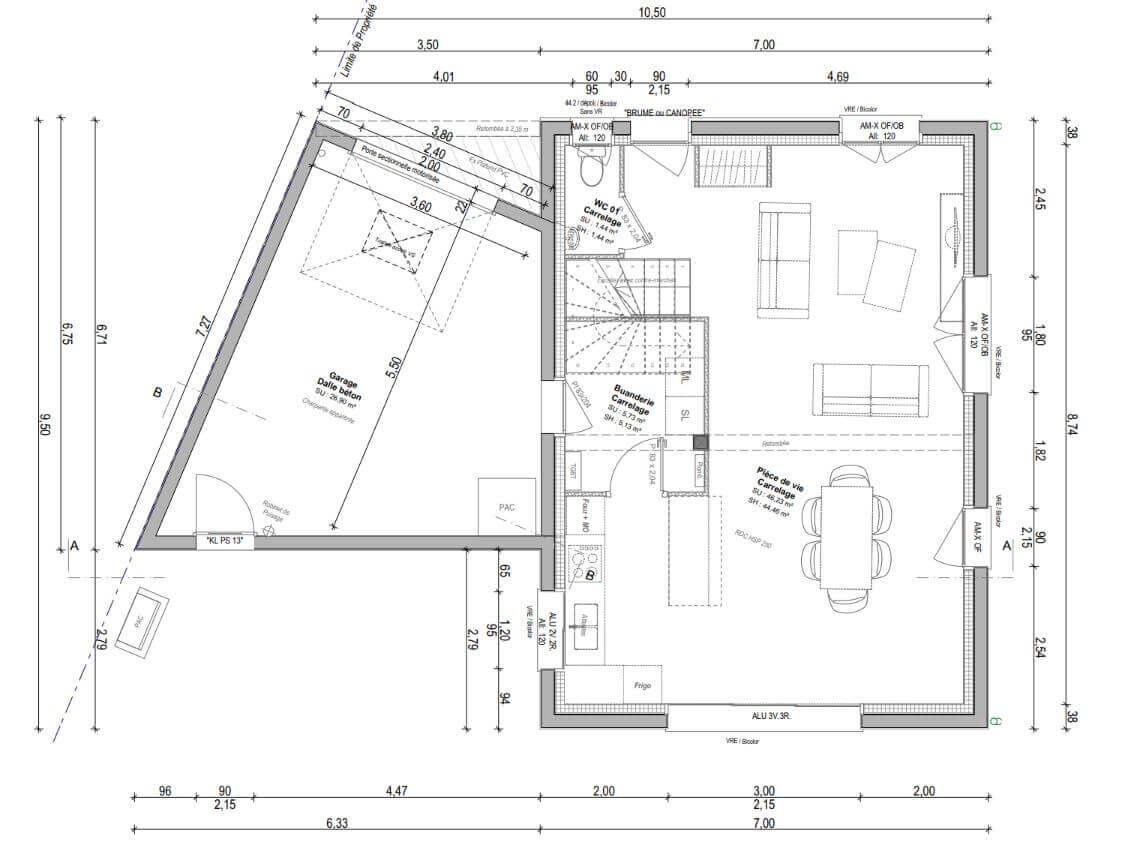
Au rez-de-chaussée :
- Une entrée avec placard
- Un séjour de 44 m², lumineux grâce à une baie exposée SUD
- Une cuisine / salle à manger ouverte, avec accès à la terrasse côté jardin
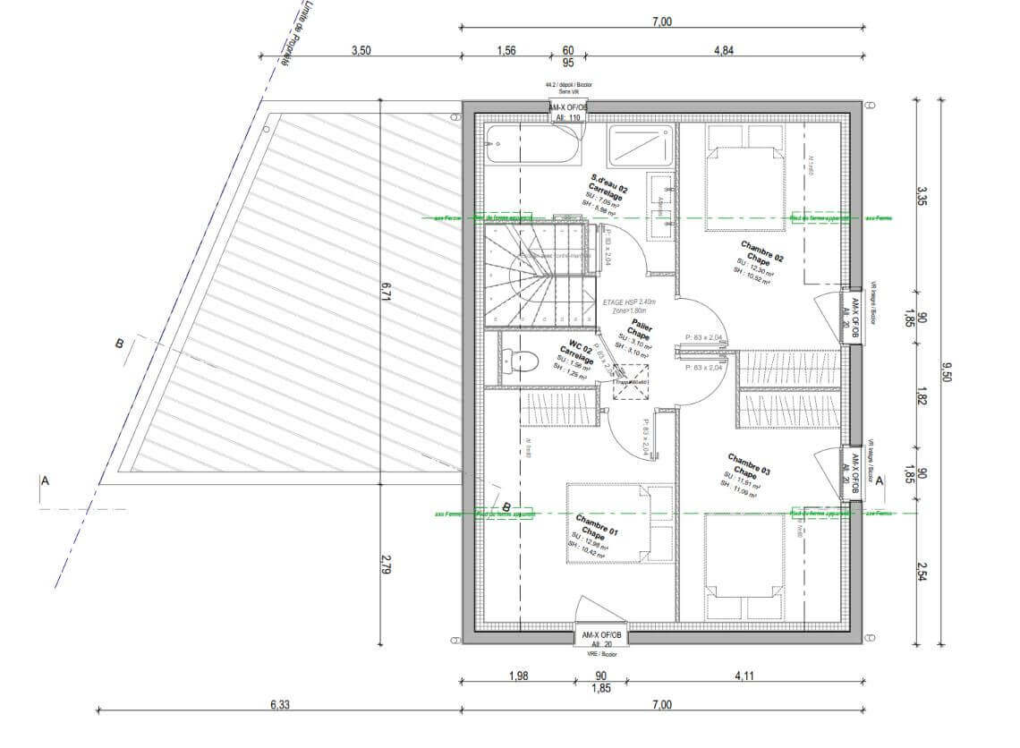
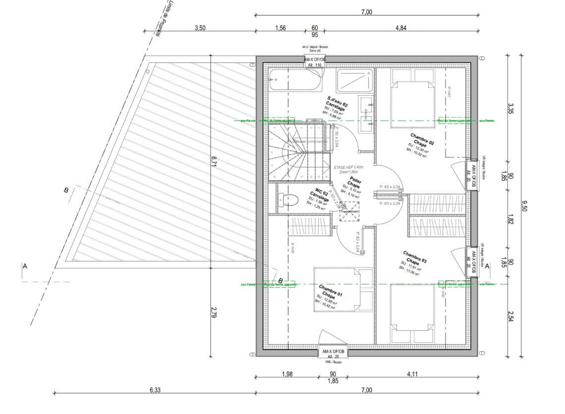
À l’étage :
- 3 chambres avec placard
- Une salle d’eau / bain
- Un WC séparé
Annexes :
- Un garage de 26 m²
- Une buanderie reliant le garage à la cuisine
Pour de plus amples renseignements, contactez notre équipe commerciale MAISONS CREATION : 02 99 05 36 46
Informations complémentaires
| Chambre(s) : 3 | Salle(s) de bain : 1 | Surface habitable : 93 m² |
| Surface terrain : 316 m² | Surface annexe : 44 m² | Garage(s) : 1 |
| Prix : 290 160 € |
Géolocalisation du bien
*Terrain proposé et vendu par notre partenaire foncier selon disponibilité et autorisation de publicité, prix du terrain hors frais de notaire et d’hypothèque.
Prix maison : hors papiers peints, peintures, revêtements de sol dans les chambres, cuisines, meubles vasques, et faïences (modifiable sans préavis, prix variables suivant les prestations souhaitées) hors frais d’hypothèque.





