MAISONS CREATION vous propose projet de construction personnalisable sur un terrain de 316 m² orienté SUD sur les hauteurs du port de Perros-Guirec.
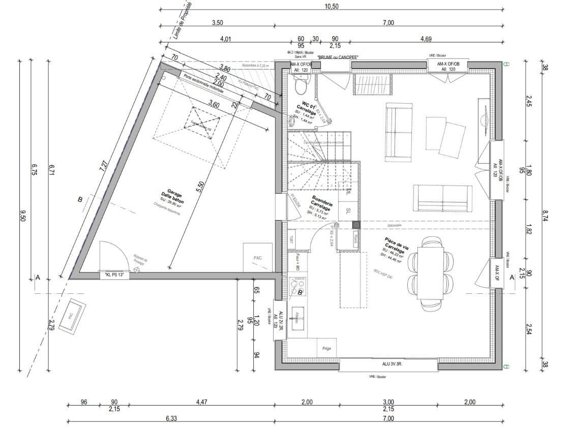
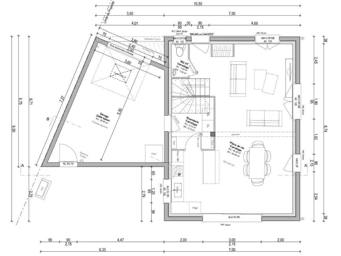
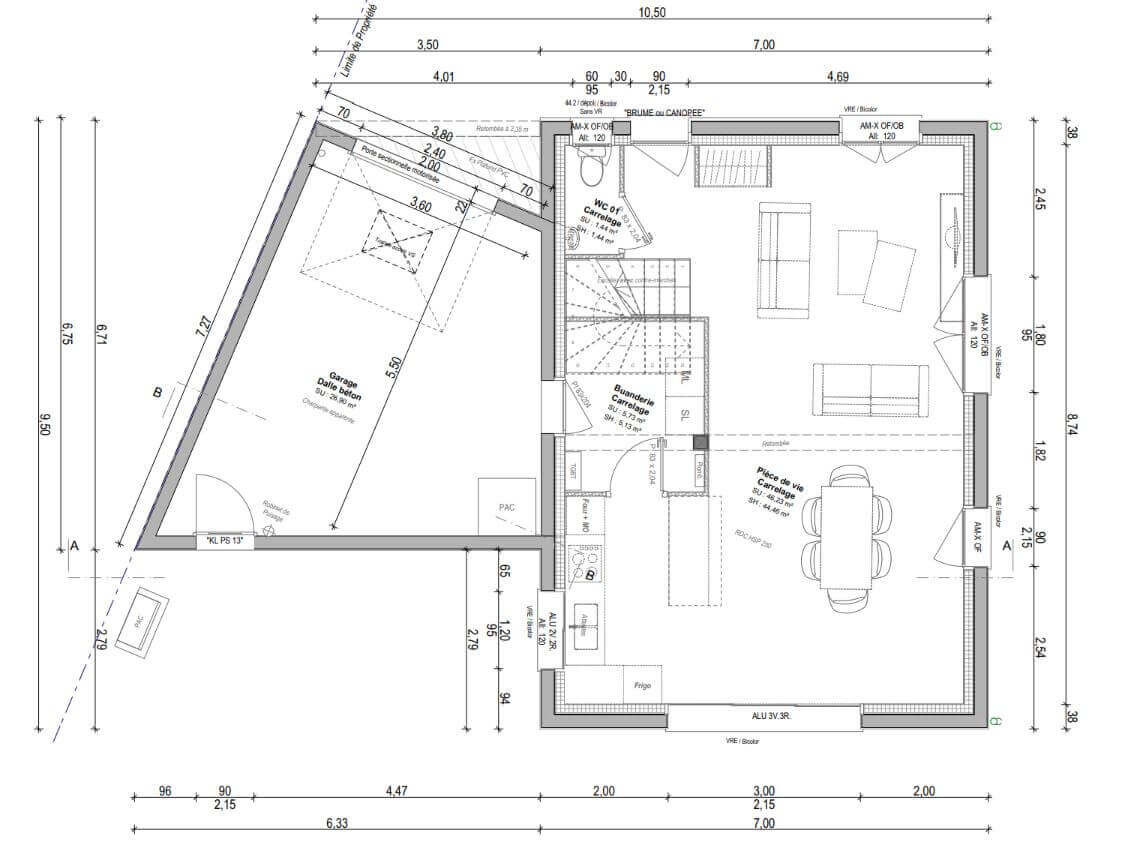
Cette maison de 93 m² se compose, au rez-de-chaussée, d'une entrée avec placard desservant le séjour de 44 m² lumineux grâce à une baie SUD. La cuisine/ salle à manger est ouverte et donne accès à la terrasse côté jardin.
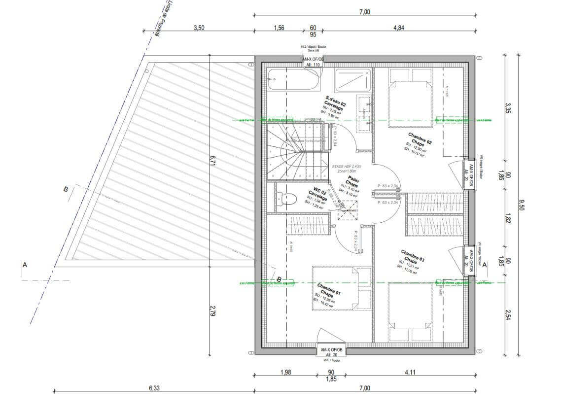
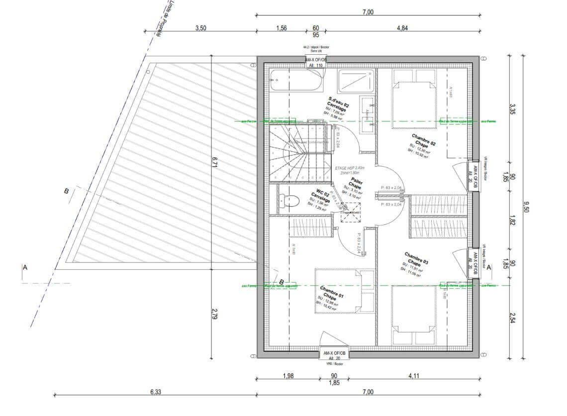
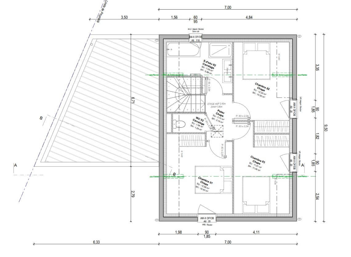
Au premier étage, trois chambresavec placard, une salle d'eau/ bain, un WC séparé.
Le bien proposé est composé d'un garage de 26 m² ainsi que d'une buanderie connectant le garage de la cuisine.
Pour de plus amples renseignements contacter notre équipe commerciale MAISONS CREATION – 02 99 05 36 46.
Informations complémentaires
| Chambre(s) : 3 | Salle(s) de bain : 1 | Surface habitable : 93 m² |
| Surface terrain : 316 m² | Surface annexe : 44 m² | Garage(s) : 1 |
| Prix : 290 160 € |
Géolocalisation du bien
*Terrain proposé et vendu par notre partenaire foncier selon disponibilité et autorisation de publicité, prix du terrain hors frais de notaire et d’hypothèque.
Prix maison : hors papiers peints, peintures, revêtements de sol dans les chambres, cuisines, meubles vasques, et faïences (modifiable sans préavis, prix variables suivant les prestations souhaitées) hors frais d’hypothèque.





