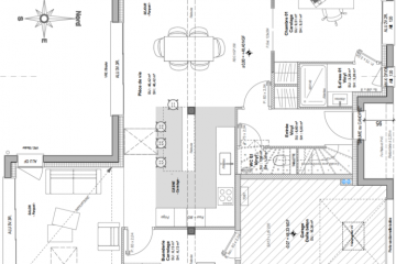
Maisons Création vous propose, sur un terrain de 341m², une maison de 122m², entièrement personnalisable qui se compose :
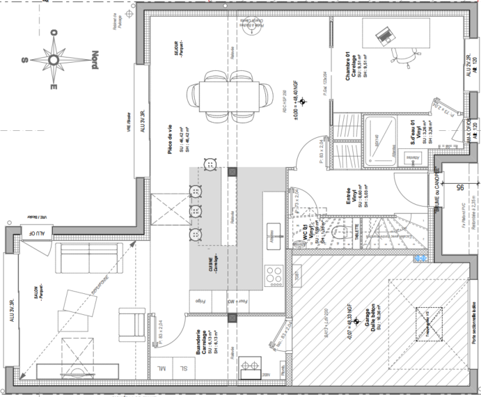
Au rez-de-chaussée : une entrée indépendante, une pièce de vie de 46m² avec une hauteur sous plafond dans le salon de 3m, une chambre avec salle d'eau, WC séparés, une buanderie et un garage,
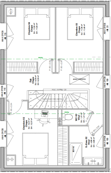
A l'étage : 3 chambres de entre 11 et 13m², une salle d'eau et WC séparés.
Votre projet Maison + Terrain à partir de 373940€ (Hors frais)
NON MANDATÉ POUR LA VENTE DES TERRAINS
Maisons CREATION Rennes n’est pas chargé de réaliser la vente des terrains à bâtir mentionnés dans ces annonces.
Maisons CREATION Rennes agit seulement en qualité de constructeur.
Informations complémentaires
| Chambre(s) : 4 | Salle(s) de bain : 2 | Surface habitable : 122 m² |
| Surface terrain : 341 m² | Surface annexe : 46 m² | Garage(s) : 1 |
| Prix : 373 940 € |
Géolocalisation du bien
*Terrain proposé et vendu par notre partenaire foncier selon disponibilité et autorisation de publicité, prix du terrain hors frais de notaire et d’hypothèque.
Prix maison : hors papiers peints, peintures, revêtements de sol dans les chambres, cuisines, meubles vasques, et faïences (modifiable sans préavis, prix variables suivant les prestations souhaitées) hors frais d’hypothèque.





