À Vendre : Projet de Construction Maison Individuelle - Domloup (35)
Maisons Création vous propose un magnifique projet de construction sur un terrain de 305 m², idéalement situé ZAC du Tertre. Profitez d’une exposition plain Sud pour un ensoleillement optimal tout au long de la journée !
Maison moderne et personnalisable
Ce projet comprend :
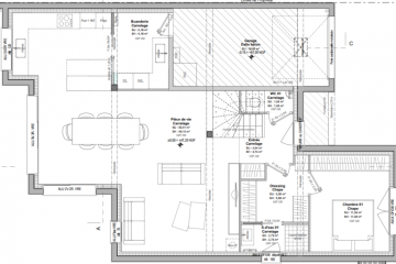
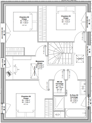
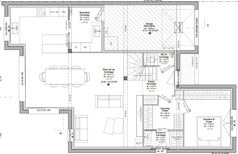
✅ 4 chambres, dont une suite parentale au rez-de-chaussée
✅ Une pièce de vie spacieuse de 50 m², baignée de lumière
✅ Un garage
✅ Des prestations de qualité et une conception sur mesure adaptée à vos envies
Un projet entièrement personnalisable : nos équipes sont à votre écoute pour concevoir la maison qui vous correspond parfaitement !
Un cadre de vie privilégié
Situé à Domloup, ce terrain vous offre un accès facile aux commerces, écoles et transports, tout en garantissant un environnement calme et agréable.
Informations sur demande
Contactez-nous dès maintenant pour plus de renseignements et étudier ensemble votre projet !
Maisons Création – Réalisons ensemble votre maison idéale !
Informations complémentaires
| Chambre(s) : 4 | Salle(s) de bain : 2 | Surface habitable : 130 m² |
| Surface terrain : 305 m² | Surface annexe : 50 m² | Garage(s) : 1 |
| Prix : 341 500 € |
Géolocalisation du bien
*Terrain proposé et vendu par notre partenaire foncier selon disponibilité et autorisation de publicité, prix du terrain hors frais de notaire et d’hypothèque.
Prix maison : hors papiers peints, peintures, revêtements de sol dans les chambres, cuisines, meubles vasques, et faïences (modifiable sans préavis, prix variables suivant les prestations souhaitées) hors frais d’hypothèque.





