Exclusivité à Nouvoitou !
À proximité de du bourg à pied, dans le quartier La Porte, cette maison contemporaine à étage bénéficie ensoleillement optimum grâce à son terrain de 259 m² exposé plein Ouest.
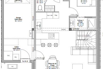
Cette maison comprend au rez-de-chaussée, une entrée, une cuisine ouverte sur un Salon / Séjour de 40m², une chambre parentale, avec une salle d'eau et placard ainsi que de WC Séparés.
A l'étage, vous pourrez profiter de 3 chambres avec placard, une salle de bains et de WC Séparés.
Cette maison dispose également d'un garage attenant.
NON MANDATÉ POUR LA VENTE DES TERRAINS
Maisons CREATION Rennes n’est pas chargé de réaliser la vente des terrains à bâtir mentionnés dans ces annonces.
Maisons CREATION Rennes agit seulement en qualité de constructeur.
Sous réserve de disponibilité de notre partenaire foncier.
Informations complémentaires
| Chambre(s) : 4 | Salle(s) de bain : 2 | Surface habitable : 101 m² | 
| Surface terrain : 259 m² | Surface annexe : 40 m² | Garage(s) : 1 | 
| Prix : 272 552 € | 
Géolocalisation du bien
            *Terrain proposé et vendu par notre partenaire foncier selon disponibilité et autorisation de publicité, prix du terrain hors frais de notaire et d’hypothèque.
Prix maison : hors papiers peints, peintures, revêtements de sol dans les chambres, cuisines, meubles vasques, et faïences (modifiable sans préavis, prix variables suivant les prestations souhaitées) hors frais d’hypothèque.        
 
            
 
                                        



