Venez découvrir ce superbe projet de maison contemporaine idéalement située en plein bourg de LASSY, sur un magnifique terrain de 814 m².
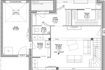
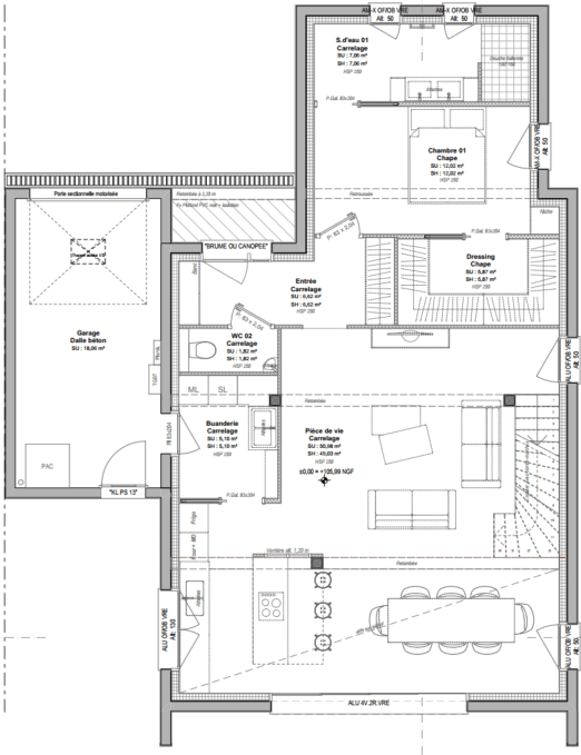
Cette future habitation d’environ 140 m² allie confort, luminosité et modernité. Elle se compose de :
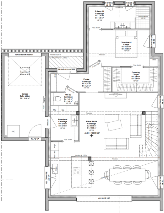
Une vaste pièce de vie de 50 m² baignée de lumière, avec un vide sur séjour offrant une belle hauteur sous plafond et une vue dégagée sur le jardin et les toits du village.
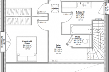
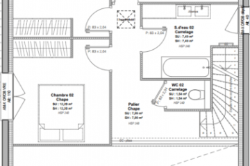
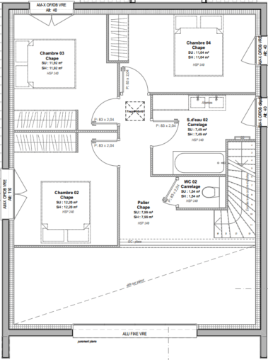
Quatre chambres spacieuses, dont une suite parentale au rez-de-chaussée avec salle d’eau privative et dressing.
Une salle de bains familiale à l’étage, espace bureau ou coin détente selon vos envies.
Garage et espace technique complètent l’ensemble.
Ce projet vous offre le charme d’un cadre de vie paisible au cœur d’une commune recherchée, tout en restant proche des commodités, des écoles et des axes principaux.
Un lieu unique, une architecture moderne, un environnement privilégié : votre future maison à LASSY vous attend !
Informations complémentaires
| Chambre(s) : 4 | Salle(s) de bain : 2 | Surface habitable : 140 m² |
| Surface terrain : 814 m² | Surface annexe : 50 m² | Garage(s) : 1 |
| Prix : 385 000 € |
Géolocalisation du bien
*Terrain proposé et vendu par notre partenaire foncier selon disponibilité et autorisation de publicité, prix du terrain hors frais de notaire et d’hypothèque.
Prix maison : hors papiers peints, peintures, revêtements de sol dans les chambres, cuisines, meubles vasques, et faïences (modifiable sans préavis, prix variables suivant les prestations souhaitées) hors frais d’hypothèque.





