Nous vous proposons, à Laillé, commune dynamique située à 25 min au sud de Rennes et à 10 min de Bruz et Guichen, sur un terrain de 514 m², une maison composée de la manière suivante :
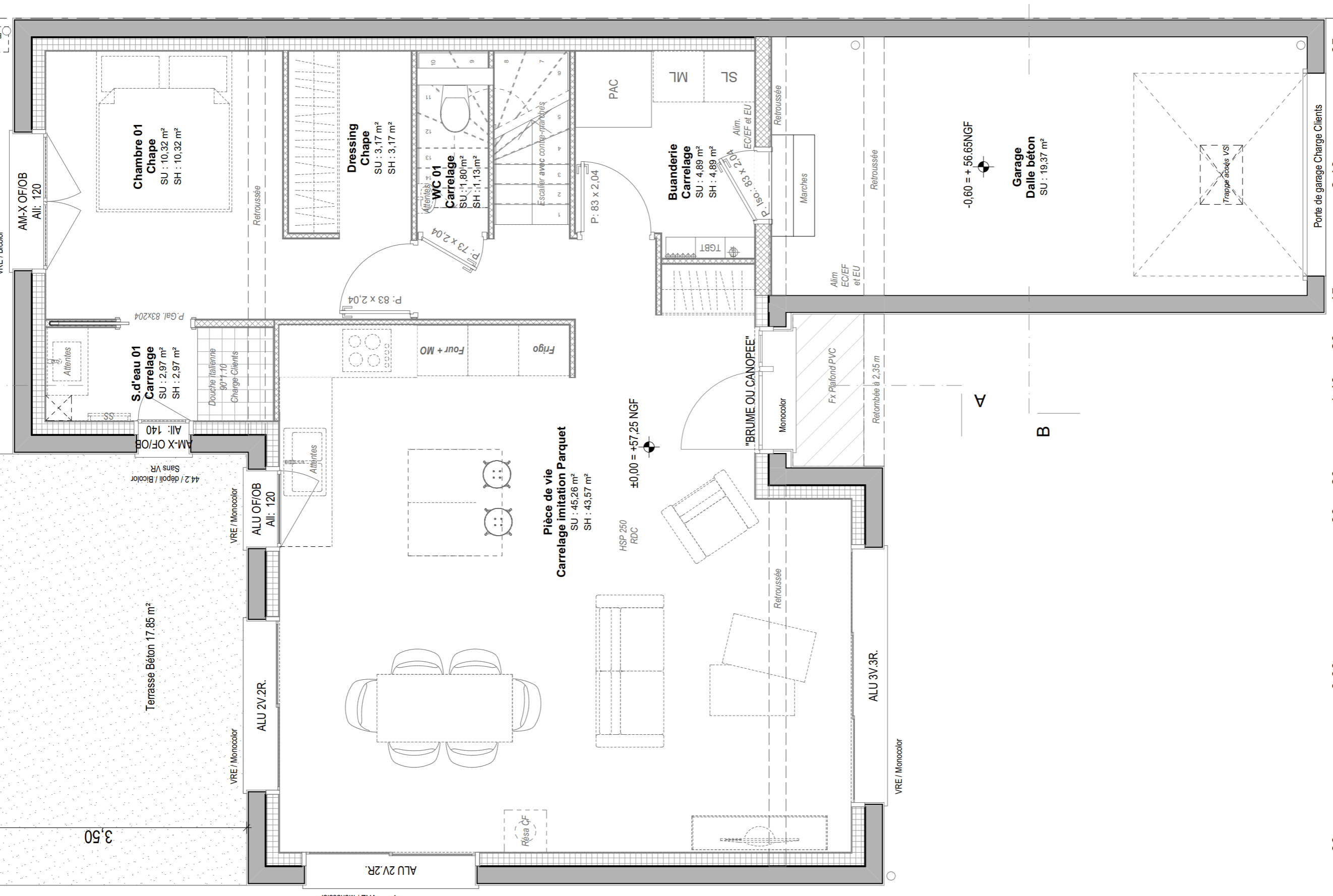
- au rez-de-chaussée : un garage, une buanderie, une pièce de vie de 45 m², des WC séparés et une suite parentale
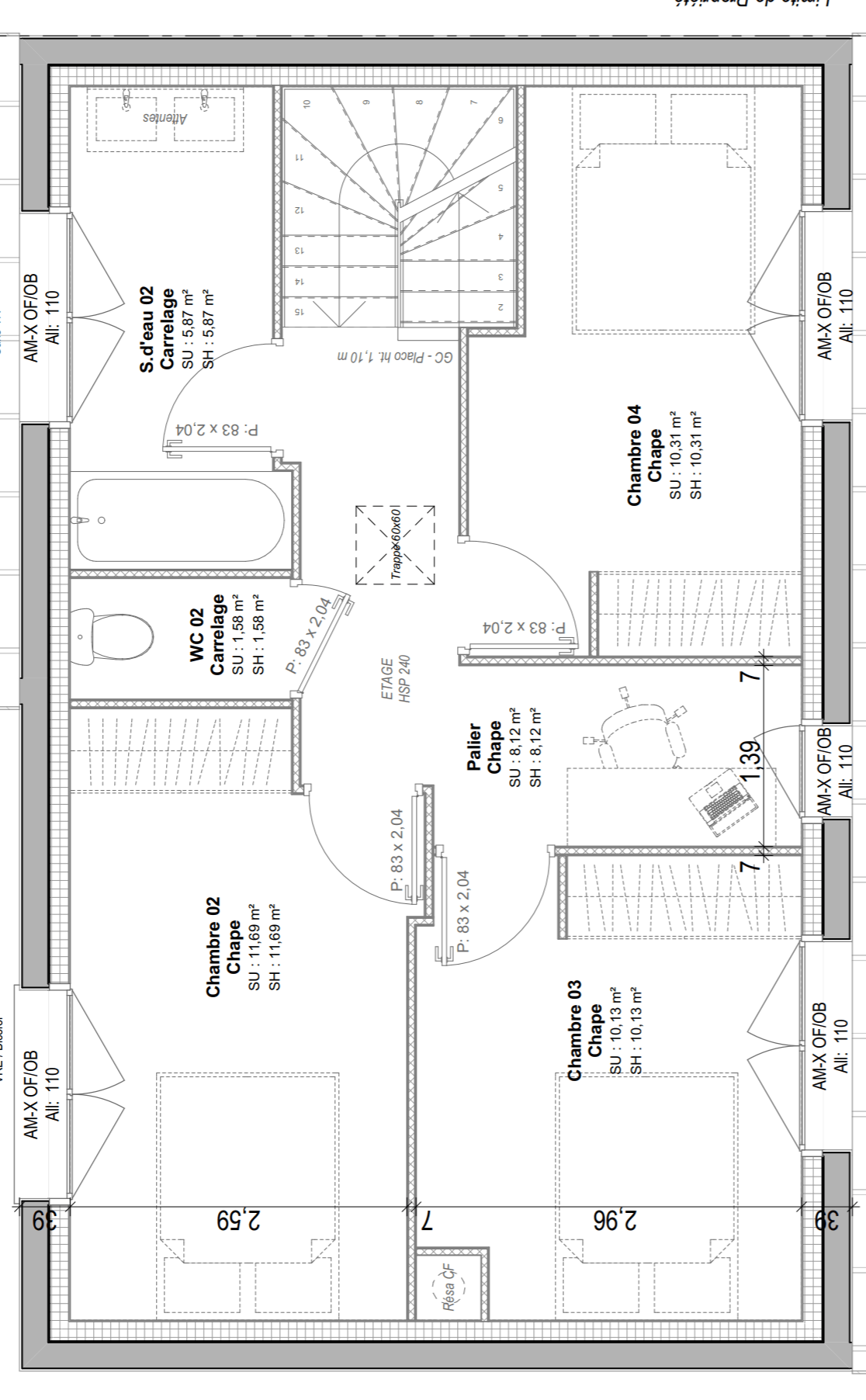
- à l'étage : 3 chambres, une salle de bains, des WC séparés et un espace bureau (télétravail).
Projet entièrement personnalisable.
Informations complémentaires
| Chambre(s) : 4 | Salle(s) de bain : 2 | Surface habitable : 114 m² |
| Surface terrain : 514 m² | Surface annexe : 44 m² | Garage(s) : 1 |
| Prix : 382 250 € |
Géolocalisation du bien
*Terrain proposé et vendu par notre partenaire foncier selon disponibilité et autorisation de publicité, prix du terrain hors frais de notaire et d’hypothèque.
Prix maison : hors papiers peints, peintures, revêtements de sol dans les chambres, cuisines, meubles vasques, et faïences (modifiable sans préavis, prix variables suivant les prestations souhaitées) hors frais d’hypothèque.





