A découvrir à Guichen !
À proximité de du bourg, sur l'axe menant à LAILLE, cette maison traditionnelle étage bénéficie d'une belle luminosité et d'un jardin et 343m²orienté plein Ouest. Dans un petit lotissement en impasse composé de maisons cossues, ne raté par l'opporrunité d'aquerir ce dernier terrain.
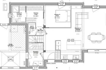
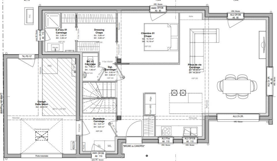
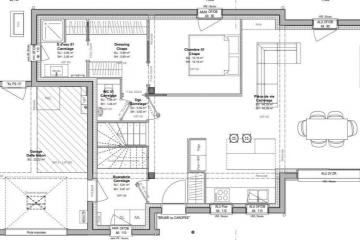
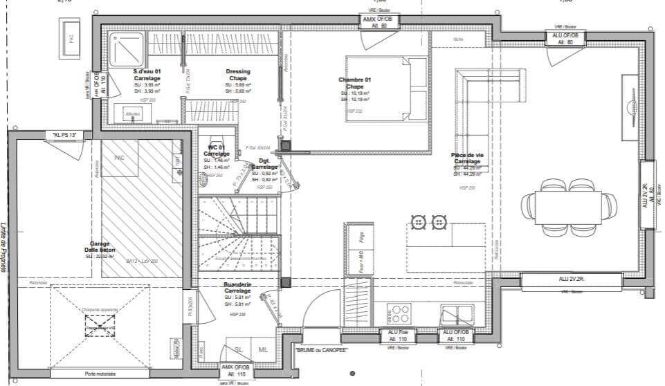
Ce projet totalement ajustable a tout pour vous plaire, à savoir : au rez-de-chaussée, une entrée avec placard, une sapcieuse et lumineuse pièce de vie, une suite parentale et une buanderie.
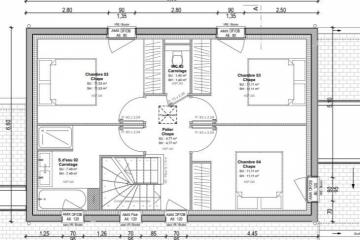
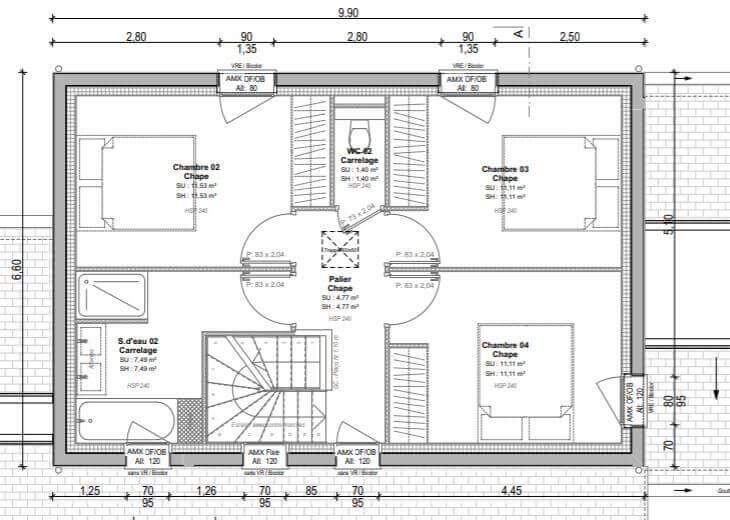
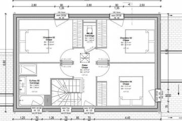
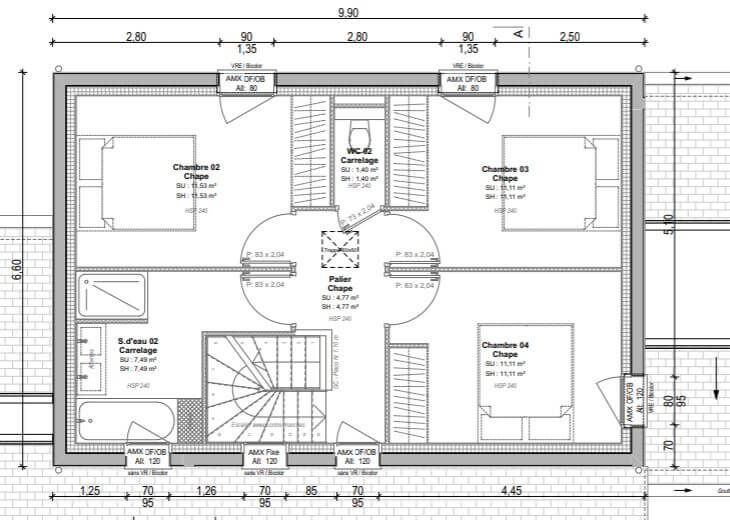
A l'étage, palier fonctionnel, 3 chambres, une salle de bains et un WC indépendant.
Votre projet Maison + Terrain à partir de 285540€ (Hors frais)
NON MANDATÉ POUR LA VENTE DES TERRAINS
Maisons CREATION Rennes n’est pas chargé de réaliser la vente des terrains à bâtir mentionnés dans ces annonces.
Maisons CREATION Rennes agit seulement en qualité de constructeur.
Informations complémentaires
| Chambre(s) : 4 | Salle(s) de bain : 2 | Surface habitable : 100 m² | 
| Surface terrain : 343 m² | Surface annexe : 45 m² | Garage(s) : 1 | 
| Prix : 285 540 € | 
Géolocalisation du bien
            *Terrain proposé et vendu par notre partenaire foncier selon disponibilité et autorisation de publicité, prix du terrain hors frais de notaire et d’hypothèque.
Prix maison : hors papiers peints, peintures, revêtements de sol dans les chambres, cuisines, meubles vasques, et faïences (modifiable sans préavis, prix variables suivant les prestations souhaitées) hors frais d’hypothèque.        
 
            
 
                                        



