MAISONS CRÉATION vous propose un projet de construction rare à Bruz, situé à proximité immédiate du bourg et des axes d’accès, dans un secteur recherché.
Le projet est implanté sur un terrain plat et arboré de 541 m², orienté SUD-EST, offrant une belle luminosité et un cadre de vie privilégié. La maison bénéficie d’une couverture en ardoise et se situe à environ 10 minutes à pied du centre-ville.
Maison familiale – 115 m² – 4 chambres – Garage
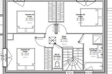
Cet exemple de maison à étage, composée de 6 pièces et développant 115 m² habitables, se compose :
Au rez-de-chaussée :
- Une entrée
- Une cuisine ouverte
- Une belle pièce de vie de 43 m²
- Une suite parentale
- Une buanderie
- Des WC séparés
- Un garage
À l’étage :
- 3 chambres avec placards
- Une salle de bains
- Des WC séparés
Pour plus de renseignements, contactez notre équipe commerciale MAISONS CRÉATION : 02 99 05 36 46
Informations complémentaires
| Chambre(s) : 4 | Salle(s) de bain : 2 | Surface habitable : 115 m² |
| Surface terrain : 541 m² | Surface annexe : 53 m² | Garage(s) : 1 |
| Prix : 505 000 € |
Géolocalisation du bien
*Terrain proposé et vendu par notre partenaire foncier selon disponibilité et autorisation de publicité, prix du terrain hors frais de notaire et d’hypothèque.
Prix maison : hors papiers peints, peintures, revêtements de sol dans les chambres, cuisines, meubles vasques, et faïences (modifiable sans préavis, prix variables suivant les prestations souhaitées) hors frais d’hypothèque.





