Rare à Bruz !
À proximité de du bourg et des accès, cette maison étage avec une couverture ardoise bénéficie d'une belle luminosité et d'un jardin plat et arboré et 541m²orienté Sud-Est.
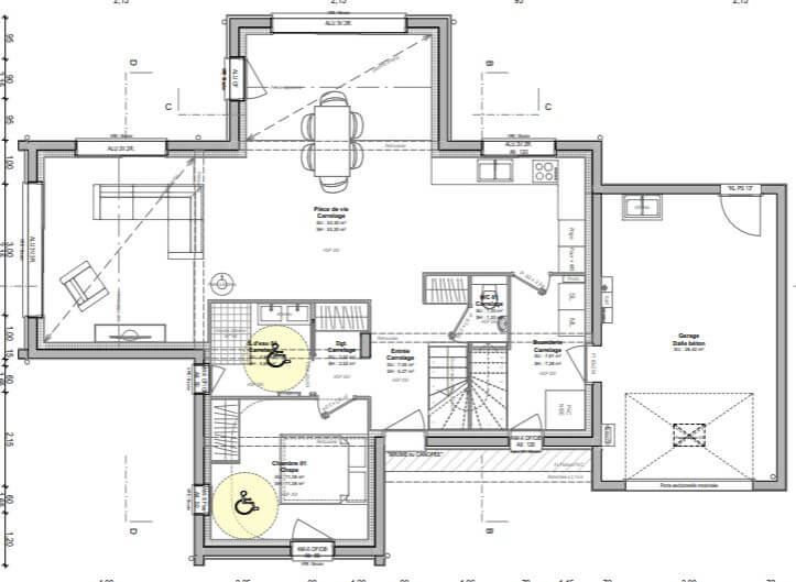
Proche du centre, 10 minutes à pied, cette maison spacieuse est composée de 6 pièces répartie sur 133m².
Elle comprend au rez-de-chaussée, une entrée, une cuisine ouverte sur une belle pièce de vie de 53m², une suite parentale, une buanderie, des WC séparés et un garage,
A l'étage, vous pourrez profiter de 3 chambres avec placard, une salle de bain et de WC séparés.
Votre projet Maison + Terrain à partir de 540000€ (Hors frais)
NON MANDATÉ POUR LA VENTE DES TERRAINS
Maisons CREATION Rennes n’est pas chargé de réaliser la vente des terrains à bâtir mentionnés dans ces annonces.
Maisons CREATION Rennes agit seulement en qualité de constructeur.
Informations complémentaires
| Chambre(s) : 4 | Salle(s) de bain : 2 | Surface habitable : 133 m² |
| Surface terrain : 541 m² | Surface annexe : 53 m² | Garage(s) : 1 |
| Prix : 540 000 € |
Géolocalisation du bien
*Terrain proposé et vendu par notre partenaire foncier selon disponibilité et autorisation de publicité, prix du terrain hors frais de notaire et d’hypothèque.
Prix maison : hors papiers peints, peintures, revêtements de sol dans les chambres, cuisines, meubles vasques, et faïences (modifiable sans préavis, prix variables suivant les prestations souhaitées) hors frais d’hypothèque.





