MAISONS CRÉATION vous propose un projet de construction sur mesure situé à Brécé, à 15 minutes de Rennes et à 5 minutes de la gare de Servon-sur-Vilaine.
Le projet est implanté sur un terrain de 278 m², orienté SUD.
Maison 90 à 120 m² – 3 à 4 chambres
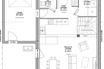
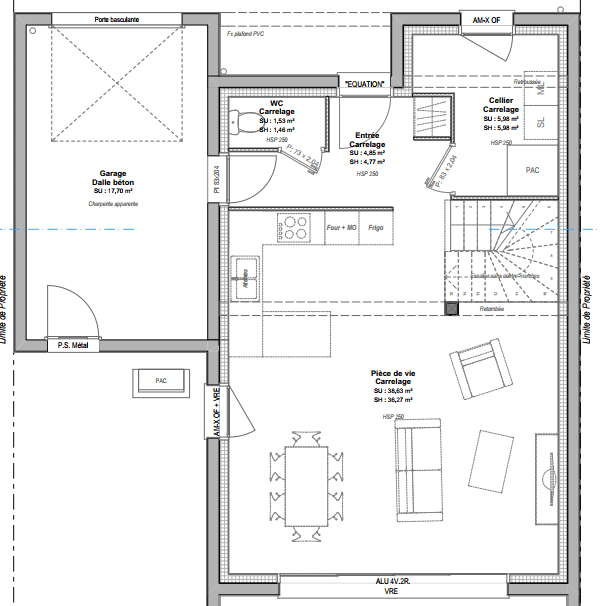
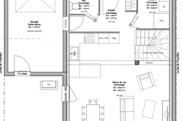
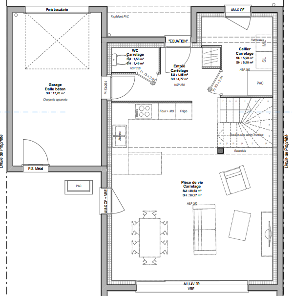
Cet exemple de maison se compose :
Au rez-de-chaussée :
- Une entrée
- Une pièce de vie d’environ 40 m² avec cuisine ouverte
- Une buanderie
- Des WC séparés
- Possibilité d’une 4ᵉ chambre
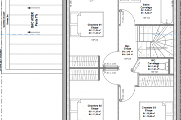
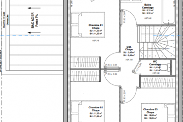
À l’étage :
- 3 chambres avec placards
- Une salle de bain
- Des WC séparés
- Possibilité d’une 5ᵉ chambre
Annexes (en option)
- Garage ou carport
Pour plus de renseignements, contactez notre équipe commerciale MAISONS CRÉATION : 02 99 05 36 46
Informations complémentaires
| Chambre(s) : 3 | Salle(s) de bain : 1 | Surface habitable : 95 m² |
| Surface terrain : 278 m² | Surface annexe : 40 m² | Garage(s) : 1 |
| Prix : 238 650 € |
Géolocalisation du bien
*Terrain proposé et vendu par notre partenaire foncier selon disponibilité et autorisation de publicité, prix du terrain hors frais de notaire et d’hypothèque.
Prix maison : hors papiers peints, peintures, revêtements de sol dans les chambres, cuisines, meubles vasques, et faïences (modifiable sans préavis, prix variables suivant les prestations souhaitées) hors frais d’hypothèque.





