Au cœur du quartier ZAC DE LA GREE à BOURGBARRE, MAISONS CREATION vous propose un projet de construction personnalisable.
Sur un terrain d'angle de 376m² orienté OUEST, dans un environnement paysager et préservé agrémenté de cheminements arborés, nous vous suggérons une maison sur étage de 104m².
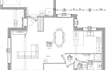
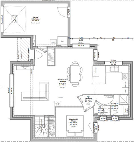
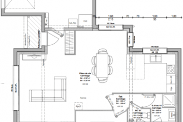
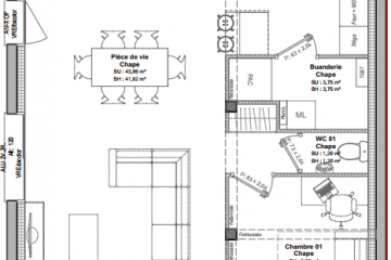
Au rez-de-chaussée le plan se compose d’une grande pièce de vie de 47m² avec cuisine ouverte, , WC indépendants, ainsi q'une suite parentale avec salle d'eau.
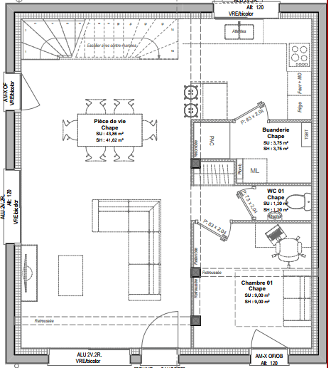
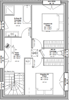
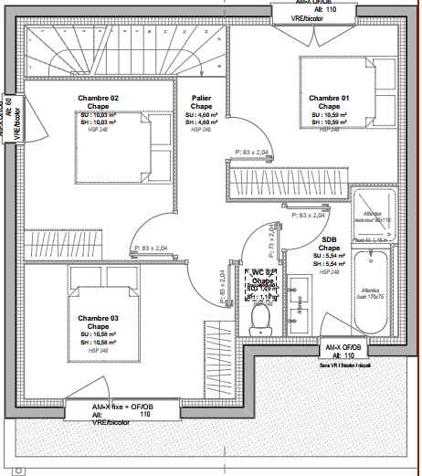
À l’étage vous trouverez 2 chambres avec placards, une salle d'eau, une mezzanine / bureau et un WC séparé.
Un garage vient compléter ce bien.
Informations complémentaires
| Chambre(s) : 3 | Salle(s) de bain : 2 | Surface habitable : 104 m² |
| Surface terrain : 376 m² | Surface annexe : 47 m² | Garage(s) : 1 |
| Prix : 314 625 € |
Géolocalisation du bien
*Terrain proposé et vendu par notre partenaire foncier selon disponibilité et autorisation de publicité, prix du terrain hors frais de notaire et d’hypothèque.
Prix maison : hors papiers peints, peintures, revêtements de sol dans les chambres, cuisines, meubles vasques, et faïences (modifiable sans préavis, prix variables suivant les prestations souhaitées) hors frais d’hypothèque.





