Au cœur du quartier ZAC DE LA GREE à BOURGBARRE sur un ilot arboré, MAISONS CREATION vous propose un projet de construction personnalisable.
Terrains à partir de 208 m², orientés SUD-OUEST.
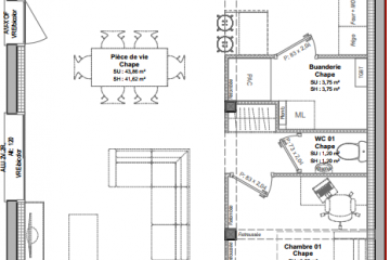
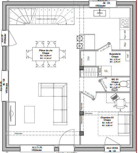
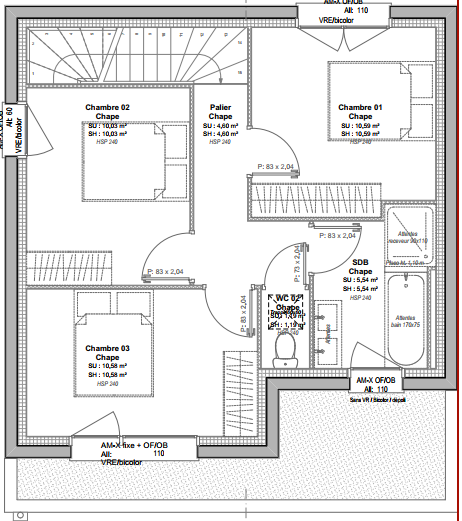
Maisons de 3 à 4 chambres, entre 80 m² et 95m² habitables, comprenant :
- Au rez-de-chaussée : entrée, pièce de vie d'environ 40 m² avec cuisine ouverte, une buanderie et WC séparés.
- À l’étage vous trouverez 3 chambres avec placards, une salle de bain et WC séparés.
En option carport ou garage selon terrain, viennent compléter ce bien.
Pour plus de renseignements contactez-nous au 02 99 05 36 46.
Informations complémentaires
| Chambre(s) : 3 | Salle(s) de bain : 1 | Surface habitable : 83 m² |
| Surface terrain : 208 m² | Surface annexe : 38 m² | Garage(s) : 0 |
| Prix : 230 000 € |
Géolocalisation du bien
*Terrain proposé et vendu par notre partenaire foncier selon disponibilité et autorisation de publicité, prix du terrain hors frais de notaire et d’hypothèque.
Prix maison : hors papiers peints, peintures, revêtements de sol dans les chambres, cuisines, meubles vasques, et faïences (modifiable sans préavis, prix variables suivant les prestations souhaitées) hors frais d’hypothèque.





