Bourg-des-Comptes est une commune du département d'Ille-et-Vilaine (35), située à 20 minutes au Sud de Rennes, proche de Guichen, sur l'axe de Rennes - Nantes.
Commune dynamique qui dispose d'écoles maternelles et primaires, médiathèque, équipements sportifs et des bus Illenoo.
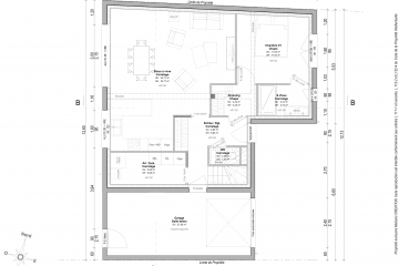
Sur un terrain de 404m², nous vous proposons une maison de 116m², comprenant :
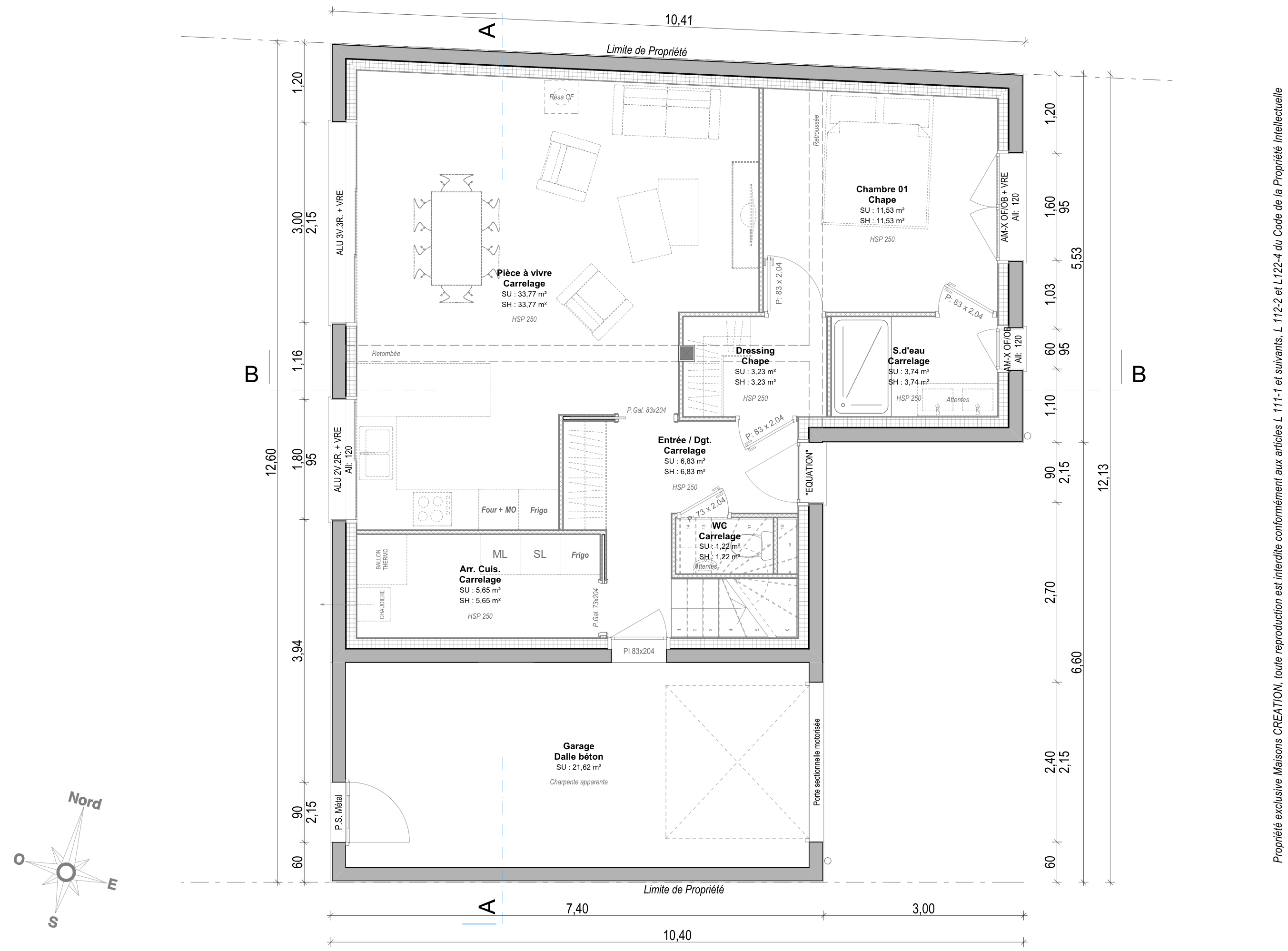
* au rez-de-chaussée : une entrée, une pièce de vie de 40m² avec cuisine ouverte, une arrière-cuisine, une chambre avec salle d'eau et WC séparés,
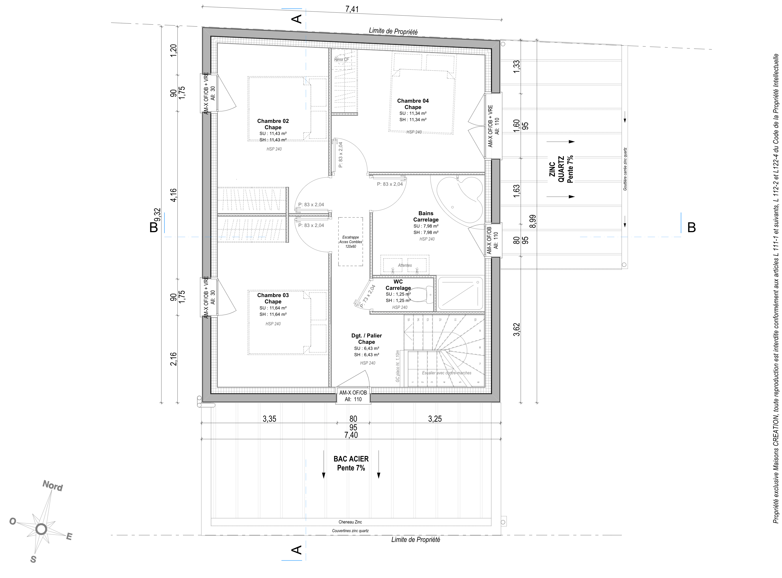
* à l'étage : 3 grandes chambres avec placards, une salle des bains et des WC séparés.
Garage inclus.
Projet entièrement personnalisable.
Informations complémentaires
| Chambre(s) : 4 | Salle(s) de bain : 2 | Surface habitable : 116 m² |
| Surface terrain : 404 m² | Surface annexe : 40 m² | Garage(s) : 1 |
| Prix : 294 000 € |
Géolocalisation du bien
*Terrain proposé et vendu par notre partenaire foncier selon disponibilité et autorisation de publicité, prix du terrain hors frais de notaire et d’hypothèque.
Prix maison : hors papiers peints, peintures, revêtements de sol dans les chambres, cuisines, meubles vasques, et faïences (modifiable sans préavis, prix variables suivant les prestations souhaitées) hors frais d’hypothèque.




