MAISONS CRÉATION vous propose un projet de construction entièrement personnalisable situé à Vignoc, au cœur du quartier résidentiel du Vallon des Fresches, dans un environnement calme et agréable.
Le projet est implanté sur un terrain de 382 m².
Maison 110 m² – 4 chambres – Garage
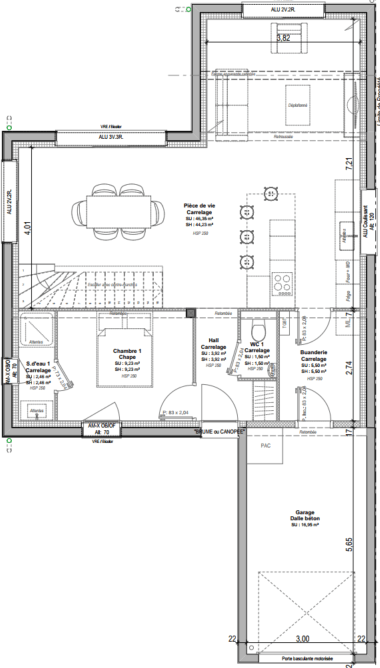
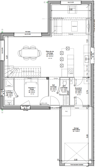
Cet exemple de maison à étage de 110 m² habitables se compose :
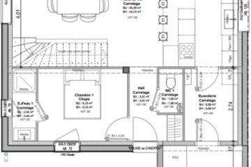
Au rez-de-chaussée :
- Une entrée
- Une vaste pièce de vie de 45 m² avec cuisine ouverte et salon, bénéficiant d’une hauteur sous plafond de 3 m avec poutres apparentes
- Une chambre avec salle d’eau
- Une buanderie / arrière-cuisine
- Des WC indépendants
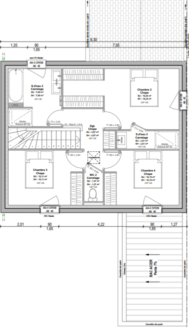
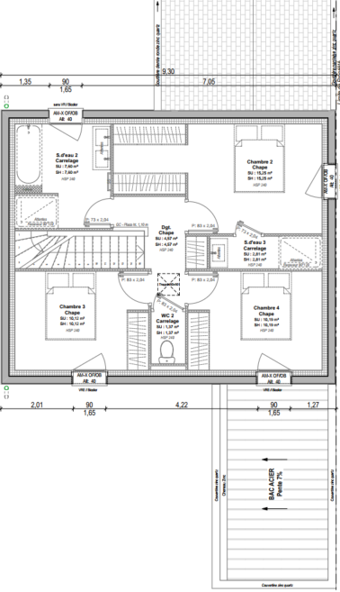
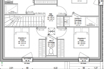
À l’étage :
- 3 chambres avec placards intégrés, dont une suite parentale avec dressing et salle d’eau privative
- Une salle de bains familiale
- Des WC séparés
Annexes
- Un garage
Pour de plus amples renseignements, contactez notre équipe commerciale MAISONS CRÉATION : 02 99 05 36 46
Informations complémentaires
| Chambre(s) : 4 | Salle(s) de bain : 3 | Surface habitable : 110 m² |
| Surface terrain : 382 m² | Surface annexe : 45 m² | Garage(s) : 1 |
| Prix : 304 600 € |
Géolocalisation du bien
*Terrain proposé et vendu par notre partenaire foncier selon disponibilité et autorisation de publicité, prix du terrain hors frais de notaire et d’hypothèque.
Prix maison : hors papiers peints, peintures, revêtements de sol dans les chambres, cuisines, meubles vasques, et faïences (modifiable sans préavis, prix variables suivant les prestations souhaitées) hors frais d’hypothèque.





