A découvrir à Sens-de-Bretagne !
Située à seulement 25 minutes de Rennes, la commune de Sens-de-Bretagne vous charmera grâce à son environnement. MAISONS CREATION vous propose un projet de construction à seulement 350 m du centre-ville et à proximité immédiate des commerces.
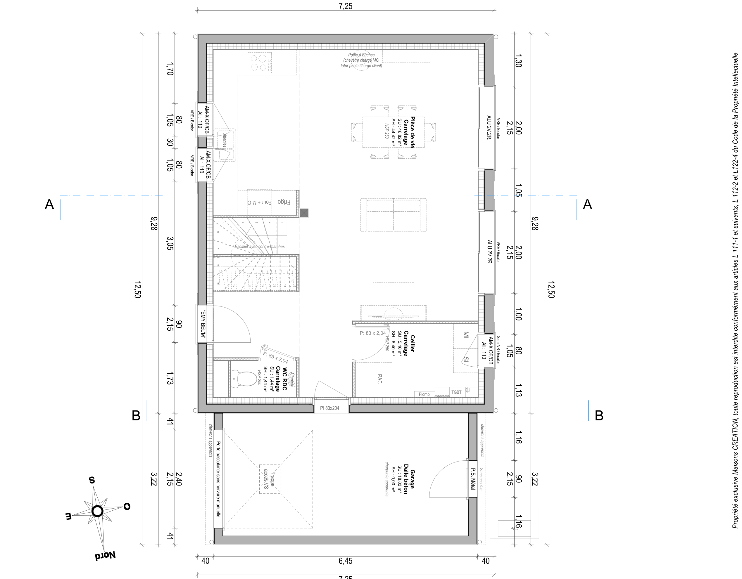
Cette maison, composée de 6 pièces répartie sur 113 m², bénéficie d'un terrain de 347 m² orienté sud ouest.
Cette maison comprend au rez-de-chaussée : une entrée, une cuisine ouverte sur séjour de 44 m², wc séparé et une buanderie.
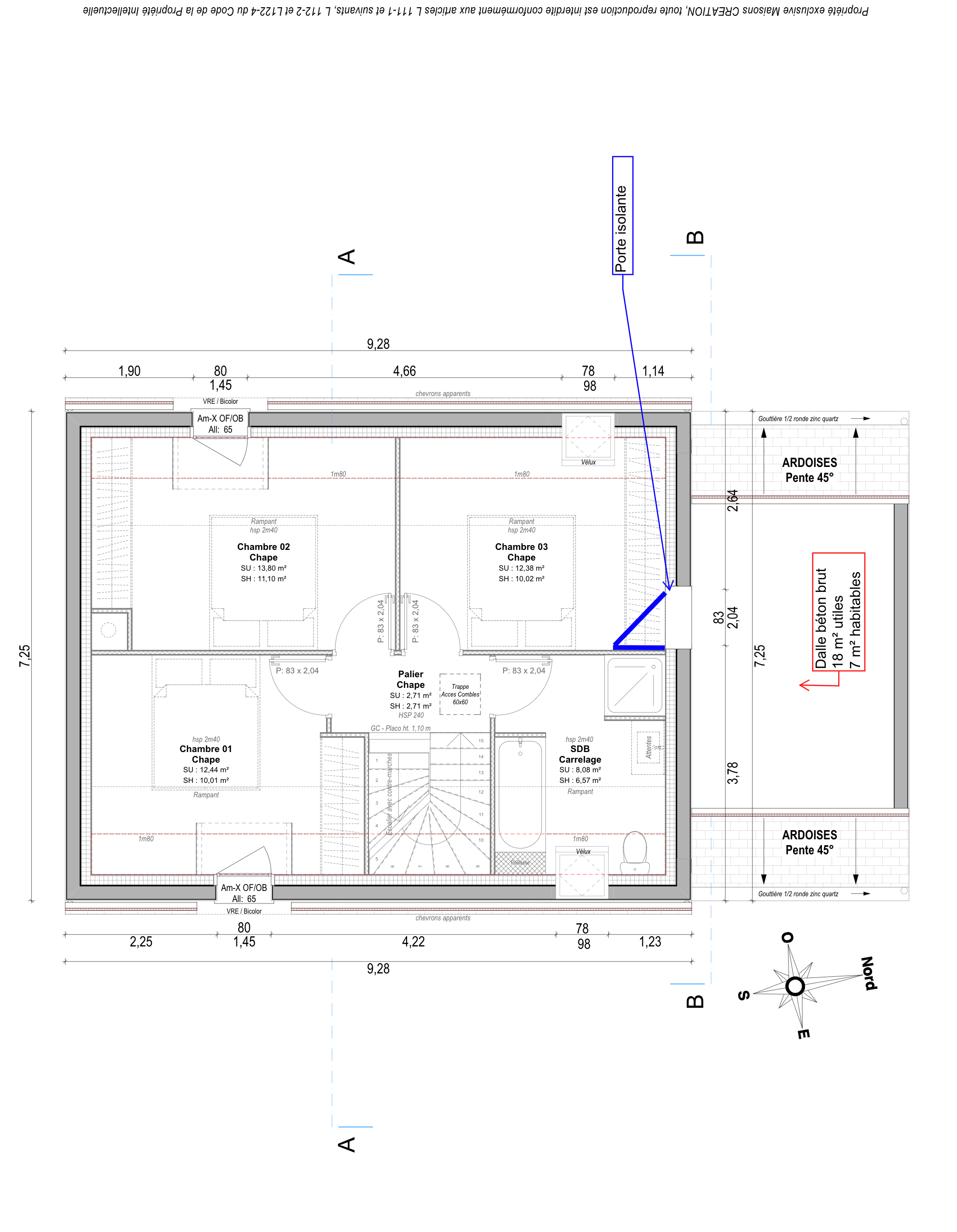
A l'étage : 3belles chambres avec placard, une salle de bain, wc séparé et une suite parentale avec salle d'eau.
Cette maison dispose également d'un garage attenant.
Votre projet Maison + Terrain à partir de 282000€ (Hors frais)
Informations complémentaires
| Chambre(s) : 4 | Salle(s) de bain : 2 | Surface habitable : 113 m² |
| Surface terrain : 347 m² | Surface annexe : 44 m² | Garage(s) : 0 |
| Prix : 282 000 € |
Géolocalisation du bien
*Terrain proposé et vendu par notre partenaire foncier selon disponibilité et autorisation de publicité, prix du terrain hors frais de notaire et d’hypothèque.
Prix maison : hors papiers peints, peintures, revêtements de sol dans les chambres, cuisines, meubles vasques, et faïences (modifiable sans préavis, prix variables suivant les prestations souhaitées) hors frais d’hypothèque.





