À proximité du bourg, cette maison bénéficie d'une belle luminosité et d'un jardin de 366m²
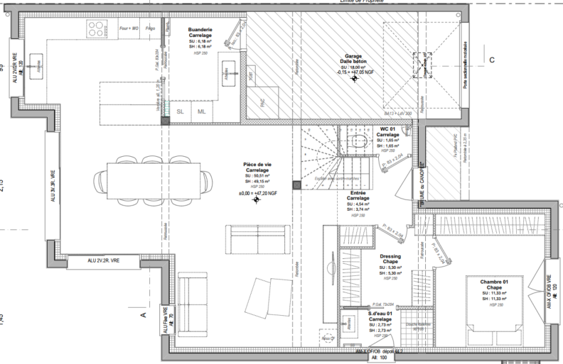
Cette maison comprend au rez-de-chaussée, une entrée, un Salon / Séjour de 45m² avec cuisine ouverte, une chambre avec salle d'eau privative et WC séparés,
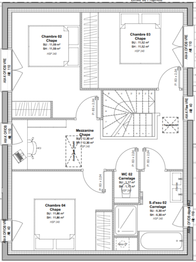
A l'étage, vous pourrez profiter de 3 chambre d'environ 11m² avec placard, une salle de bain et WC séparés.
Cette maison dispose également d'un garage attenant.
Votre projet Maison + Terrain à partir de 273000€ (Hors frais)
NON MANDATÉ POUR LA VENTE DES TERRAINS
Maisons CREATION Rennes n’est pas chargé de réaliser la vente des terrains à bâtir mentionnés dans ces annonces.
Maisons CREATION Rennes agit seulement en qualité de constructeur.
Sous réserve de disponibilité de notre partenaire foncier.
Informations complémentaires
| Chambre(s) : 4 | Salle(s) de bain : 2 | Surface habitable : 110 m² |
| Surface terrain : 366 m² | Surface annexe : 45 m² | Garage(s) : 1 |
| Prix : 273 000 € |
Géolocalisation du bien
*Terrain proposé et vendu par notre partenaire foncier selon disponibilité et autorisation de publicité, prix du terrain hors frais de notaire et d’hypothèque.
Prix maison : hors papiers peints, peintures, revêtements de sol dans les chambres, cuisines, meubles vasques, et faïences (modifiable sans préavis, prix variables suivant les prestations souhaitées) hors frais d’hypothèque.





