MAISONS CRÉATION vous propose un projet de construction RE2020 situé à Saint-Briac-sur-Mer, dans un environnement calme et verdoyant, à proximité immédiate des commodités et des plages.
Le projet est implanté sur un terrain de 348 m².
Cet exemple de maison développe 127 m² habitables et se compose :
Au rez-de-chaussée :
- Un vaste espace de vie lumineux avec triple exposition
- Un accès à une terrasse plein SUD, intimisée
- Une suite parentale avec dressing et salle d’eau privative
- Un garage de 21 m²
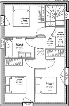
À l’étage :
- 3 chambres
- Une salle de bains
- Un WC indépendant
Stationnement :
- 2 places extérieures
Projet entièrement personnalisable.
Prix incluant terrain, garanties et assurances (hors frais annexes et finitions).
Pour plus de renseignements, contactez notre équipe commerciale MAISONS CRÉATION : 02 99 05 36 46
Informations complémentaires
| Chambre(s) : 4 | Salle(s) de bain : 2 | Surface habitable : 116 m² |
| Surface terrain : 348 m² | Surface annexe : 42 m² | Garage(s) : 1 |
| Prix : 320 180 € |
Géolocalisation du bien
*Terrain proposé et vendu par notre partenaire foncier selon disponibilité et autorisation de publicité, prix du terrain hors frais de notaire et d’hypothèque.
Prix maison : hors papiers peints, peintures, revêtements de sol dans les chambres, cuisines, meubles vasques, et faïences (modifiable sans préavis, prix variables suivant les prestations souhaitées) hors frais d’hypothèque.





