MAISONS CRÉATION vous propose un projet de construction RE2020 situé à 3 km du bourg de Saint-Méloir, à proximité de toutes les commodités et commerces, dans un environnement agréable.
Le projet est implanté sur un terrain de 280 m², offrant un cadre de vie fonctionnel et confortable.
Cet exemple de maison RE2020 développe 109 m² habitables et se compose :
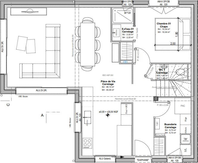
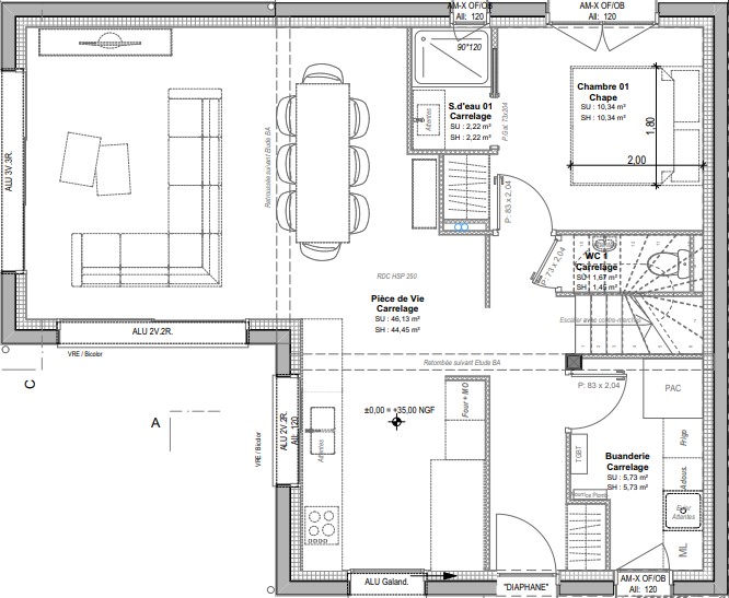
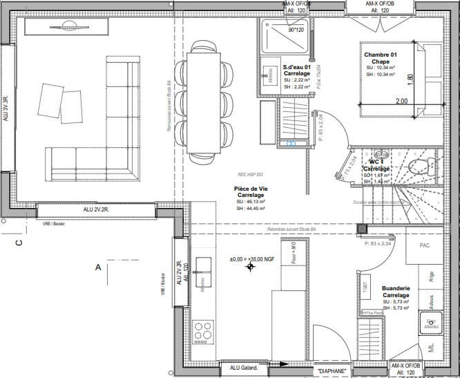
Au rez-de-chaussée :
- Un grand espace de vie
- Une suite parentale avec salle d’eau
- Des WC indépendants
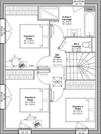
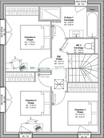
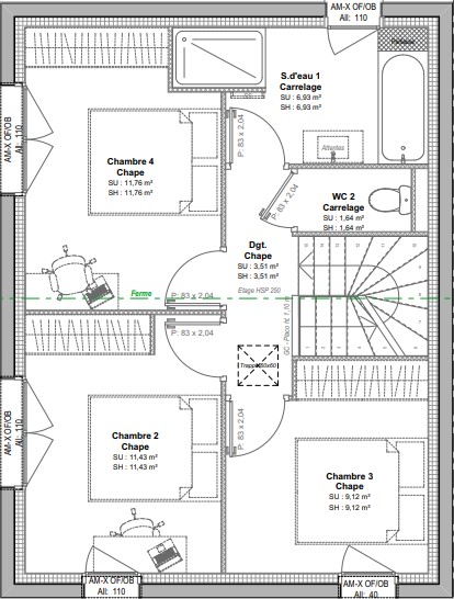
À l’étage :
- 3 grandes chambres
- Une salle de bains
- Des WC indépendants
Un projet personnalisable
Projet incluant le prix du terrain, les garanties et assurances (hors frais annexes liés au terrain et aux finitions de la maison).
Pour plus de renseignements, contactez notre équipe commerciale MAISONS CRÉATION : 02 99 05 36 46
Informations complémentaires
| Chambre(s) : 4 | Salle(s) de bain : 2 | Surface habitable : 108 m² |
| Surface terrain : 280 m² | Surface annexe : 46 m² | Garage(s) : 0 |
| Prix : 322 480 € |
Géolocalisation du bien
*Terrain proposé et vendu par notre partenaire foncier selon disponibilité et autorisation de publicité, prix du terrain hors frais de notaire et d’hypothèque.
Prix maison : hors papiers peints, peintures, revêtements de sol dans les chambres, cuisines, meubles vasques, et faïences (modifiable sans préavis, prix variables suivant les prestations souhaitées) hors frais d’hypothèque.






