MAISONS CRÉATION vous propose un projet de construction personnalisable situé à Saint-Judoce, commune proche d’Évran, à 20 minutes de Dinan et 30 minutes de Rennes.
Le projet est implanté sur un terrain bien exposé, offrant un jardin ensoleillé, avec une orientation SUD / OUEST.
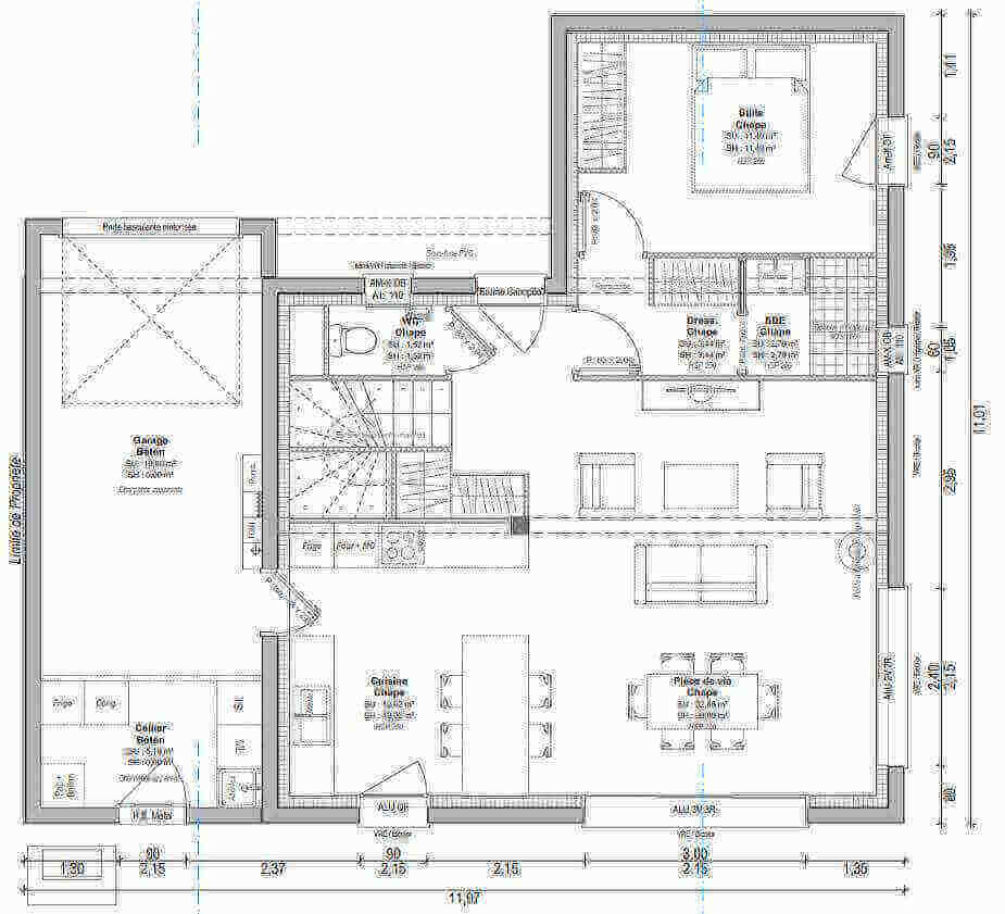
Maison contemporaine – 113 m² – 4 chambres – Garage – Bureau
Cet exemple de maison contemporaine de 113 m² habitables se compose :
Au rez-de-chaussée :
- Une entrée avec placard
- Un WC discret
- Un séjour / cuisine de 44 m², ouvert sur la terrasse
- Un salon équipé d’un conduit de fumée, permettant l’installation d’un poêle ou insert
- Une cuisine avec accès direct au garage de 18 m² et à un cellier de 5 m²
- Une suite parentale comprenant une chambre de 11 m², un dressing et une salle d’eau
À l’étage :
- 3 chambres de 11 m² avec placards
- Une salle d’eau / bain
- Un espace bureau
- Un WC séparé
Ce projet est entièrement personnalisable, tant dans la conception intérieure et architecturale que dans le choix des prestations, afin de correspondre pleinement à vos attentes.
Pour plus de renseignements, contactez notre équipe commerciale MAISONS CRÉATION : 02 99 05 36 46
Informations complémentaires
| Chambre(s) : 4 | Salle(s) de bain : 1 | Surface habitable : 113 m² |
| Surface terrain : 632 m² | Surface annexe : 46 m² | Garage(s) : 1 |
| Prix : 271 000 € |
Géolocalisation du bien
*Terrain proposé et vendu par notre partenaire foncier selon disponibilité et autorisation de publicité, prix du terrain hors frais de notaire et d’hypothèque.
Prix maison : hors papiers peints, peintures, revêtements de sol dans les chambres, cuisines, meubles vasques, et faïences (modifiable sans préavis, prix variables suivant les prestations souhaitées) hors frais d’hypothèque.





