Situation idéal entre Rennes et St Malo, sur la commune de SAINT DOMINEUC, la situation vous offre une proximité immédiate à la 4 voies et à tous les services nécessaires pour une vie agréable, tels qu'une boucherie/traiteur, une supérette, des écoles maternelles et primaires, pharmacie, médecin, orthodontiste, kiné, dentistes...et des associations sportives.
Nous proposons cette maison sur un terrain exposé Sud d'une superficie de 554 m², pouvant être utilisée comme résidence principale ou secondaire. La maison comprend au rez-de-chaussée une entrée, une cuisine ouverte, une buanderie, des toilettes séparées, une salle d'eau et une chambre parentale de 12m² avec une salle d'eau et un placard.
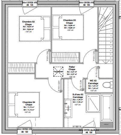
A l'étage, vous trouverez des toilettes séparées, une salle de bains, une deuxième chambre de 12m² avec un placard, et deux autres chambres avec un placard de 11 m2. La maison dispose également d'un garage attenant.
Chez Maisons Creation, tous nos projets sont entièrement personnalisables, de la conception intérieure et architecturale aux niveaux de prestations que vous souhaitez.
*Terrain proposé et vendu par notre partenaire foncier selon disponibilité et autorisation de publicité, prix du terrain hors frais de notaire et d’hypothèque.
Prix maison : hors papiers peints, peintures, revêtements de sol dans les chambres, cuisines, meubles vasques, et faïences (modifiable sans préavis, prix variables suivant les prestations souhaitées) hors frais d’hypothèque.
Informations complémentaires
| Chambre(s) : 4 | Salle(s) de bain : 2 | Surface habitable : 120 m² |
| Surface terrain : 554 m² | Surface annexe : 45 m² | Garage(s) : 1 |
| Prix : 324 700 € |
Géolocalisation du bien
*Terrain proposé et vendu par notre partenaire foncier selon disponibilité et autorisation de publicité, prix du terrain hors frais de notaire et d’hypothèque.
Prix maison : hors papiers peints, peintures, revêtements de sol dans les chambres, cuisines, meubles vasques, et faïences (modifiable sans préavis, prix variables suivant les prestations souhaitées) hors frais d’hypothèque.



