DERNIERE OPPORTUNITE
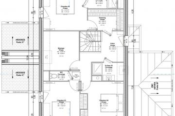
A 10 mn de Saint-Malo, nous vous proposons sur un terrain de 480 m² explosition plein Sud, dans un tout nouveau lotissement en plein bourg, TERRAIN+MAISON RE2020 d'une surface de 145 m² disposant de 4chambres dont une au RDC avec salle d'eau, une salle de bains et 3 chambres à l'étage, 2 WC indépendants, grand espace de vie avec vide sur séjour.
Projet à personnaliser dans son intégralité, garanties et assurances incluses, prix terrain viabilisé inclus.
Informations complémentaires
| Chambre(s) : 4 | Salle(s) de bain : 2 | Surface habitable : 145 m² |
| Surface terrain : 484 m² | Surface annexe : 50 m² | Garage(s) : 1 |
| Prix : 575 000 € |
Géolocalisation du bien
*Terrain proposé et vendu par notre partenaire foncier selon disponibilité et autorisation de publicité, prix du terrain hors frais de notaire et d’hypothèque.
Prix maison : hors papiers peints, peintures, revêtements de sol dans les chambres, cuisines, meubles vasques, et faïences (modifiable sans préavis, prix variables suivant les prestations souhaitées) hors frais d’hypothèque.




