Situation idéale à Saint-Aubin-d'Aubigné !
À proximité de du bourg et des accès , cette maison contemporaine à étage bénéficie d'une belle luminosité et d'un jardin de 295m².
Dans le bourg, à proximité des écoles et des commerces, elle est composée de 5 pièces répartie sur 117m² habitable.
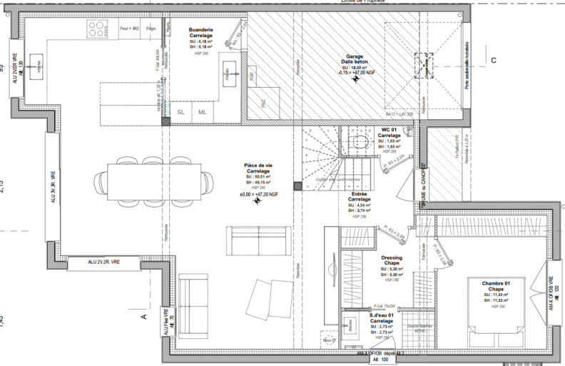
Cette maison comprend au rez-de-chaussée, une entrée avec placard, un salon-séjour-cuisine ouvert de 49m², une suite parentale avec dressing et salle d'eau, WC séparés,
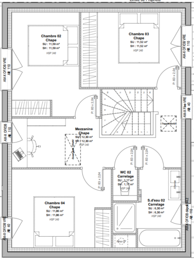
A l'étage, vous pourrez profiter de 3 chambres de 12m² avec placard, une salle de bains et de WC séparés.
Cette maison dispose également d'un garage attenant.
Votre projet Maison + Terrain à partir de 305000€ (Hors frais)
NON MANDATÉ POUR LA VENTE DES TERRAINS
Maisons CREATION Rennes n’est pas chargé de réaliser la vente des terrains à bâtir mentionnés dans ces annonces.
Maisons CREATION Rennes agit seulement en qualité de constructeur.
Sous réserve de disponibilité de notre partenaire foncier.
Informations complémentaires
| Chambre(s) : 4 | Salle(s) de bain : 2 | Surface habitable : 117 m² |
| Surface terrain : 295 m² | Surface annexe : 49 m² | Garage(s) : 1 |
| Prix : 305 000 € |
Géolocalisation du bien
*Terrain proposé et vendu par notre partenaire foncier selon disponibilité et autorisation de publicité, prix du terrain hors frais de notaire et d’hypothèque.
Prix maison : hors papiers peints, peintures, revêtements de sol dans les chambres, cuisines, meubles vasques, et faïences (modifiable sans préavis, prix variables suivant les prestations souhaitées) hors frais d’hypothèque.





