Découvrez ce nouveau projet de maisons individuelles à Rennes, alliant performance énergétique et accessibilité.
Ces maisons, conçues selon un niveau de performance passif, offrent un confort optimal tout en réduisant durablement les consommations d’énergie.
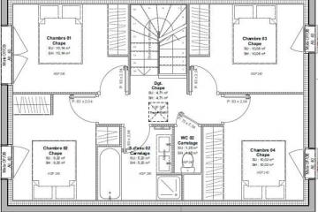
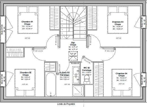
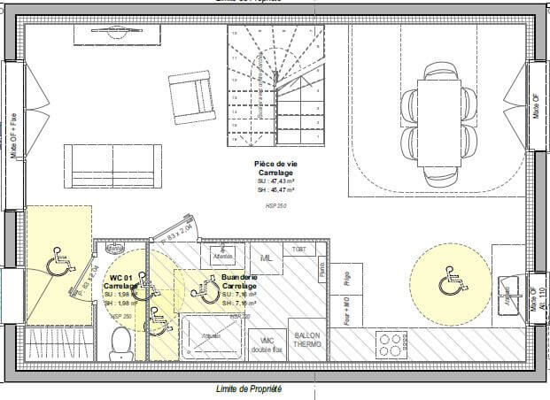
Implantées sur des terrains de 170 à 300 m², ces maisons développent 105 m² habitables avec des espaces généreux et fonctionnels, complétés par un carport de 15 m².
Les atouts du projet
- Niveau de performance passif
- Carport de 15 m² inclus
- Dispositif BRS, sous conditions de ressources (revenus N-2)
Prix : 288 000 € (terrain + maison, hors cuisine, placards et frais de notaire)
*Le bail réel solidaire est un dispositif d’accession à la propriété original qui permet de séparer le terrain des murs.
C’est à dire que le ménage qui souhaite devenir propriétaire achète uniquement le logement. C’est l’organisme foncier solidaire Rennes Métropole (FSRM) qui est propriétaire du terrain.
Informations complémentaires
| Chambre(s) : 4 | Salle(s) de bain : 1 | Surface habitable : 105 m² |
| Surface terrain : 301 m² | Surface annexe : 45 m² | Garage(s) : 0 |
| Prix : 288 000 € |
Géolocalisation du bien
*Terrain proposé et vendu par notre partenaire foncier selon disponibilité et autorisation de publicité, prix du terrain hors frais de notaire et d’hypothèque.
Prix maison : hors papiers peints, peintures, revêtements de sol dans les chambres, cuisines, meubles vasques, et faïences (modifiable sans préavis, prix variables suivant les prestations souhaitées) hors frais d’hypothèque.





