Idéalement situé à Rennes !
Dans le quartier rue de Bray, cette maison à étage bénéficie d'une belle luminosité sur un terrain de 195m².
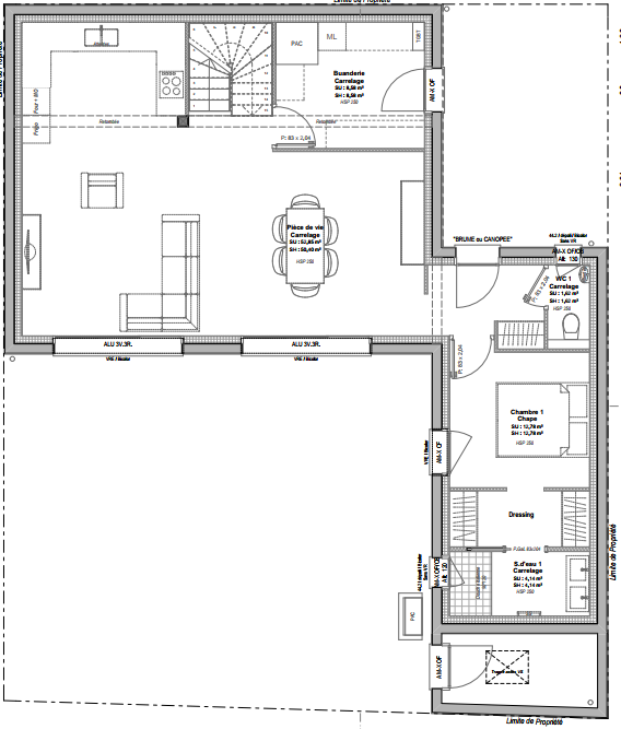
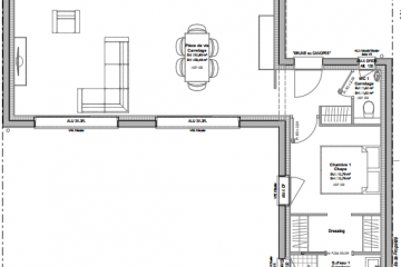
Cette maison de 130m² comprend au rez-de-chaussée : une cuisine ouverte, une buanderie, des WC séparés, un salon / séjour de 50m², une chambre parentale de 12m² avec dressing et une salle d'eau,
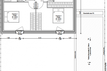
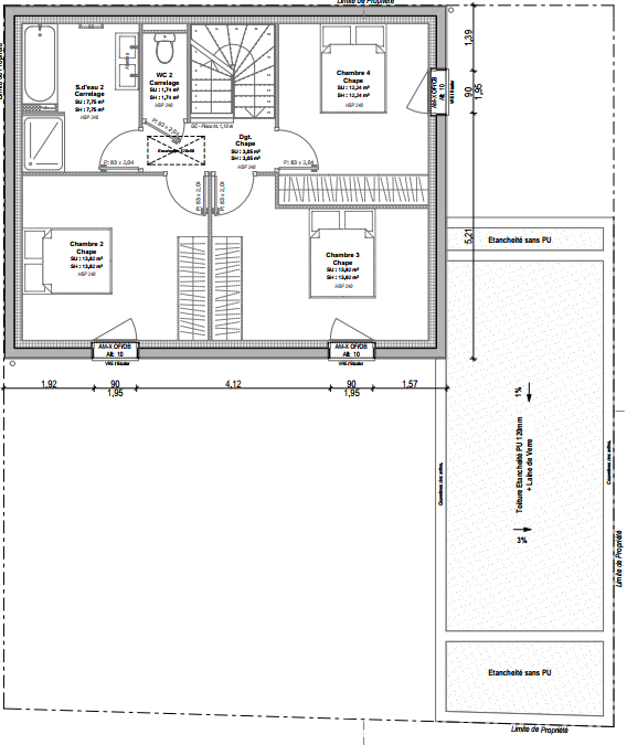
A l'étage, vous pourrez profiter de WC séparés, d'une salle de bains et de 3 chambres d'environ 13m².
Possibilité d'aménager les combles.
Votre projet Maison + Terrain à partir de 497000€ (Hors frais)
NON MANDATÉ POUR LA VENTE DES TERRAINS
Maisons CREATION Rennes n’est pas chargé de réaliser la vente des terrains à bâtir mentionnés dans ces annonces.
Maisons CREATION Rennes agit seulement en qualité de constructeur.
Sous réserve de disponibilité de notre partenaire foncier.
Informations complémentaires
Chambre(s) : 4 | Salle(s) de bain : 2 | Surface habitable : 130 m² |
Surface terrain : 195 m² | Surface annexe : 50 m² | Garage(s) : 0 |
Prix : 497 000 € |
Géolocalisation du bien
*Terrain proposé et vendu par notre partenaire foncier selon disponibilité et autorisation de publicité, prix du terrain hors frais de notaire et d’hypothèque.
Prix maison : hors papiers peints, peintures, revêtements de sol dans les chambres, cuisines, meubles vasques, et faïences (modifiable sans préavis, prix variables suivant les prestations souhaitées) hors frais d’hypothèque.