MAISONS CREATION vous propose de construire à QUEBRIAC votre nouveau chez vous sur un terrain de 436 m2 dans un petit hameau à quelques mètres seulement du complexe sportif et du centre bourg.
Idéalement situé à proximité des commerces (Supérette, Boulangerie, Restaurant, Bar Etc.) et de son école. Vous serez à 5 minutes de l'ensemgble des services de la ville de TINTENIAC (écoles primaires / collèges / maison médicale / supermarché Etc.) et de son accès à la 4 voies Rennes-St Malo.
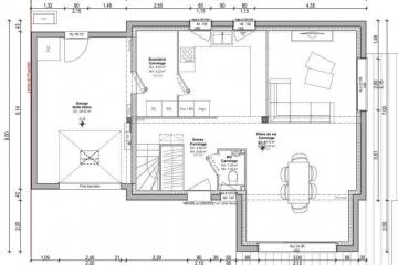
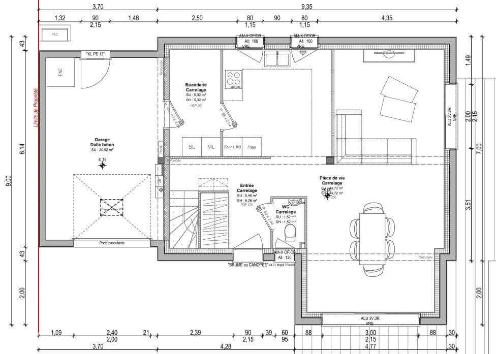
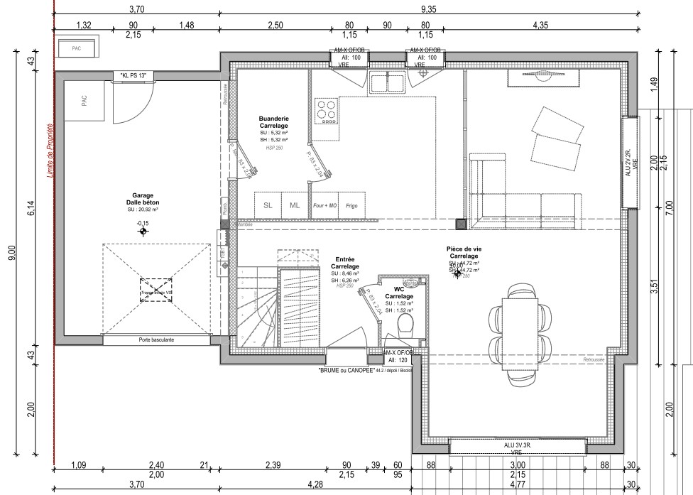
Cette maison fonctionnelle de 108 m2 dispose d'une pièce de vie spacieuse et lumineuse avec une cuisine ouverte et une arrière-cuisine communicante avec le garage.
Le rez-de-chaussée comprend également un hall d'entrée avec un grand placard et un WC.
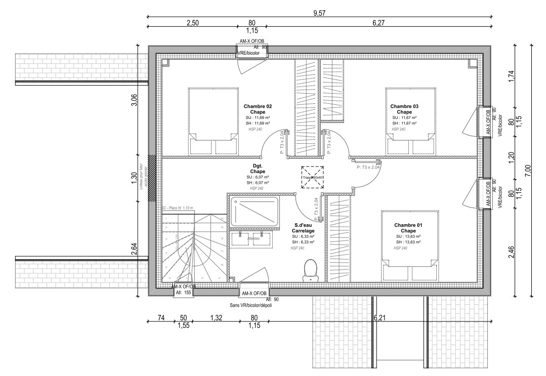
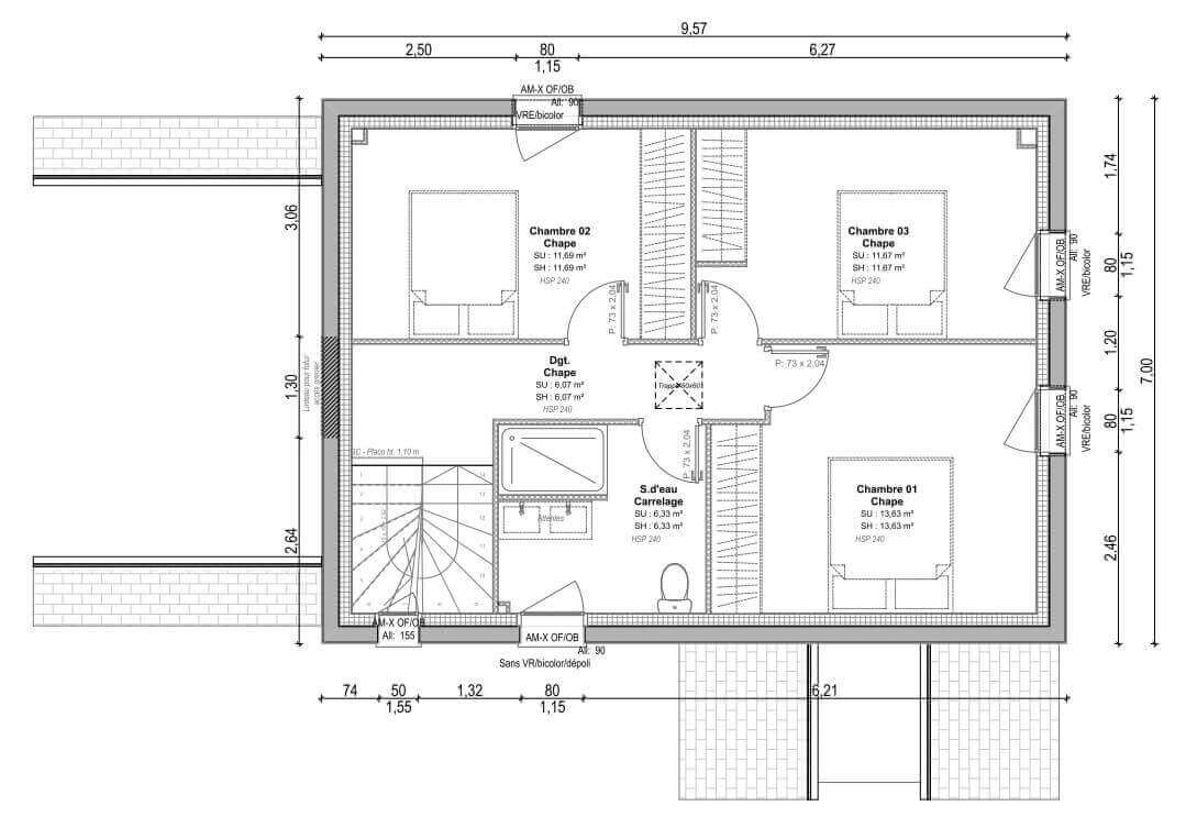
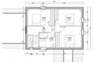
A l'étage, vous trouverez trois chambres spacieuses avec placard et une salle d'eau avec WC.
Pour votre confort de vie, cette maison dispose d'un plancher chauffant et de volets roulants électriques alimentés par une pompe à chaleur, conformément aux normes de la RE2020.
Chez Maisons Creation, nous personnalisons entièrement tous nos projets pour répondre à vos attentes en termes de conception et de prestations.
N'hésitez pas me contacter pour plus d'information
*Terrain proposé et vendu par notre partenaire foncier selon disponibilité et autorisation de publicité, prix du terrain hors frais de notaire et d’hypothèque.
Prix maison : hors papiers peints, peintures, revêtements de sol dans les chambres, cuisines, meubles vasques, et faïences (modifiable sans préavis, prix variables suivant les prestations souhaitées) hors frais d’hypothèque.
Informations complémentaires
Chambre(s) : 3 | Salle(s) de bain : 1 | Surface habitable : 108 m² |
Surface terrain : 436 m² | Surface annexe : 45 m² | Garage(s) : 1 |
Prix : 289 140 € |
Géolocalisation du bien
*Terrain proposé et vendu par notre partenaire foncier selon disponibilité et autorisation de publicité, prix du terrain hors frais de notaire et d’hypothèque.
Prix maison : hors papiers peints, peintures, revêtements de sol dans les chambres, cuisines, meubles vasques, et faïences (modifiable sans préavis, prix variables suivant les prestations souhaitées) hors frais d’hypothèque.