Dans petit hameau proche du bourg de PLESLIN TRIGAVOU et de ses commerces et services de proximité.
Nous vous offrons la possibilité de personnaliser un projet de maison ici d'une superficie de 100 m² répartie sur deux niveaux.
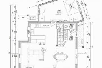
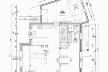
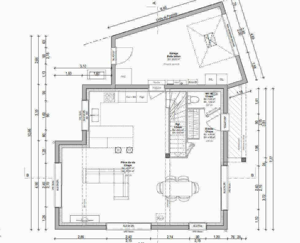
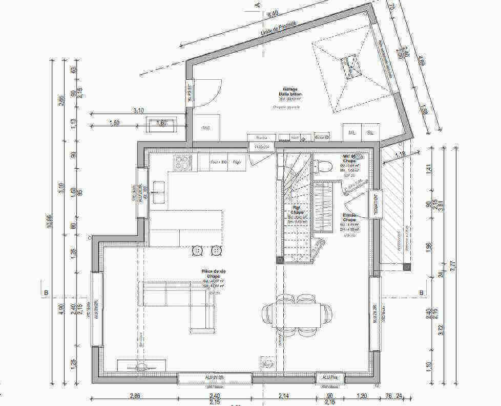
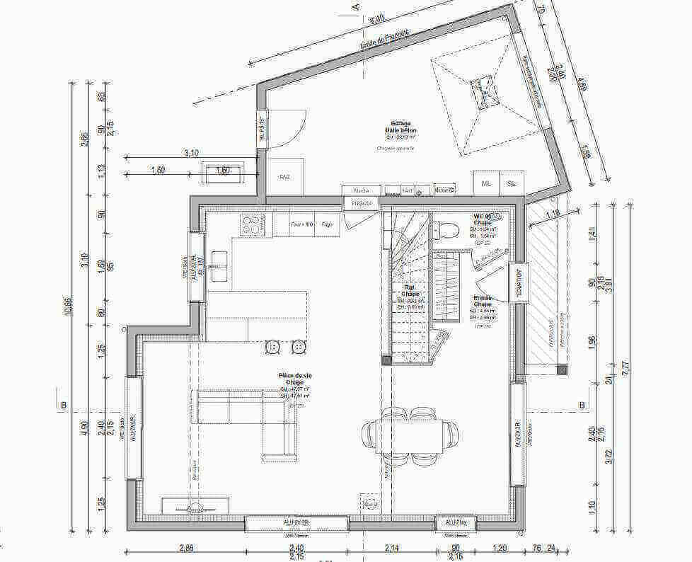
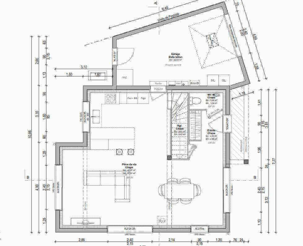
Le rez-de-chaussée se compose d'une entrée avec placard et un WC discret, d'un séjour/cuisine de 47 m² ouvert sur l'extérieur grâce aux baies vitrées qui laissent entrer la lumière. La cuisine donne accès à un garage de 22 m².
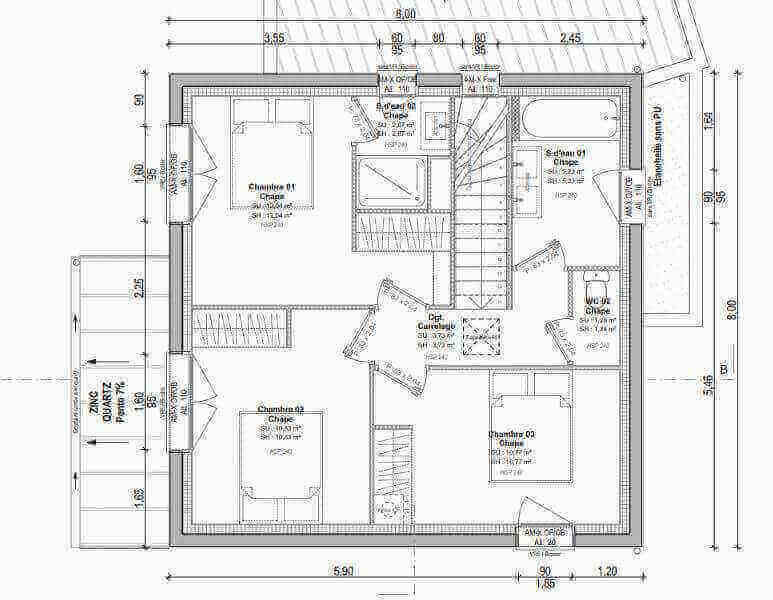
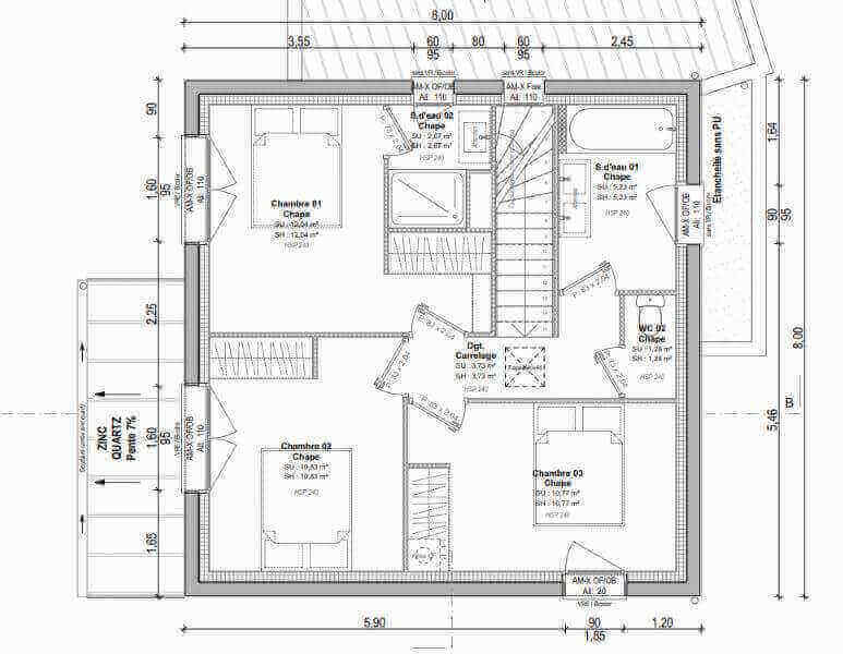
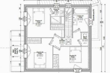
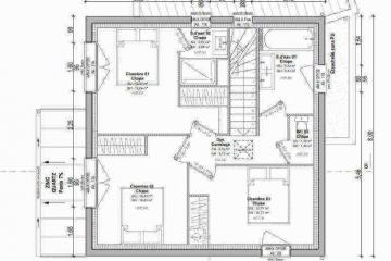
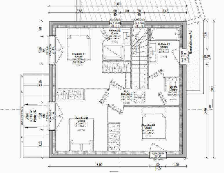
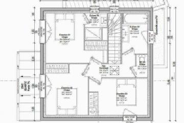
À l'étage, le palier dessert deux chambres de 11 m² avec placard, une suite parentale avec dressing et salle d'eau, une salle de bain et un WC.
N'hésitez pas à nous contacter pour plus de renseignements.
Chez Maisons Creation, nous personnalisons entièrement tous nos projets pour répondre à vos attentes en termes de conception, d'agencement et de choix de matériaux et/ou prestations.
*Terrain proposé et vendu par notre partenaire foncier selon disponibilité et autorisation de publicité, prix du terrain hors frais de notaire et d’hypothèque.
Prix maison : hors papiers peints, peintures, revêtements de sol dans les chambres, cuisines, meubles vasques, et faïences (modifiable sans préavis, prix variables suivant les prestations souhaitées) hors frais d’hypothèque.
Informations complémentaires
| Chambre(s) : 4 | Salle(s) de bain : 1 | Surface habitable : 100 m² | 
| Surface terrain : 423 m² | Surface annexe : 46 m² | Garage(s) : 1 | 
| Prix : 291 000 € | 
Géolocalisation du bien
            *Terrain proposé et vendu par notre partenaire foncier selon disponibilité et autorisation de publicité, prix du terrain hors frais de notaire et d’hypothèque.
Prix maison : hors papiers peints, peintures, revêtements de sol dans les chambres, cuisines, meubles vasques, et faïences (modifiable sans préavis, prix variables suivant les prestations souhaitées) hors frais d’hypothèque.        
 
            
 
                                        



