MAISONS CRÉATION vous propose un projet de construction personnalisable sur un terrain viabilisé, situé ZAC de l’Ise à Noyal-Châtillon-sur-Seiche, dans un environnement calme aux portes de Rennes.
Les terrains, de 300 m² à 445 m², bénéficient d’un cadre privilégié avec des jardins donnant sur un espace naturel non constructible, offrant une vue dégagée et sans vis-à-vis.
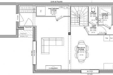
Au rez-de-chaussée :
- Une pièce de vie lumineuse de 48 m²
- Une suite parentale avec salle d’eau
- Un garage
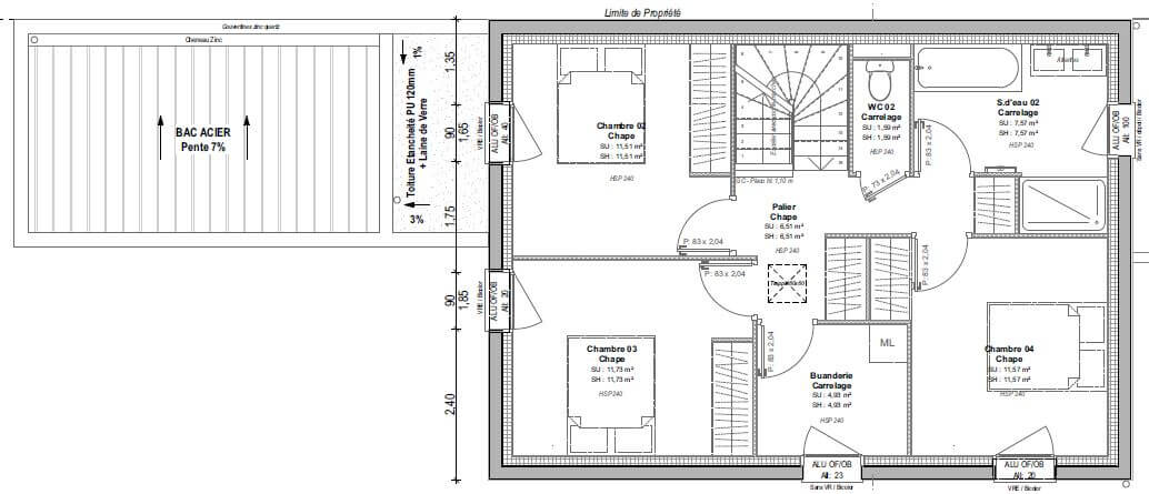
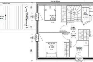
À l’étage :
- 3 chambres
- Une salle de bains
* Prix terrain + maison, hors frais annexes et hors aménagements extérieurs (jardin).
Informations complémentaires
| Chambre(s) : 4 | Salle(s) de bain : 2 | Surface habitable : 123 m² |
| Surface terrain : 445 m² | Surface annexe : 48 m² | Garage(s) : 1 |
| Prix : 382 500 € |
Géolocalisation du bien
*Terrain proposé et vendu par notre partenaire foncier selon disponibilité et autorisation de publicité, prix du terrain hors frais de notaire et d’hypothèque.
Prix maison : hors papiers peints, peintures, revêtements de sol dans les chambres, cuisines, meubles vasques, et faïences (modifiable sans préavis, prix variables suivant les prestations souhaitées) hors frais d’hypothèque.






