Coup de coeur pour cet environnement rare à Montfort-sur-Meu !
Située à proximité de toutes les infrastructures et au cœur d'un parc, cette maison bénéficie d'une belle luminosité et d'un jardin arboré et 348m² orienté Sud-Ouest.
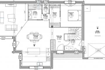
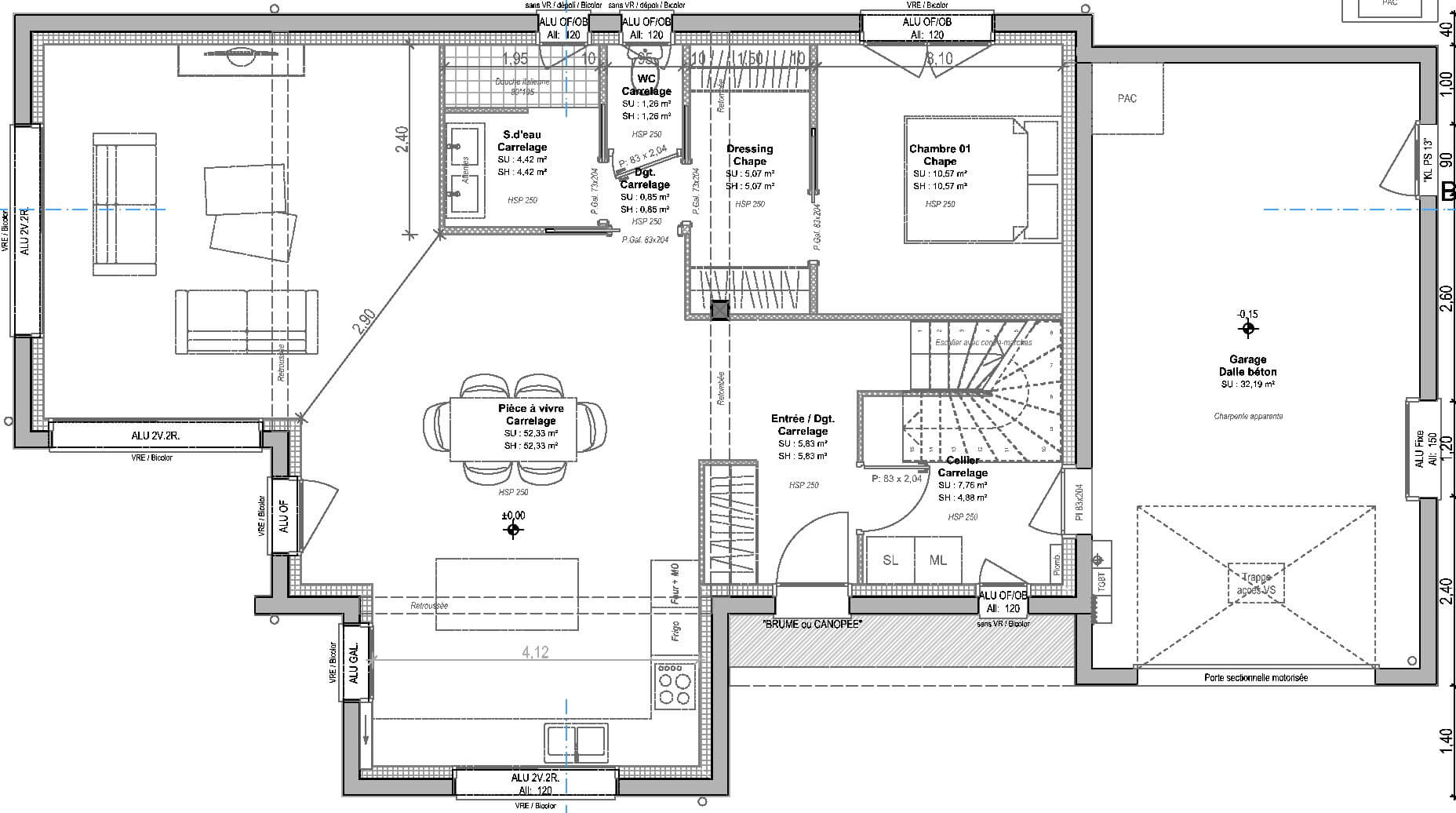
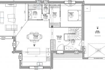
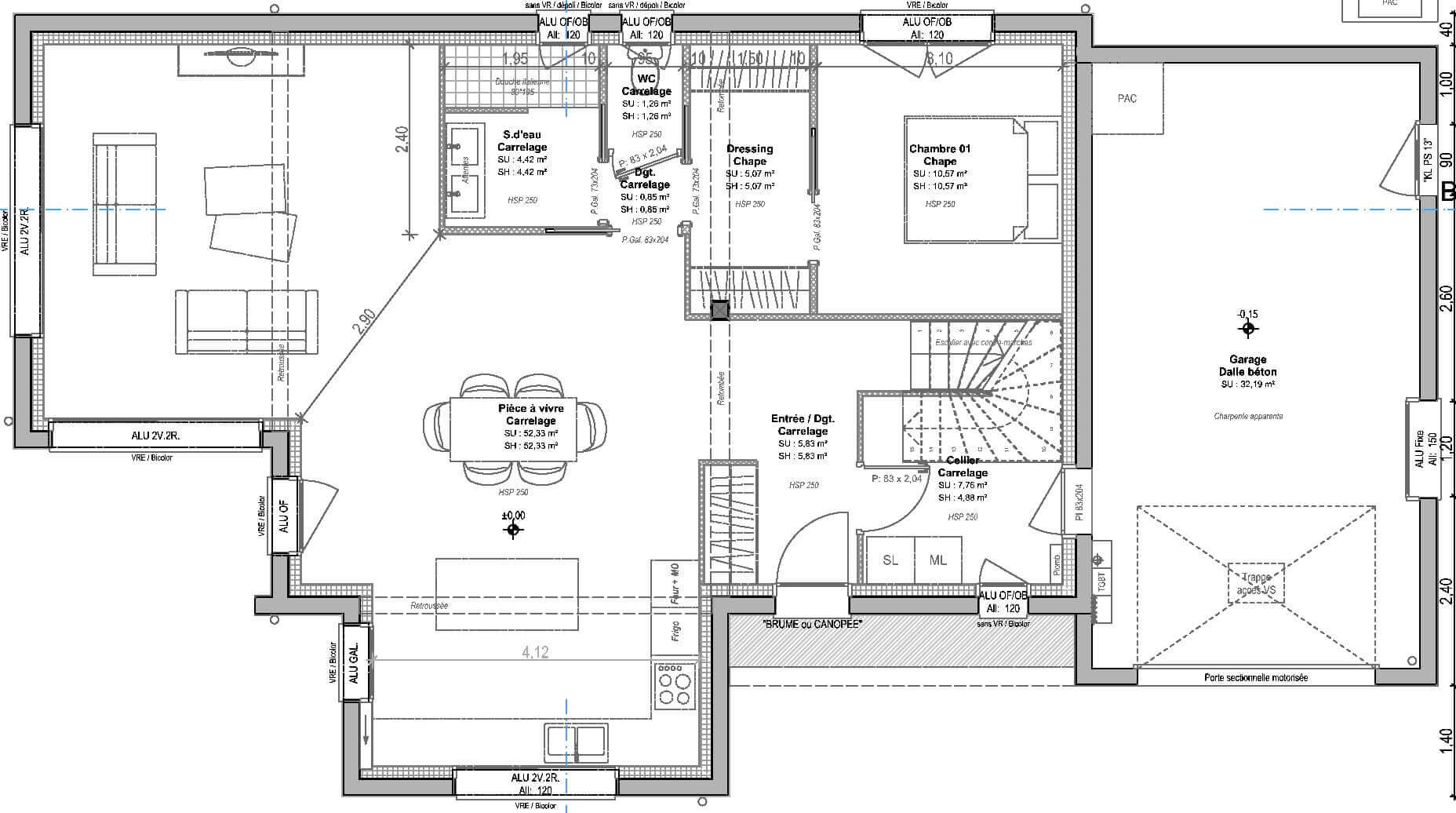
Dans le bourg proche des écoles, de la crèche et du stade elle est composée de 6 pièces répartie sur 125m².
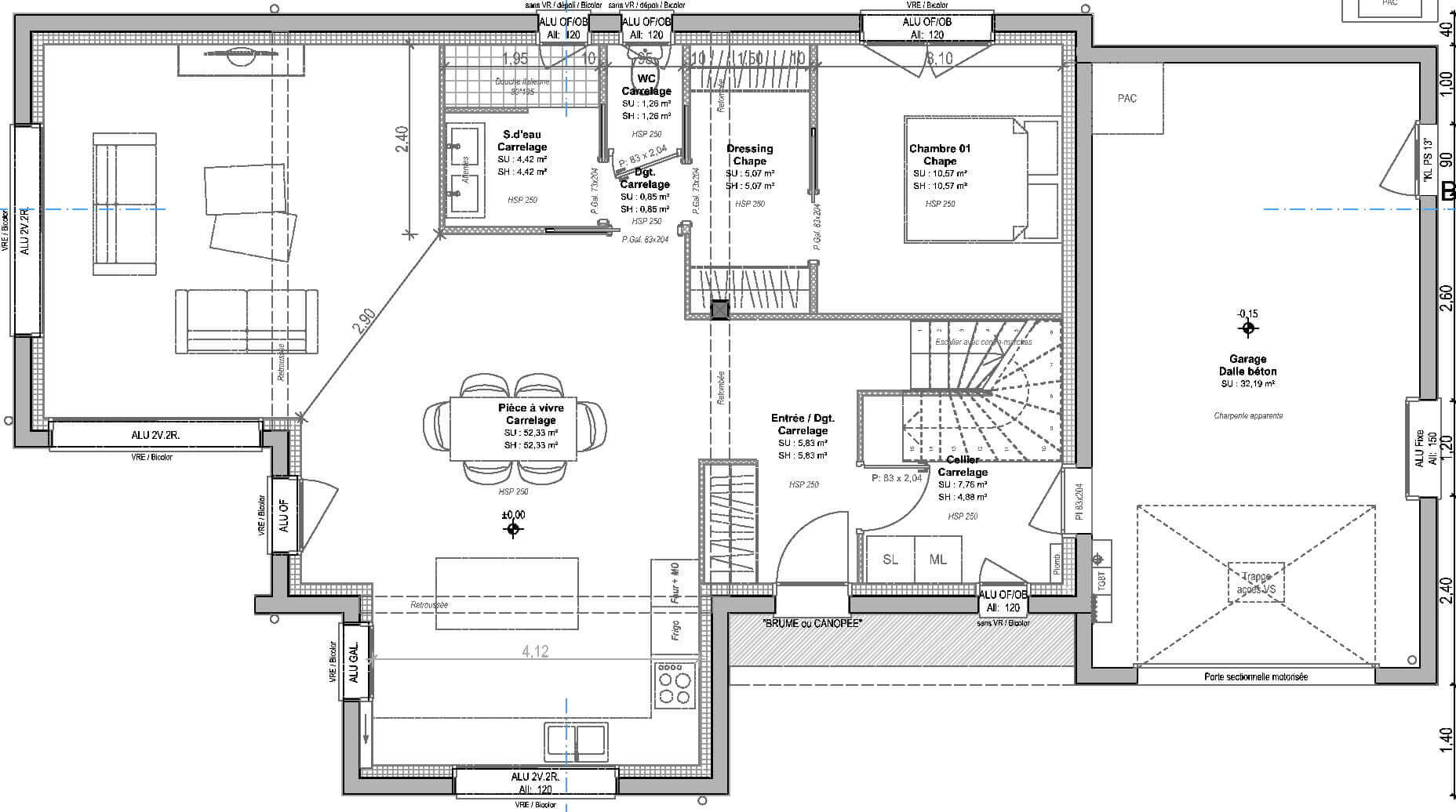
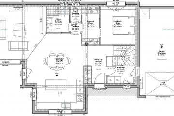
Cette maison comprend au rez-de-chaussée, une entrée, un Salon / Séjour de 52m², une cuisine ouverte, une suite parentale avec salle d'eau et dressing, une buanderie, WC séparés,
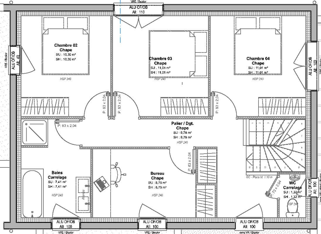
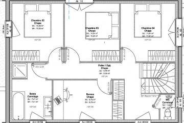
A l'étage, vous pourrez profiter, de 3 chambres, un bureau, une salle de bains, un dégagement aéré et de WC séparés.
Cette maison dispose également d'un garage attenant.
Votre projet Maison + Terrain à partir de 390500€ (Hors frais)
Informations complémentaires
| Chambre(s) : 4 | Salle(s) de bain : 2 | Surface habitable : 125 m² |
| Surface terrain : 348 m² | Surface annexe : 52 m² | Garage(s) : 1 |
| Prix : 390 500 € |
Géolocalisation du bien
*Terrain proposé et vendu par notre partenaire foncier selon disponibilité et autorisation de publicité, prix du terrain hors frais de notaire et d’hypothèque.
Prix maison : hors papiers peints, peintures, revêtements de sol dans les chambres, cuisines, meubles vasques, et faïences (modifiable sans préavis, prix variables suivant les prestations souhaitées) hors frais d’hypothèque.





