A découvrir à Montauban-de-Bretagne !
Située à proximité de l'axe Rennes - Saint Brieuc, cette maison traditionnelle en ardoise bénéficie d'une belle luminosité grace à ses larges baies donnant sur son jardin de 340m².
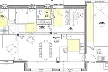
Cette maison comprend au rez-de-chaussée, une entrée, une cuisine ouverte, des WC séparés, un Salon / Séjour de 43m², une chambre parentale, avec une salle d'eau et placard,
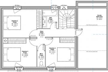
A l'étage, vous pourrez profiter, de WC séparés, d'une salle de bains, 3 chambres avec placard. Etage droit, pas de plafonds rampants. Idéale pour l'amménagement.
Cette maison dispose également d'un garage attenant.
Votre projet Maison + Terrain à partir de 334450€ (Hors frais)
Informations complémentaires
| Chambre(s) : 4 | Salle(s) de bain : 2 | Surface habitable : 123 m² |
| Surface terrain : 340 m² | Surface annexe : 43 m² | Garage(s) : 1 |
| Prix : 334 450 € |
Géolocalisation du bien
*Terrain proposé et vendu par notre partenaire foncier selon disponibilité et autorisation de publicité, prix du terrain hors frais de notaire et d’hypothèque.
Prix maison : hors papiers peints, peintures, revêtements de sol dans les chambres, cuisines, meubles vasques, et faïences (modifiable sans préavis, prix variables suivant les prestations souhaitées) hors frais d’hypothèque.




