MAISONS CRÉATION vous propose un projet de construction RE2020, situé dans un environnement paisible et verdoyant, à proximité immédiate de la commune de Saint-Guinoux et des grands axes.
Le projet est implanté sur un terrain de 471 m², offrant un cadre idéal pour une vie familiale alliant calme et accessibilité.
Cet exemple de maison RE2020 développe 92 m² habitables et se compose :
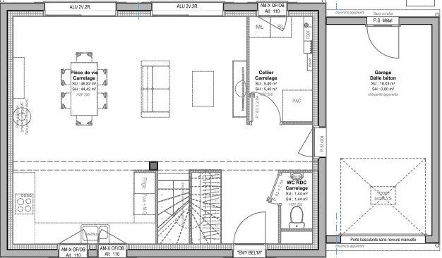
Au rez-de-chaussée :
- Un très bel espace de vie lumineux
- Une suite parentale avec dressing
- Un garage attenant
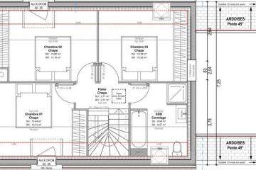
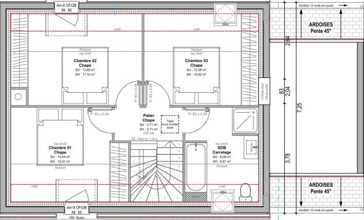
À l’étage :
- 3 belles chambres
- Une salle de bains
Les + du projet
- Maison conforme à la RE2020
- Projet entièrement personnalisable
- Environnement calme, proche des axes de circulation
- Terrain, garanties et assurances inclus
Pour plus de renseignements, contactez notre équipe commerciale MAISONS CRÉATION : 02 99 05 36 46
Informations complémentaires
| Chambre(s) : 3 | Salle(s) de bain : 1 | Surface habitable : 92 m² |
| Surface terrain : 435 m² | Surface annexe : 45 m² | Garage(s) : 1 |
| Prix : 256 500 € |
Géolocalisation du bien
*Terrain proposé et vendu par notre partenaire foncier selon disponibilité et autorisation de publicité, prix du terrain hors frais de notaire et d’hypothèque.
Prix maison : hors papiers peints, peintures, revêtements de sol dans les chambres, cuisines, meubles vasques, et faïences (modifiable sans préavis, prix variables suivant les prestations souhaitées) hors frais d’hypothèque.





