MAISONS CRÉATION vous propose un projet de construction sur mesure situé à L’Hermitage, au cœur du quartier ZAC du Lindon, accessible grâce au dispositif BRS de Rennes Métropole.
Le projet est proposé sur des terrains à partir de 223 m², exposés OUEST.
Maison 87 à 93 m² – 3 à 4 chambres – Carport
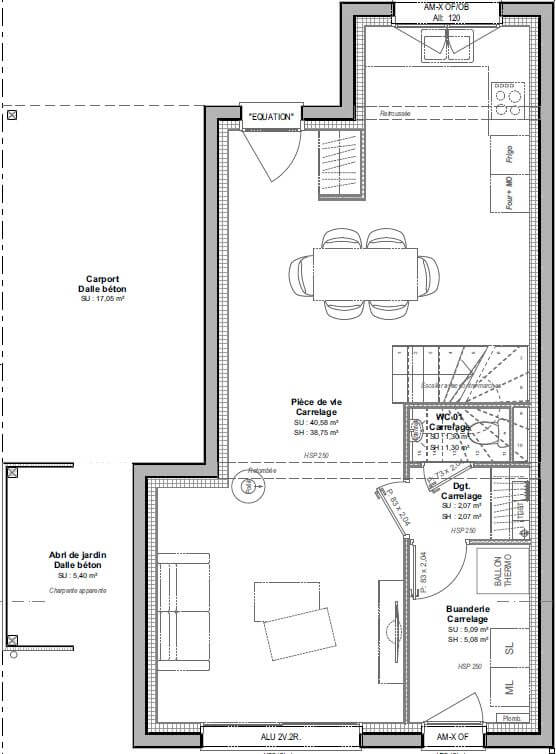
Cet exemple de maison se compose :
Au rez-de-chaussée :
- Une entrée
- Une pièce de vie lumineuse d’environ 38 m² avec cuisine ouverte
- Une buanderie
- Des WC séparés
- Possibilité d’ajouter une 4ᵉ chambre
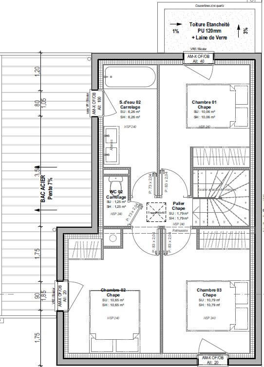
À l’étage :
- 3 chambres avec placards
- Une salle de bain
- Des WC séparés
Annexes
- Un carport
- Un abri de jardin
Pour de plus amples renseignements, contactez notre équipe commerciale MAISONS CRÉATION : 02 99 05 36 46
* Le Bail Réel Solidaire (BRS) est un dispositif d’accession à la propriété permettant de dissocier le terrain du logement. Le ménage devient propriétaire du logement, tandis que le terrain reste la propriété de l’Organisme Foncier Solidaire Rennes Métropole (FSRM).
Informations complémentaires
| Chambre(s) : 3 | Salle(s) de bain : 1 | Surface habitable : 87 m² |
| Surface terrain : 224 m² | Surface annexe : 38 m² | Garage(s) : 0 |
| Prix : 233 000 € |
Géolocalisation du bien
*Terrain proposé et vendu par notre partenaire foncier selon disponibilité et autorisation de publicité, prix du terrain hors frais de notaire et d’hypothèque.
Prix maison : hors papiers peints, peintures, revêtements de sol dans les chambres, cuisines, meubles vasques, et faïences (modifiable sans préavis, prix variables suivant les prestations souhaitées) hors frais d’hypothèque.





