Idéalement situé à Lécousse !
Située à Lécousse, à proximité de Fougères, cette maison à étage bénéficie d'une belle luminosité et d'un jardin de 361m²
A proximité des écoles, près des commodités et services, proche des transports, elle est composée de 4 pièces répartie sur 92m².
Cette maison comprend au rez-de-chaussée, une cuisine ouverte, un Salon / Séjour de 45m², des WC séparés,
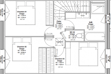
A l'étage, vous pourrez profiter, de 3 chambres de plus de 11m², de WC séparés et d'une salle de bains.
Cette maison dispose également d'un garage attenant.
Votre projet Maison + Terrain à partir de 237900€ (Hors frais)
NON MANDATÉ POUR LA VENTE DES TERRAINS
Maisons CREATION Rennes n’est pas chargé de réaliser la vente des terrains à bâtir mentionnés dans ces annonces.
Maisons CREATION Rennes agit seulement en qualité de constructeur.
Informations complémentaires
| Chambre(s) : 3 | Salle(s) de bain : 1 | Surface habitable : 92 m² |
| Surface terrain : 361 m² | Surface annexe : 45 m² | Garage(s) : 1 |
| Prix : 237 900 € |
Géolocalisation du bien
*Terrain proposé et vendu par notre partenaire foncier selon disponibilité et autorisation de publicité, prix du terrain hors frais de notaire et d’hypothèque.
Prix maison : hors papiers peints, peintures, revêtements de sol dans les chambres, cuisines, meubles vasques, et faïences (modifiable sans préavis, prix variables suivant les prestations souhaitées) hors frais d’hypothèque.





