MAISONS CRÉATION vous propose un projet de construction RE2020 situé au Vivier-sur-Mer, à proximité immédiate du bord de mer, dans un environnement paisible et verdoyant, tout en restant proche du bourg et de ses commodités.
Le projet est implanté sur un terrain de 314 m².
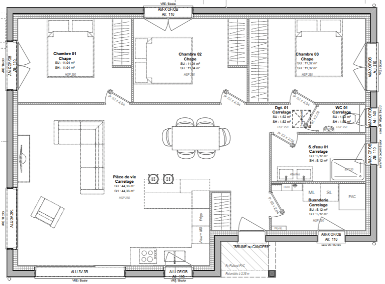
Cet exemple de maison RE2020 développe 91 m² habitables et se compose :
- Un très bel espace de vie lumineux
- 3 chambres
- Une salle de bains
- Une organisation fonctionnelle, idéale pour une vie de plain-pied confortable
Projet entièrement personnalisable.
Prix incluant terrain, garanties et assurances (hors frais annexes liés au terrain et aux finitions).
Pour plus de renseignements, contactez notre équipe commerciale MAISONS CRÉATION : 02 99 05 36 46
Informations complémentaires
| Chambre(s) : 3 | Salle(s) de bain : 1 | Surface habitable : 91 m² |
| Surface terrain : 314 m² | Surface annexe : 45 m² | Garage(s) : 1 |
| Prix : 257 560 € |
Géolocalisation du bien
*Terrain proposé et vendu par notre partenaire foncier selon disponibilité et autorisation de publicité, prix du terrain hors frais de notaire et d’hypothèque.
Prix maison : hors papiers peints, peintures, revêtements de sol dans les chambres, cuisines, meubles vasques, et faïences (modifiable sans préavis, prix variables suivant les prestations souhaitées) hors frais d’hypothèque.




