MAISONS CRÉATION vous propose un projet de construction rare à Laillé, situé à proximité des accès à la route de Nantes, dans le secteur recherché de Bout de Lande.
Le projet est implanté sur une parcelle de 483 m², ouverte sur la campagne et la forêt, offrant une belle luminosité et un cadre naturel privilégié. Un environnement idéal pour les amoureux de la nature, des balades en forêt et des activités de plein air, tout en bénéficiant d’un accès rapide à Rennes (environ 10 minutes).
Maison contemporaine – 140 m² – 4 chambres – Garage 26 m²
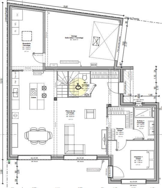
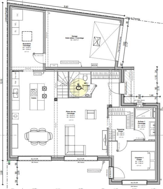
Cet exemple de maison contemporaine, développant 140 m² habitables, se compose :
Au rez-de-chaussée :
- Une entrée avec placard
- Une belle pièce de vie ouverte sur le jardin
- Une suite parentale avec dressing et salle d’eau
- Une buanderie / arrière-cuisine
- Des WC avec lave-mains
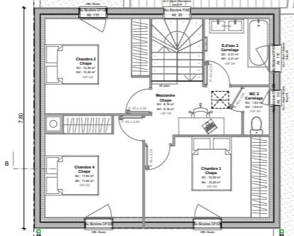
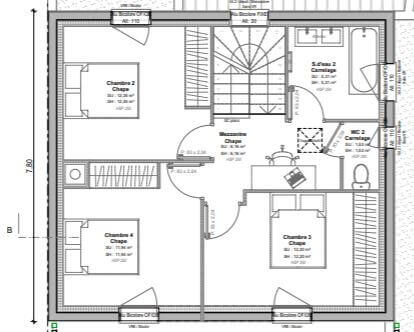
À l’étage :
- Un palier avec espace bureau
- 3 belles chambres
- Une salle de bains
- Des WC séparés
Annexes
- Un garage de 26 m²
NON MANDATÉ POUR LA VENTE DES TERRAINS
Maisons Création Rennes agit uniquement en qualité de constructeur.
Pour plus de renseignements, contactez notre équipe commerciale MAISONS CRÉATION : 02 99 05 36 46
Informations complémentaires
| Chambre(s) : 0 | Salle(s) de bain : N.C. | Surface habitable : 140 m² |
| Surface terrain : 483 m² | Surface annexe : 52 m² | Garage(s) : 0 |
| Prix : 415 000 € |
Géolocalisation du bien
*Terrain proposé et vendu par notre partenaire foncier selon disponibilité et autorisation de publicité, prix du terrain hors frais de notaire et d’hypothèque.
Prix maison : hors papiers peints, peintures, revêtements de sol dans les chambres, cuisines, meubles vasques, et faïences (modifiable sans préavis, prix variables suivant les prestations souhaitées) hors frais d’hypothèque.





