Situé dans un quartier résidentiel de qualité ZAC de la niche aux oiseaux à LA CHAPELLE-THOUARAULT, découvrez notre projet de construction sur mesure.
Cette maison sur deux niveaux offre une surface habitable de 85 m².
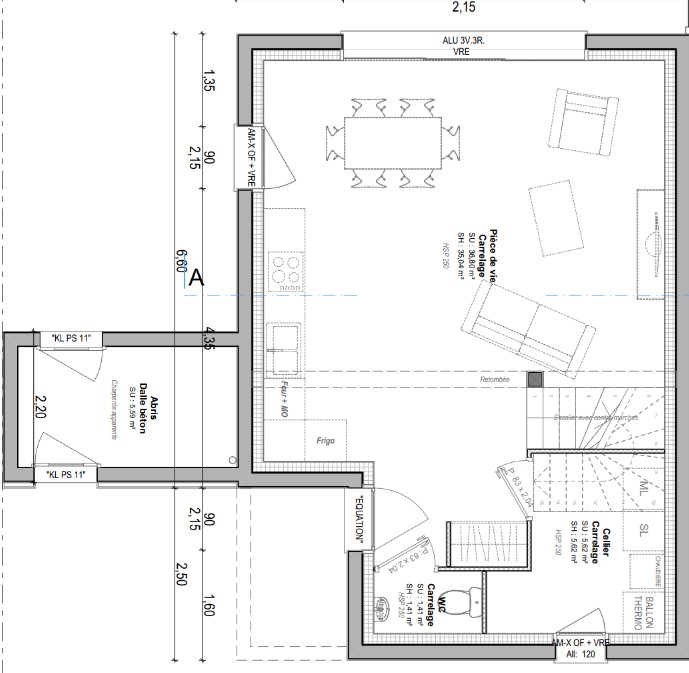
Au rez-de-chaussée, vous trouverez une entrée avec placard, une pièce de vie de 36 m² avec cuisine ouverte donnant accès à une terrasse, un cellier de 5 m² et WC séparé. Un abri de jardin vient compléter ce niveau/
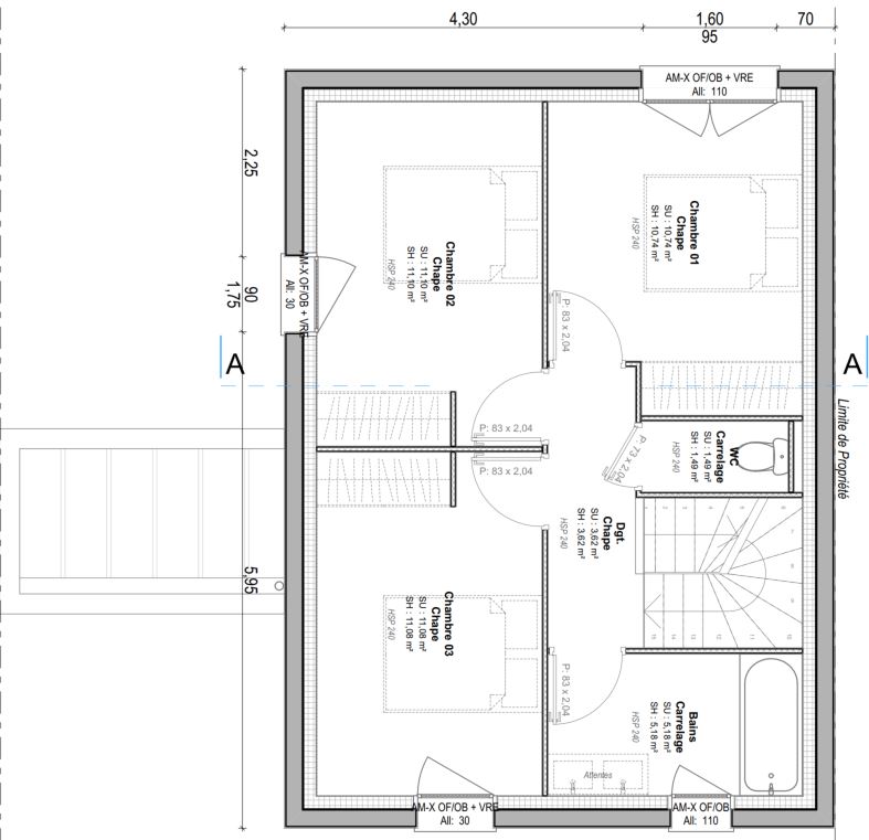
À l'étage, vous attendent 3 chambres avec placards, une salle de bain et un WC séparé.
Pour obtenir plus de détails sur ce projet, n'hésitez pas à contacter notre équipe commerciale de MAISONS CRÉATION au 02 99 05 36 46.
Informations complémentaires
| Chambre(s) : 3 | Salle(s) de bain : 1 | Surface habitable : 85 m² |
| Surface terrain : 223 m² | Surface annexe : 36 m² | Garage(s) : 0 |
| Prix : 219 506 € |
Géolocalisation du bien
*Terrain proposé et vendu par notre partenaire foncier selon disponibilité et autorisation de publicité, prix du terrain hors frais de notaire et d’hypothèque.
Prix maison : hors papiers peints, peintures, revêtements de sol dans les chambres, cuisines, meubles vasques, et faïences (modifiable sans préavis, prix variables suivant les prestations souhaitées) hors frais d’hypothèque.




