MAISONS CREATION vous propose un projet de construction personnalisable sur un terrain de 357 m², exposé Ouest, situé dans un environnement résidentiel privilégié de La Chapelle-des-Fougeretz.
Maison 115 m² – 4 chambres – Garage
Cet exemple de maison contemporaine de 115 m² habitables se compose :
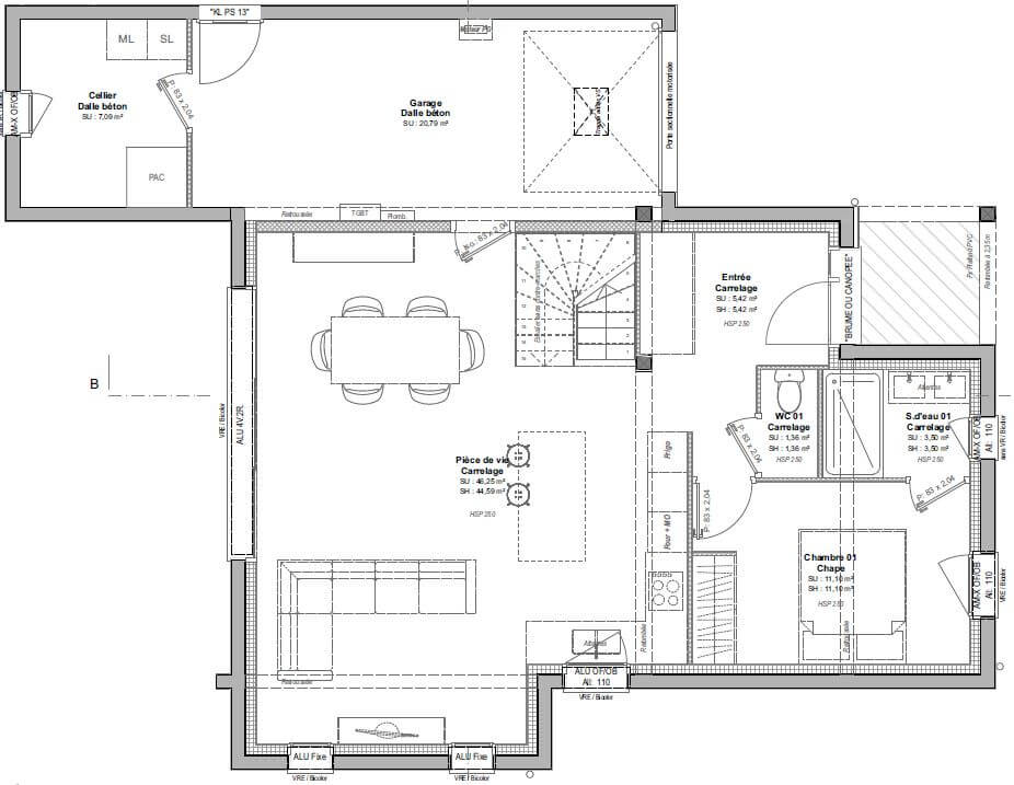
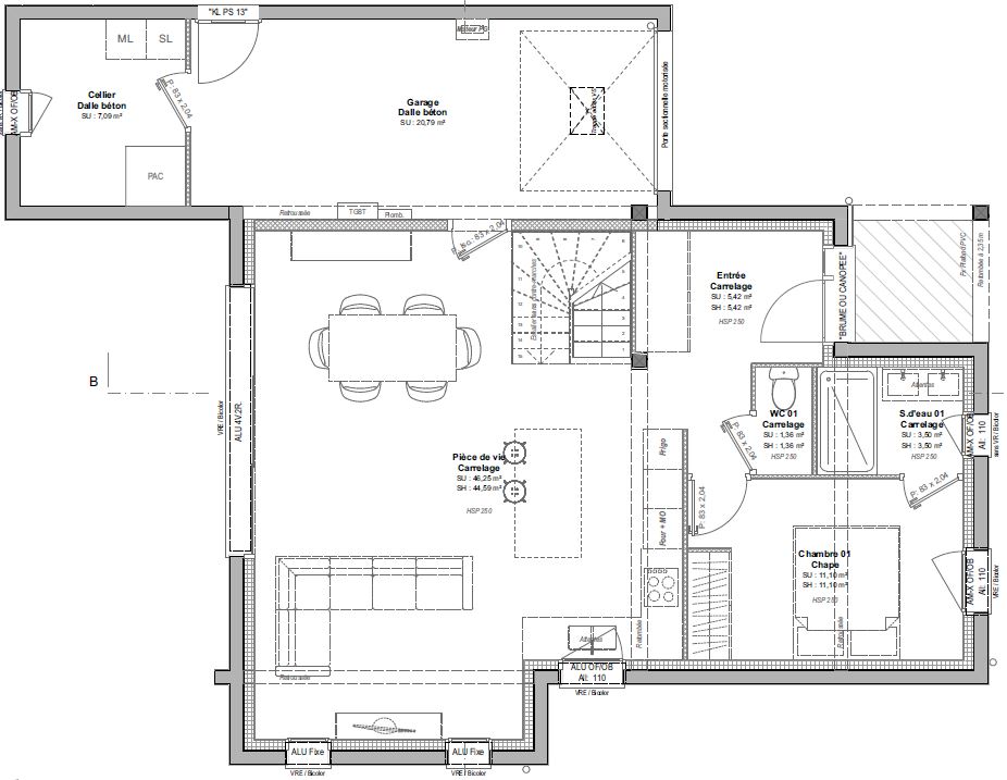
Au rez-de-chaussée :
- Des espaces de vie lumineux, pensés pour le confort et la fonctionnalité
- Une suite parentale avec salle d’eau privative
- Un WC indépendant
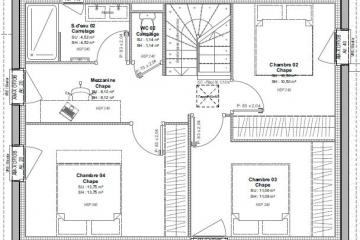
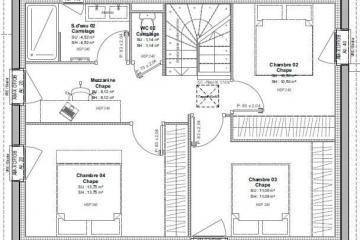
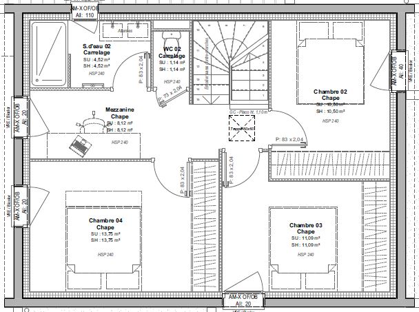
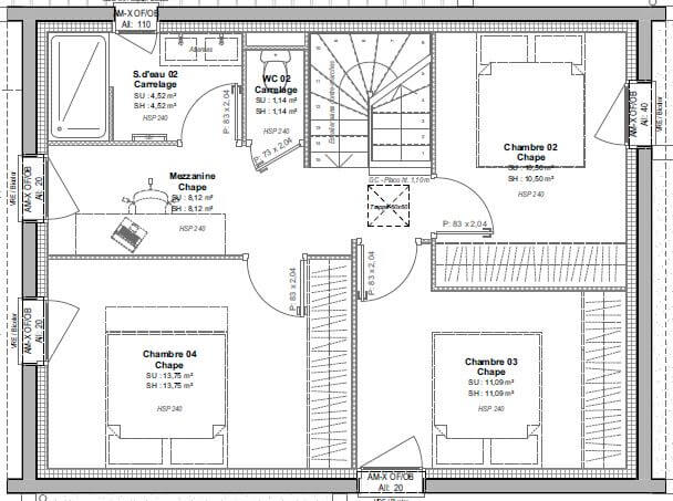
À l’étage :
- 3 chambres
- Une salle de bains familiale
- Une salle d’eau
- Un WC indépendant
Annexes
- Un garage attenant
Informations complémentaires
| Chambre(s) : 4 | Salle(s) de bain : 2 | Surface habitable : 115 m² |
| Surface terrain : 357 m² | Surface annexe : 45 m² | Garage(s) : 1 |
| Prix : 345 000 € |
Géolocalisation du bien
*Terrain proposé et vendu par notre partenaire foncier selon disponibilité et autorisation de publicité, prix du terrain hors frais de notaire et d’hypothèque.
Prix maison : hors papiers peints, peintures, revêtements de sol dans les chambres, cuisines, meubles vasques, et faïences (modifiable sans préavis, prix variables suivant les prestations souhaitées) hors frais d’hypothèque.




