Découvrez un nouveau projet résidentiel idéalement situé au cœur de La Chapelle-des-Fougeretz, dans un environnement calme, verdoyant et pensé pour le confort des familles. Ces maisons, proposées sous le régime avantageux du Bail Réel Solidaire, vous permettent de devenir propriétaire à un prix maîtrisé avec un Prêt à taux zéro majoré tout en bénéficiant d’une qualité de vie exceptionnelle.
Les maisons
Chaque logement bénéficie d’un terrain privatif parfaitement orienté plein sud, sans vis-à-vis direct, et donnant sur un agréable chemin piétonnier, gage de tranquillité et de sécurité.
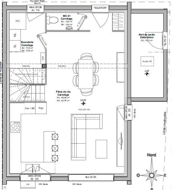
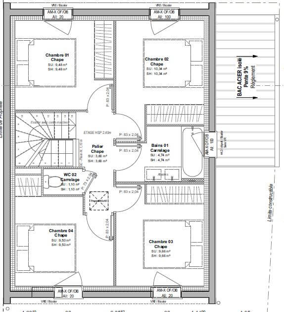
Les habitations se déclinent en 4 ou 5 chambres, avec des espaces lumineux, fonctionnels et adaptés aux besoins de toute la famille.
Atouts du programme
- Terrains de 200 à 283 m²
- Exposition Sud
- Environnement calme et sécurisé
- Accès piéton privilégié
- Maisons familiales de 4 à 5 chambres
- Dispositif BRS : devenir propriétaire à un prix accessible
Localisation
Situé à proximité des commerces, écoles, transports et infrastructures sportives, le quartier offre un cadre de vie agréable et dynamique, à seulement quelques minutes de Rennes.
Pour plus de renseignements contactez-nous au 02 99 05 36 46.
*Le bail réel solidaire est un dispositif d’accession à la propriété original qui permet de séparer le terrain des murs.
C’est à dire que le ménage qui souhaite devenir propriétaire achète uniquement le logement. C’est l’organisme foncier solidaire Rennes Métropole (FSRM) qui est propriétaire du terrain.
Informations complémentaires
| Chambre(s) : 4 | Salle(s) de bain : 1 | Surface habitable : 100 m² |
| Surface terrain : 283 m² | Surface annexe : 42 m² | Garage(s) : 0 |
| Prix : 227 995 € |
Géolocalisation du bien
*Terrain proposé et vendu par notre partenaire foncier selon disponibilité et autorisation de publicité, prix du terrain hors frais de notaire et d’hypothèque.
Prix maison : hors papiers peints, peintures, revêtements de sol dans les chambres, cuisines, meubles vasques, et faïences (modifiable sans préavis, prix variables suivant les prestations souhaitées) hors frais d’hypothèque.





