MAISONS CRÉATION vous propose un projet de construction personnalisable situé à La Chapelle-aux-Fitzméens, à proximité immédiate de Combourg et de l’ensemble de ses services.
Le projet bénéficie également de la proximité des communes de Tinténiac et Saint-Domineuc, ainsi que de l’accès à la 4 voies Rennes – Saint-Malo.
Le projet est implanté sur un terrain de 486 m², orienté SUD / OUEST.
Maison 106 m² – 3 chambres – Garage
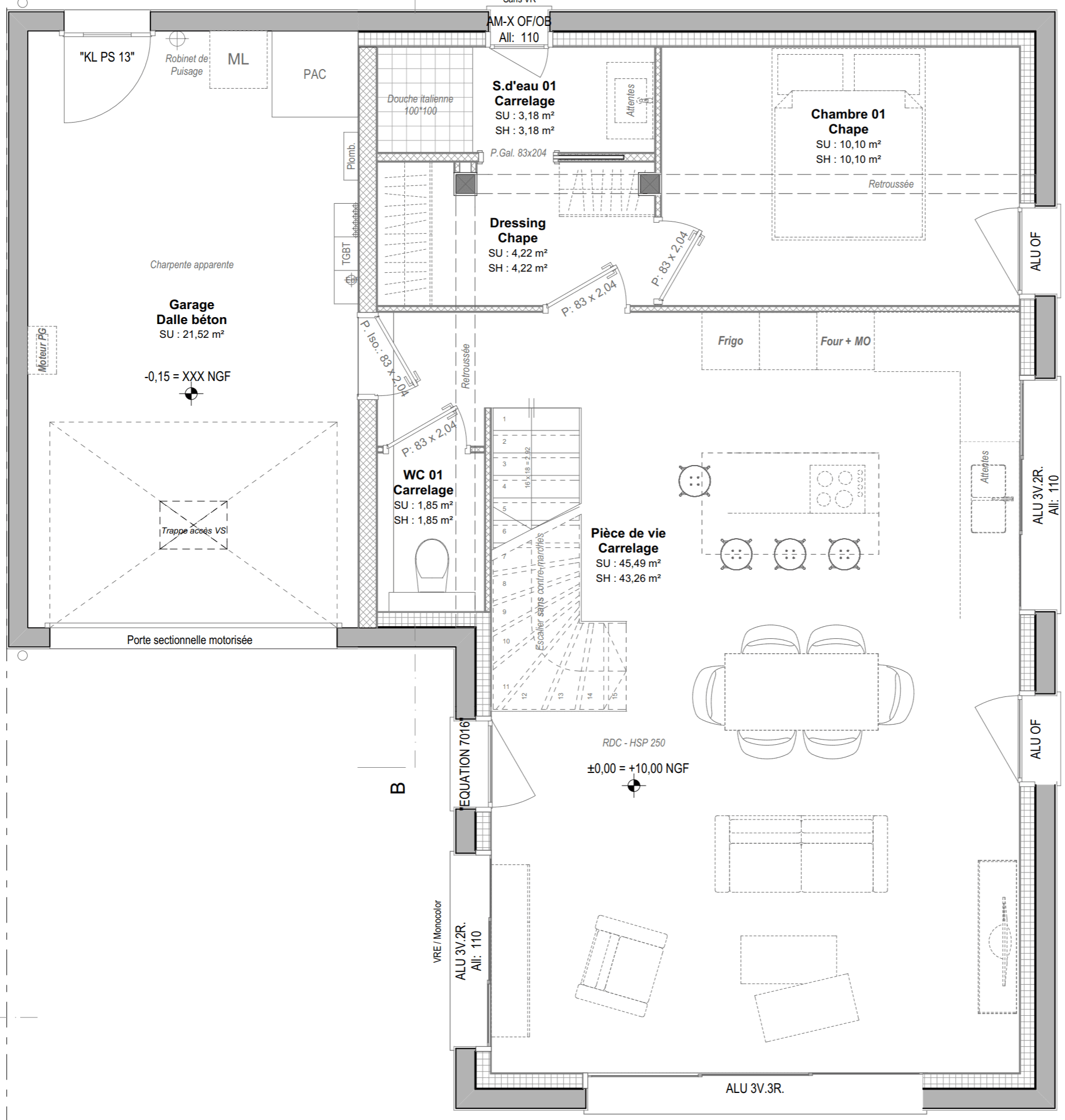
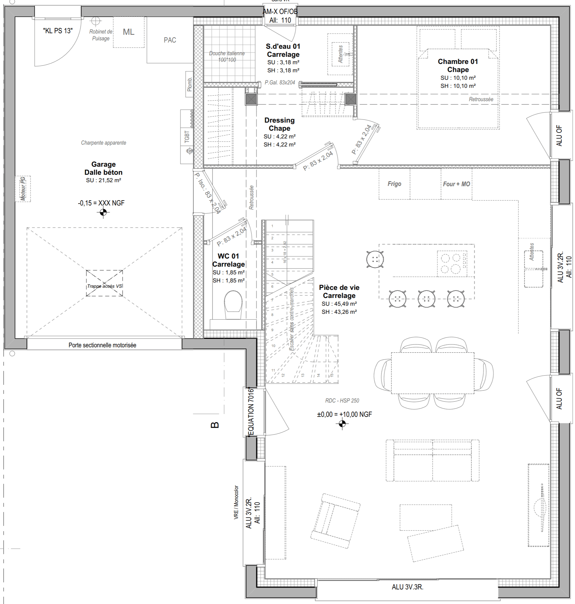
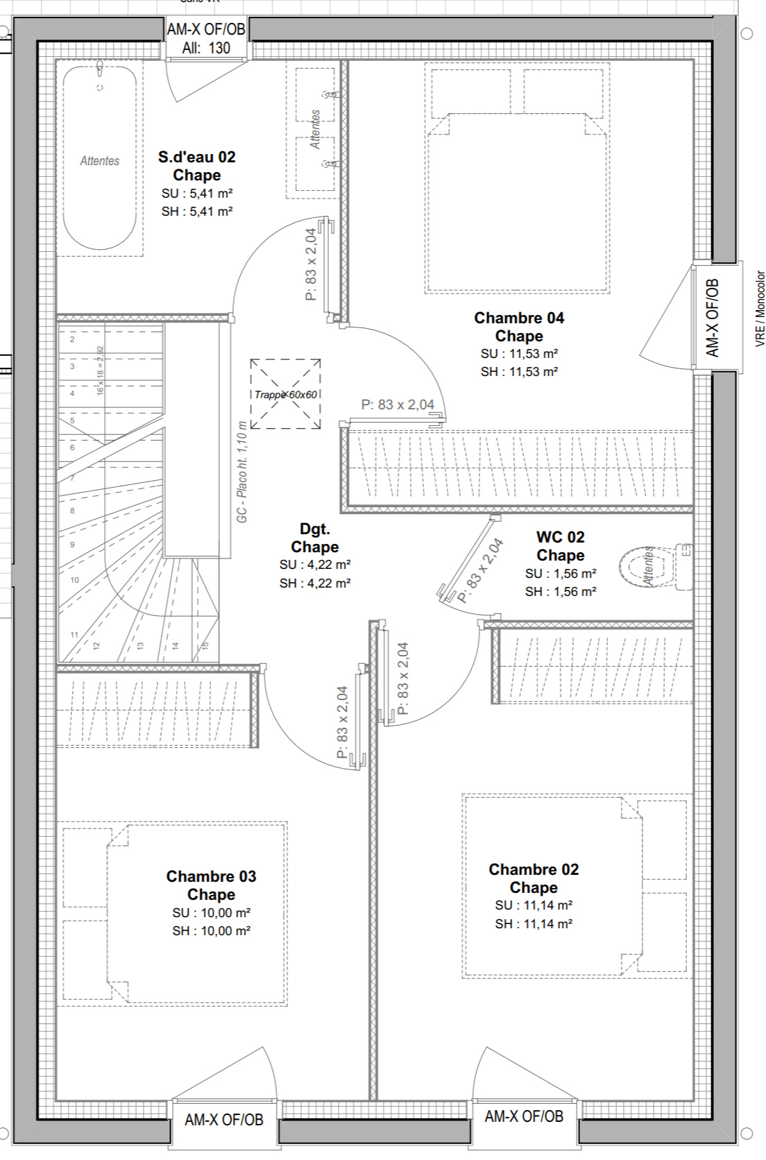
Cet exemple de maison de 106 m² habitables, répartie sur deux niveaux, se compose :
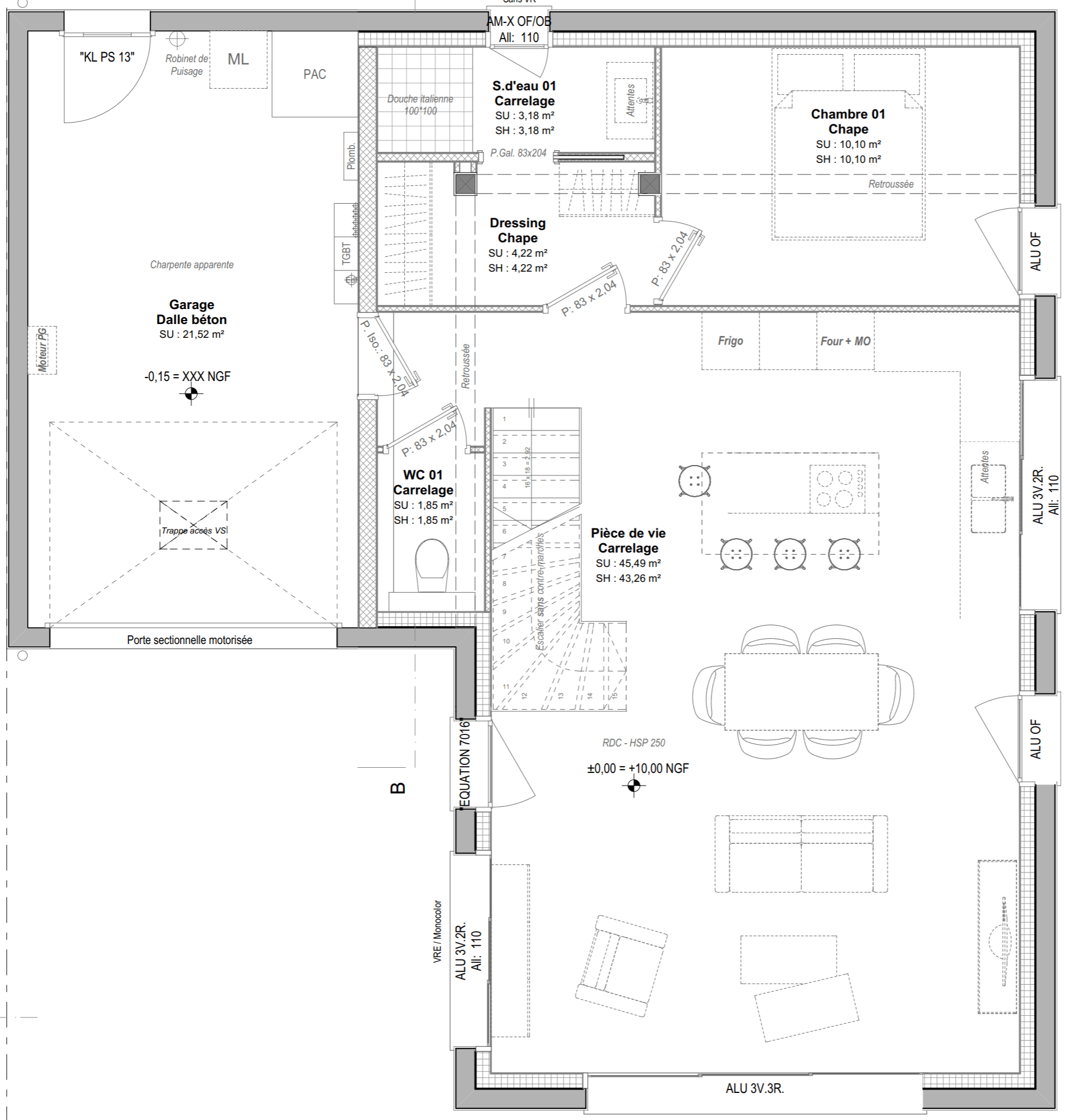
Au rez-de-chaussée :
- Une entrée
- Une pièce de vie de 46 m², ouverte sur l’extérieur grâce aux baies vitrées
- Une cuisine avec accès direct au garage d’environ 22 m²
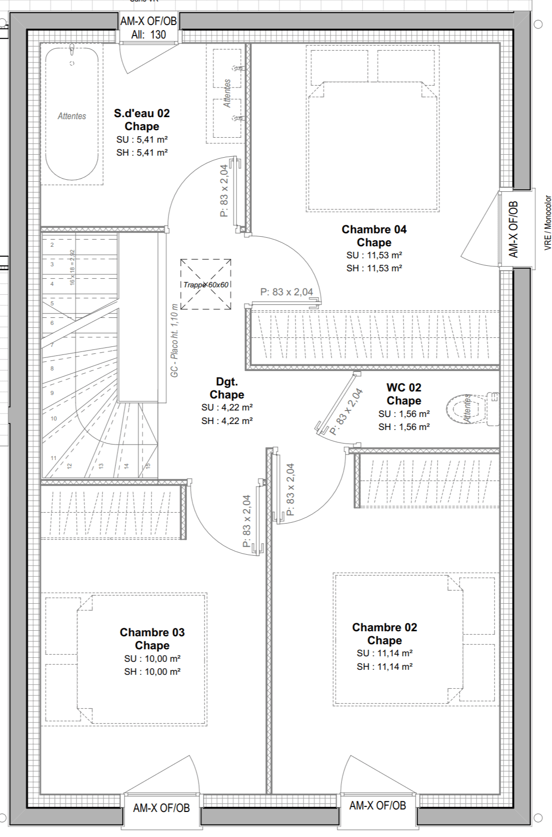
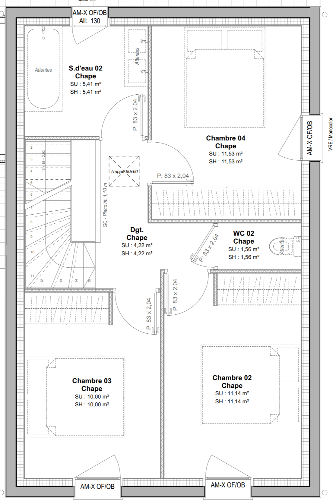
À l’étage :
- 2 chambres de 11 m² avec placards
- 1 chambre de 10 m²
- Une salle de bain
- Un WC
Ce projet est entièrement personnalisable, afin de répondre à vos attentes en matière de conception et de prestations.
Pour plus d’informations, contactez notre équipe commerciale MAISONS CRÉATION : 02 99 05 36 46
Informations complémentaires
| Chambre(s) : 4 | Salle(s) de bain : 2 | Surface habitable : 106 m² |
| Surface terrain : 486 m² | Surface annexe : 46 m² | Garage(s) : 1 |
| Prix : 278 000 € |
Géolocalisation du bien
*Terrain proposé et vendu par notre partenaire foncier selon disponibilité et autorisation de publicité, prix du terrain hors frais de notaire et d’hypothèque.
Prix maison : hors papiers peints, peintures, revêtements de sol dans les chambres, cuisines, meubles vasques, et faïences (modifiable sans préavis, prix variables suivant les prestations souhaitées) hors frais d’hypothèque.




