A proximité de l'axe Rennes/Saint-Malo et à 6 minutes de Tinténiac, MAISONS CREATION vous propose une construction proche des commodités sur un terrain de 520 m2 situé sur la commune de La Baussaine.
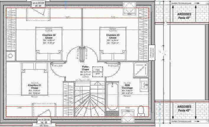
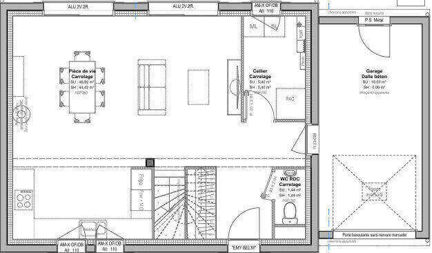
Nous vous proposons ici une Maison RE2020 R+1 d'une superficie de 92 m².
Au rez-de-chaussée, vous trouverez un espace de vie très lumineux, une suite parentale avec dressing et un garage. À l'étage, vous disposerez de 3 belles chambres et d'une salle de bains.
Chez Maisons Creation, nous personnalisons intégralement tous nos projets, de la conception intérieure et architecturale du projet à la définition du niveau de prestations souhaité.
*Terrain proposé et vendu par notre partenaire foncier selon disponibilité et autorisation de publicité, prix du terrain hors frais de notaire et d’hypothèque.
Prix maison : hors papiers peints, peintures, revêtements de sol dans les chambres, cuisines, meubles vasques, et faïences (modifiable sans préavis, prix variables suivant les prestations souhaitées) hors frais d’hypothèque.
Informations complémentaires
| Chambre(s) : 3 | Salle(s) de bain : 1 | Surface habitable : 92 m² |
| Surface terrain : 520 m² | Surface annexe : 45 m² | Garage(s) : 1 |
| Prix : 236 800 € |
Géolocalisation du bien
*Terrain proposé et vendu par notre partenaire foncier selon disponibilité et autorisation de publicité, prix du terrain hors frais de notaire et d’hypothèque.
Prix maison : hors papiers peints, peintures, revêtements de sol dans les chambres, cuisines, meubles vasques, et faïences (modifiable sans préavis, prix variables suivant les prestations souhaitées) hors frais d’hypothèque.





